Ruhige 2-Zimmer-Wohnung mit zwei Balkone, top Infrastruktur - Nähe Schlosspark Schönbrunn
-
sofort
Beschreibung
Diese elegante Eigentumswohnung liegt in einer gepflegten, ruhigen Wohnanlage mit einem wunderschönen, begrünten Innenhof.
Die im Jahre 1997 errichtete Wohnanlage ist technisch und optisch in einem perfekten Zustand.
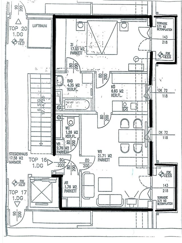
Die ca. 60 m² große Wohnung im 3. Liftgeschoß gelegen, bietet ein lichtdurchflutetes Wohn- und Esszimmer mit Zugang zu einem der beiden nach Osten ausgerichteten Balkone (jeweils ca. 3 m²). Ein geräumiges Schlafzimmer mit eigenem Balkon, eine Küche mit Gartenblick, ein Vorzimmer, ein modernes Wannenbad, ein separates WC und ein praktischer Abstellraum runden das Angebot ab.
Der besondere Charme...
Diese elegante Eigentumswohnung liegt in einer gepflegten, ruhigen Wohnanlage mit einem wunderschönen, begrünten Innenhof.
Die im Jahre 1997 errichtete Wohnanlage ist technisch und optisch in einem perfekten Zustand.
Die ca. 60 m² große Wohnung im 3. Liftgeschoß gelegen, bietet ein lichtdurchflutetes Wohn- und Esszimmer mit Zugang zu einem der beiden nach Osten ausgerichteten Balkone (jeweils ca. 3 m²). Ein geräumiges Schlafzimmer mit eigenem Balkon, eine Küche mit Gartenblick, ein Vorzimmer, ein modernes Wannenbad, ein separates WC und ein praktischer Abstellraum runden das Angebot ab.
Der besondere Charme der Wohnung besteht darin, dass beide Zimmer Zugang zu einem Balkon mit Blick ins Grüne haben.
Eine moderne Einbauküche, hochwertige Parkettböden im Wohn- und Schlafzimmer, sowie Fliesen in den Sanitärräumen, der Küche, dem Vorzimmer und dem Abstellraum zeichnen diese elegante Wohnung besonders aus. Zusätzlich sind Kabel-TV, Internet-Anschluss, Gegensprechanlage und Telefonanschluss sowie ein Waschmaschinenanschluss im Bad vorhanden.
Die Wohnung ist barrierefrei zu erreichen.
Die Beheizung und Warmwasseraufbereitung erfolgt über die neue, umweltfreundliche Fernwärme, das aktuelle monatliche Akonto beträgt 121,31 EUR.
Ein geräumiges Kellerabteil bietet zusätzlichen Stauraum.
Der zur Wohnung zugeordnete Stellplatz in der Tiefgarage wird mit 30.000,00 EUR zum Kaufpreis dazu berechnet.
Die Lage der Wohnung ist ausgezeichnet, der Innenhof der Anlage wunderschön gepflegt und begrünt, mit seiner Vielfalt an Bäumen lässt er vergessen, dass man in der Stadt wohnt.
Die Nähe zu den Einkaufsmöglichkeiten und öffentlichen Anbindungen (S-Bahn-Station Hetzendorf, die Linien 7/9, 62 + 63A sowie die Anbindung zur A23 und A2), Kindergärten und Schulen sind weitere Annehmlichkeiten, die dieses Objekt zu bieten hat.
Instandhaltungsfonds: 42.246,04 EUR / per 31.12.2025
Instandhaltungsrücklage: 66,96 EUR
Betriebskosten (netto): 154,80 EUR
Umsatzsteuer (gesamt): 15,48 EUR
Betriebskosten (gesamt): 237,24 EUR
Kaufpreis Wohnung: 329.000,00 EUR
Kaufpreis Garage: 30.000,00 EUR
Kaufpreis (gesamt): 359.000,00 EUR
Provision: 12.924,00 EUR inkl. 20% USt.
Grunderwerbssteuer: 3,5%
Grundbuchseintragungsgebühr: 1,1%
Kosten der Vertragserrichtung und grundbücherlichen Durchführung nach Vereinbarung im Rahmen der Tarifordnung des jeweiligen Urkundenerrichters sowie Barauslagen für Beglaubigung und Stempelgebühren.
Objektdaten
Ausstattung
- Gartennutzung
- Rollstuhlgerecht
- Kabel/SAT-TV
- Barrierefrei
- Fahrradraum
- Bad mit Badewanne
- Einbauküche
- Fliesenboden
- Parkettboden
- Fernwärme Heizung
- Fern Befeuerung
- Personen Fahrstuhl
- Ausrichtung Balkon/Terrasse - Ost
- Massiv Bauweise
Zustand
- Baujahr
- 1997
- Alter
- NEUBAU
- HWB
- 54.42 kWh/m² pro Jahr
- Klasse HWB
- C
- fGEE
- 1
- Klasse fGEE
- C
Flächen
- Anzahl der Zimmer
- 2
- Anzahl der Badezimmer
- 1
- Anzahl der sep. WCs
- 1
- Anzahl der Balkone
- 2
- Wohnfläche
- 60m²
- Nutzfläche
- 67m²
- Kellerfläche
- 4m²
Kosten
- Kaufpreis Brutto
- € 329.000,00
- Betriebskosten
- € 154,80
- Sonstige Kosten
- € 66,96
Verwaltung
- Verfügbar ab
- sofort
Wohnungen zum Kaufen in Österreich
- Bezirk Gemeindebezirk Meidling
- Bezirk Gemeindebezirk Meidling
- Bezirk Gemeindebezirk Meidling
- Bezirk Gemeindebezirk Hietzing
- Bezirk Gemeindebezirk Hietzing
- Bezirk Gemeindebezirk Hietzing
- Bezirk Gemeindebezirk Rudolfsheim-Fünfhaus
- Bezirk Gemeindebezirk Rudolfsheim-Fünfhaus
- Bezirk Gemeindebezirk Rudolfsheim-Fünfhaus
- Bezirk Gemeindebezirk Margareten
Wohnungen zum Kaufen in Österreich
Wohnungen zum Kaufen in Österreich
Andere Besucher suchen nach...
- Grundstücke kaufen in 3400 Weidlingbach
- Wohnungen kaufen in 4663 Laakirchen
- Häuser in 7471 Rechnitz
- Wohnungen in 2410 Hainburg an der Donau
- Häuser kaufen in 2432 Schwadorf
- Wohnungen kaufen in 3002 Purkersdorf
- Häuser in 3150 Wilhelmsburg
- Wohnungen kaufen in 3470 Engelmannsbrunn
- Grundstücke kaufen im Bezirk Mattersburg
- Grundstücke kaufen im Bezirk Gmunden