Bester Preis im Bezirk - Hochparterre - Bahnhof Meidling
Beschreibung
Dieses Altbau-Objekt bietet Ihnen die einmalige Gelegenheit, eine günstige Wohnung auf Ihre Wohnbedürfnisse anzupassen.
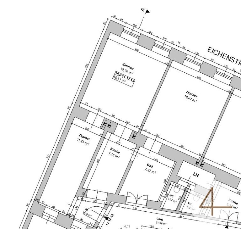
Raumaufteilung: 3 Zimmer, Vorraum, Badezimmer, Küche und separate Toilette. Komplett sanierungsbedürftig – ideal für alle, die ihr Zuhause selbst gestalten möchten. Top-Lage mit guter Anbindung.
Hinweis gemäß Energieausweisvorlagegesetz: Ein Energieausweis wurde vom Eigentümer bzw. Verkäufer, nach unserer Aufklärung über die generell geltende Vorlagepflicht, sowie Aufforderung zu seiner Erstellung noch nicht vorgelegt. Daher gilt zumindest eine dem Alter und der Art des Gebäudes entsprechende Gesamtenergieeffizienz als vereinbart. Wir übernehmen keinerlei Gewähr oder Haftung für die tatsächliche Energieeffizienz der angebotenen Immobilie.
Wir weisen darauf hin, dass zwischen dem...
Dieses Altbau-Objekt bietet Ihnen die einmalige Gelegenheit, eine günstige Wohnung auf Ihre Wohnbedürfnisse anzupassen.
Raumaufteilung:
3 Zimmer, Vorraum, Badezimmer, Küche und separate Toilette.
Komplett sanierungsbedürftig – ideal für alle, die ihr Zuhause selbst gestalten möchten.
Top-Lage mit guter Anbindung.
Hinweis gemäß Energieausweisvorlagegesetz: Ein Energieausweis wurde vom Eigentümer bzw. Verkäufer, nach unserer Aufklärung über die generell geltende Vorlagepflicht, sowie Aufforderung zu seiner Erstellung noch nicht vorgelegt. Daher gilt zumindest eine dem Alter und der Art des Gebäudes entsprechende Gesamtenergieeffizienz als vereinbart. Wir übernehmen keinerlei Gewähr oder Haftung für die tatsächliche Energieeffizienz der angebotenen Immobilie.
Wir weisen darauf hin, dass zwischen dem Vermittler und dem zu vermittelnden Dritten ein familiäres oder wirtschaftliches Naheverhältnis besteht.
Der Vermittler ist als Doppelmakler tätig.
Objektdaten
Flächen
- Wohnfläche
- 64m²
Kosten
- Kaufpreis Brutto
- € 189.500,00
Wohnungen zum Kaufen in Österreich
- Bezirk Gemeindebezirk Meidling
- Bezirk Gemeindebezirk Meidling
- Bezirk Gemeindebezirk Meidling
- Bezirk Gemeindebezirk Hietzing
- Bezirk Gemeindebezirk Hietzing
- Bezirk Gemeindebezirk Hietzing
- Bezirk Gemeindebezirk Rudolfsheim-Fünfhaus
- Bezirk Gemeindebezirk Rudolfsheim-Fünfhaus
- Bezirk Gemeindebezirk Rudolfsheim-Fünfhaus
- Bezirk Gemeindebezirk Margareten
Wohnungen zum Kaufen in Österreich
Wohnungen zum Kaufen in Österreich
Andere Besucher suchen nach...
- Grundstücke kaufen in 3400 Weidlingbach
- Wohnungen kaufen in 4663 Laakirchen
- Häuser in 7471 Rechnitz
- Wohnungen in 2410 Hainburg an der Donau
- Häuser kaufen in 2432 Schwadorf
- Wohnungen kaufen in 3002 Purkersdorf
- Häuser in 3150 Wilhelmsburg
- Wohnungen kaufen in 3470 Engelmannsbrunn
- Grundstücke kaufen im Bezirk Mattersburg
- Grundstücke kaufen im Bezirk Gmunden