Erstbezug 2026: Penthouse im Luxusprojekt mit Pool und Outdoorküche
-
Erstbezug
-
2025
-
März 2026
Beschreibung
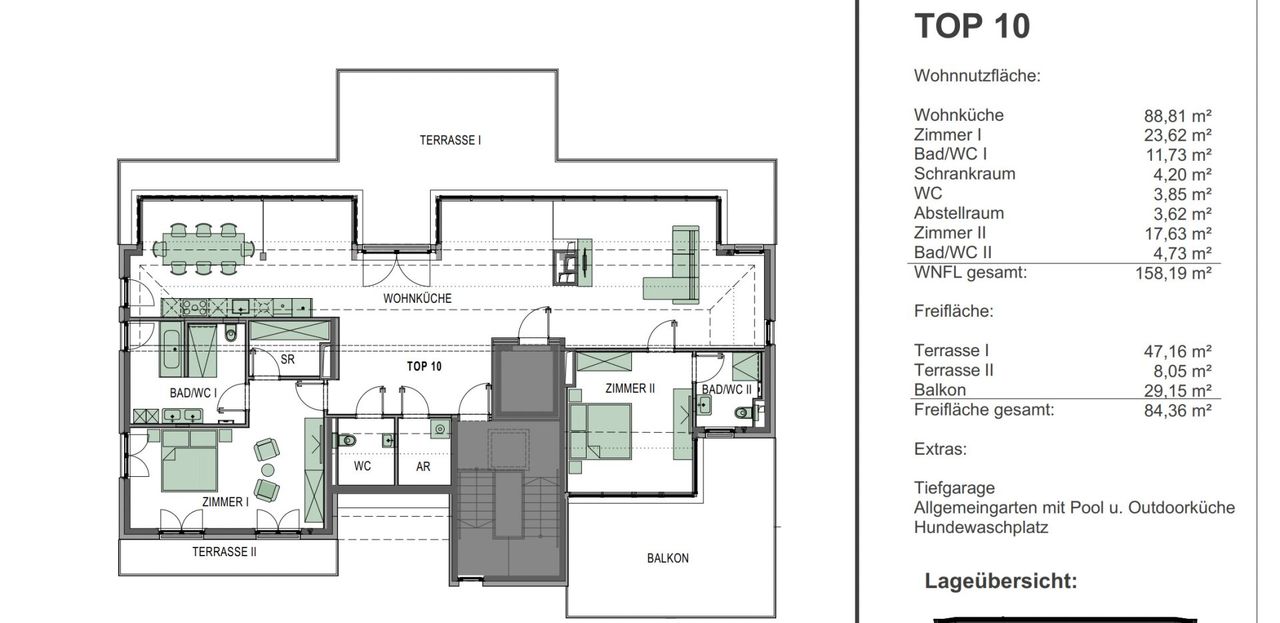
Dieses exklusive Penthouse (TOP 10) überzeugt mit einer beeindruckenden Wohnnutzfläche von 158,19 m² sowie außergewöhnlich großzügigen Freiflächen von insgesamt 84,36 m². Die Wohnung befindet sich in attraktiver Ruhelage und bietet ein modernes Wohnkonzept mit viel Licht, Offenheit und Privatsphäre.
Das absolute Highlight bildet die rund 88,81 m² große Wohnküche mit weitläufiger Fensterfront und direktem Zugang zur Hauptterrasse (47,16 m²) sowie zum Balkon (29,15 m²). Dieser offene Wohnbereich schafft ein repräsentatives Ambiente und verbindet Innen- und Außenraum auf besonders angenehme Weise.
Der private Schlafbereich ist klar vom Wohnbereich getrennt:
– Master Bedroom (Zimmer I, 23,62 m²) mit eigenem großzügigen Badezimmer (Bad/WC...
Dieses exklusive Penthouse (TOP 10) überzeugt mit einer beeindruckenden Wohnnutzfläche von 158,19 m² sowie außergewöhnlich großzügigen Freiflächen von insgesamt 84,36 m². Die Wohnung befindet sich in attraktiver Ruhelage und bietet ein modernes Wohnkonzept mit viel Licht, Offenheit und Privatsphäre.
Das absolute Highlight bildet die rund 88,81 m² große Wohnküche mit weitläufiger Fensterfront und direktem Zugang zur Hauptterrasse (47,16 m²) sowie zum Balkon (29,15 m²). Dieser offene Wohnbereich schafft ein repräsentatives Ambiente und verbindet Innen- und Außenraum auf besonders angenehme Weise.
Der private Schlafbereich ist klar vom Wohnbereich getrennt:
– Master Bedroom (Zimmer I, 23,62 m²) mit eigenem großzügigen Badezimmer (Bad/WC I, 11,73 m²), separatem Schrankraum (4,20 m²) sowie direktem Zugang zu einer weiteren Terrasse (8,05 m²). Ein komfortabler Rückzugsort mit hoher Wohnqualität.
– Zimmer II (17,63 m²) verfügt ebenfalls über ein eigenes Badezimmer (Bad/WC II, 4,73 m²) und eignet sich ideal als Gästezimmer, Kinderzimmer oder Home-Office.
Zusätzlich stehen ein separates WC (3,85 m²) sowie ein praktischer Abstellraum (3,62 m²) zur Verfügung, was den Wohnkomfort im Alltag deutlich erhöht.
Die großzügigen Außenflächen – bestehend aus zwei Terrassen und einem großen Balkon – bieten vielfältige Nutzungsmöglichkeiten, von entspanntem Outdoor-Dining bis hin zu urbanem Gartenambiente, und unterstreichen den exklusiven Penthouse-Charakter dieser Wohnung.
Die Ausstattung entspricht höchsten Standards:
Fußbodenheizung und Kühlung über Wärmepumpe
Dreifachverglaste Kunststoff-Alu-Fenster mit elektrischem Raffstore
Lichtdurchflutete Wohnräume
Hochwertige Parkettböden in Wohnräumen
Feinsteinzeugfliesen in Bad und WC
Videogegensprechanlage
Alle Wohnungen verfügen über einen eigenen Einlagerungsraum
Tiefgarage im Haus, Stellplätze vorbereitbar für E-Ladestationen
Lift von der Garage bis ins DG
Neubaustandard auf hohem technischen Niveau
Das Projekt befindet sich aktuell in Bau und wird voraussichtlich im März 2026 schlüsselfertig übergeben.
Diese Wohnung eignet sich ideal für Familien, Paare mit großzügigem Platzbedarf, Home-Office-Nutzer sowie alle, die modernes Wohnen mit mehreren Freiflächen in einer der besten Lagen des 13. Bezirks schätzen.
Kaufpreis: EUR 2.500.000,--
Stellplatz Kaufpreis: EUR 45.000,--
Nebenkosten:
- Grunderwerbssteuer: 3,50 % vom Kaufpreis
- Eintragungsgebühr: 1,10 % vom Kaufpreis
- Vertragserrichtungskosten und Treuhänderhonorar: % des Kaufpreises zzgl. 20% USt und Barauslagen
- Vermittlungsprovision: 3 % des Kaufpreises zzgl. 20% USt
Wir würden uns über ein persönliches Gespräch mit Ihnen sehr freuen!
Weitere verfügbare Wohneinheiten mit zahlreichen aktuellen TOP Projekten! Mehr Details findet Sie auf unsere Homepage!
www.vigoimmobilien.at | +43 664 99 877 599
Hinweis gemäß Energieausweisvorlagegesetz: Ein Energieausweis wurde vom Eigentümer bzw. Verkäufer, nach unserer Aufklärung über die generell geltende Vorlagepflicht, sowie Aufforderung zu seiner Erstellung noch nicht vorgelegt. Daher gilt zumindest eine dem Alter und der Art des Gebäudes entsprechende Gesamtenergieeffizienz als vereinbart. Wir übernehmen keinerlei Gewähr oder Haftung für die tatsächliche Energieeffizienz der angebotenen Immobilie.
Infrastruktur / Entfernungen
Gesundheit
Arzt <1.000m
Apotheke <1.000m
Klinik <2.500m
Krankenhaus <500m
Kinder & Schulen
Schule <500m
Kindergarten <1.000m
Universität <1.500m
Höhere Schule <5.000m
Nahversorgung
Supermarkt <500m
Bäckerei <500m
Einkaufszentrum <3.500m
Sonstige
Geldautomat <500m
Bank <1.000m
Post <1.500m
Polizei <1.000m
Verkehr
Bus <500m
Straßenbahn <1.000m
U-Bahn <500m
Bahnhof <500m
Autobahnanschluss <3.000m
Angaben Entfernung Luftlinie / Quelle: OpenStreetMap
Objektdaten
Ausstattung
- Klimatisiert
- Swimmingpool
- Gäste-WC
- Bad mit Dusche
- Bad mit Badewanne
- Fliesenboden
- Fertigparkettboden
- Zentralheizung
- Fußbodenheizung
- Luftwärmepumpe
- Personen Fahrstuhl
- Flachdach
- Massiv Bauweise
- Schlüsselfertig mit Keller
- Neubaustandard
Zustand
- Zustand
- ERSTBEZUG
- Baujahr
- 2025
- Alter
- NEUBAU
Flächen
- Anzahl der Zimmer
- 3.5
- Anzahl der Badezimmer
- 2
- Anzahl der sep. WCs
- 1
- Anzahl der Terrassen
- 2
- Stellplätze
- 1
- Wohnfläche
- 158m²
- Terrassenfläche
- 2m²
- Nutzfläche
- 179m²
Kosten
- Kaufpreis Brutto
- € 2.500.000,00
Verwaltung
- Verfügbar ab
- März 2026
Wohnungen zum Kaufen in Österreich
- Bezirk Gemeindebezirk Hietzing
- Bezirk Gemeindebezirk Hietzing
- Bezirk Gemeindebezirk Hietzing
- Bezirk Gemeindebezirk Penzing
- Bezirk Gemeindebezirk Penzing
- Bezirk Gemeindebezirk Penzing
- Bezirk Gemeindebezirk Meidling
- Bezirk Gemeindebezirk Meidling
- Bezirk Gemeindebezirk Meidling
- Bezirk Gemeindebezirk Rudolfsheim-Fünfhaus
Wohnungen zum Kaufen in Österreich
Wohnungen zum Kaufen in Österreich
Andere Besucher suchen nach...
- Grundstücke kaufen in 3400 Weidlingbach
- Wohnungen kaufen in 4663 Laakirchen
- Häuser in 7471 Rechnitz
- Wohnungen in 2410 Hainburg an der Donau
- Häuser kaufen in 2432 Schwadorf
- Wohnungen kaufen in 3002 Purkersdorf
- Häuser in 3150 Wilhelmsburg
- Wohnungen kaufen in 3470 Engelmannsbrunn
- Grundstücke kaufen im Bezirk Mattersburg
- Grundstücke kaufen im Bezirk Gmunden