Sanierter Altbau mit modernem Neubau
-
Erstbezug
-
2025
-
sofort
Beschreibung
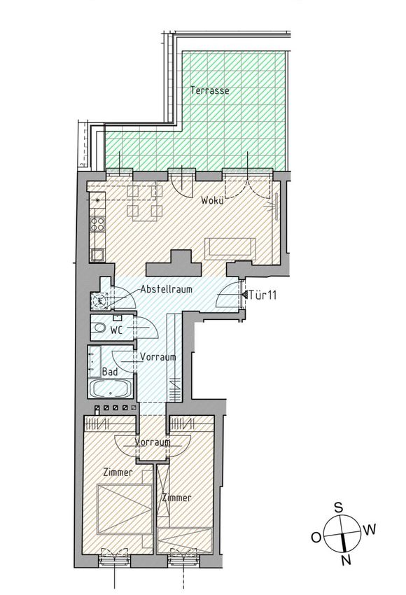
Moderne Terrassenwohnung mit außergewöhnlicher Raumhöhe – Ruhig gelegen, nach hinten gartenseitig ausgerichtet, öffnet sie sich zu einem geschützten, grünen Rückzugsbereich. Diese besondere 3-Zimmer-Terrassenwohnung verbindet den Charme des hochwertig sanierten Altbaus mit der klaren Modernität des angebauten Neubaus. Besonders beeindruckend ist die Raumhöhe von bis zu 3,10 Metern, die der Wohnung eine großzügige und luftige Atmosphäre verleiht.
Highlights der Wohnung - Südseitige ca. 6,55 m² Terrasse - Hochwertige Einbauküche, inkl. Marken-Geräten - Modernes Badezimmer mit Badewanne, LED-Spiegelschrank und Markenarmaturen - Abstellraum mit Waschmaschinenanschluß - Innovatives Heizsystem: Infrarot-Konvektoren (fernsteuerbar über App) & Fußboden-Infrafloor Heizmatten im Vorraum, Bad und WC - Klimaanlage im...
Moderne Terrassenwohnung mit außergewöhnlicher Raumhöhe – Ruhig gelegen, nach hinten gartenseitig ausgerichtet, öffnet sie sich zu einem geschützten, grünen Rückzugsbereich.
Diese besondere 3-Zimmer-Terrassenwohnung verbindet den Charme des hochwertig sanierten Altbaus mit der klaren Modernität des angebauten Neubaus. Besonders beeindruckend ist die Raumhöhe von bis zu 3,10 Metern, die der Wohnung eine großzügige und luftige Atmosphäre verleiht.
Highlights der Wohnung
- Südseitige ca. 6,55 m² Terrasse
- Hochwertige Einbauküche, inkl. Marken-Geräten
- Modernes Badezimmer mit Badewanne, LED-Spiegelschrank und Markenarmaturen
- Abstellraum mit Waschmaschinenanschluß
- Innovatives Heizsystem: Infrarot-Konvektoren (fernsteuerbar über App) & Fußboden-Infrafloor Heizmatten im Vorraum, Bad und WC
- Klimaanlage im Wohn- und Schlafzimmer
- LED-Grundbeleuchtung in allen Funktionsbereichen
- Parkettboden Landhausdiele Eiche natur
- Innenjalousien
- Ruhige Gartenlage
- Raumhöhe im Altbau bis zu 3,10 m und im Neubau 2,50 m
- Personenlift im Haus
- Waschküche im Haus
- Fahrradabstellmöglichkeiten im Haus und vor dem Haus
Eine perfekte Wohnung für alle, die modernen Komfort, außergewöhnliche Raumwirkung und eine ruhige Lage in urbanem Umfeld schätzen.
Wir weisen darauf hin, dass zwischen dem Vermittler und dem zu vermittelnden Dritten ein familiäres oder wirtschaftliches Naheverhältnis besteht.
Der Vermittler ist als Doppelmakler tätig.
Infrastruktur / Entfernungen
Gesundheit
Arzt <500m
Apotheke <500m
Klinik <2.000m
Krankenhaus <1.000m
Kinder & Schulen
Schule <500m
Kindergarten <1.000m
Universität <1.500m
Höhere Schule <4.000m
Nahversorgung
Supermarkt <500m
Bäckerei <500m
Einkaufszentrum <4.000m
Sonstige
Geldautomat <500m
Bank <1.000m
Post <1.000m
Polizei <500m
Verkehr
Bus <500m
U-Bahn <500m
Straßenbahn <1.000m
Bahnhof <500m
Autobahnanschluss <4.500m
Angaben Entfernung Luftlinie / Quelle: OpenStreetMap
Objektdaten
Ausstattung
- Klimatisiert
- Kabel/SAT-TV
- Wasch-/Trockenraum
- Fahrradraum
- Bad mit Badewanne
- Einbauküche
- Fliesenboden
- Parkettboden
- Elektrische Befeuerung
- Solar
- Personen Fahrstuhl
- Massiv Bauweise
Zustand
- Zustand
- ERSTBEZUG
- Baujahr
- 2025
- Alter
- NEUBAU
- HWB
- 48.7 kWh/m² pro Jahr
- Klasse HWB
- B
- fGEE
- 1.32
- Klasse fGEE
- C
Flächen
- Anzahl der Zimmer
- 3
- Anzahl der Badezimmer
- 1
- Anzahl der sep. WCs
- 1
- Anzahl der Terrassen
- 1
- Wohnfläche
- 65m²
- Kellerfläche
- 5m²
- Terrassenfläche
- 1m²
Kosten
- Kaufpreis Brutto
- € 580.000,00
Verwaltung
- Verfügbar ab
- sofort
Wohnungen zum Kaufen in Österreich
- Bezirk Gemeindebezirk Hietzing
- Bezirk Gemeindebezirk Hietzing
- Bezirk Gemeindebezirk Hietzing
- Bezirk Gemeindebezirk Penzing
- Bezirk Gemeindebezirk Penzing
- Bezirk Gemeindebezirk Penzing
- Bezirk Gemeindebezirk Meidling
- Bezirk Gemeindebezirk Meidling
- Bezirk Gemeindebezirk Meidling
- Bezirk Gemeindebezirk Rudolfsheim-Fünfhaus
Wohnungen zum Kaufen in Österreich
Wohnungen zum Kaufen in Österreich
Andere Besucher suchen nach...
- Grundstücke kaufen in 3400 Weidlingbach
- Wohnungen kaufen in 4663 Laakirchen
- Häuser in 7471 Rechnitz
- Wohnungen in 2410 Hainburg an der Donau
- Häuser kaufen in 2432 Schwadorf
- Wohnungen kaufen in 3002 Purkersdorf
- Häuser in 3150 Wilhelmsburg
- Wohnungen kaufen in 3470 Engelmannsbrunn
- Grundstücke kaufen im Bezirk Mattersburg
- Grundstücke kaufen im Bezirk Gmunden