ERSTBEZUG ! Hochwertig generalsanierte 3 Zimmer miz TERRASSE UND GARTEN )Top 07)
-
Erstbezug
-
Sofort
Beschreibung
Exklusives Wohnprojekt in historischem Gebäude (Top 07: 3 Zimmer, Terrasse, Gartenanteil)
In einem generalsanierten Spätsecessionshaus (BJ 1913–1914) entstehen 22 hochwertige Wohnungen mit Größen von 37 bis 150 m², teilweise mit Balkon, Terrasse oder Garten.
ÜBERSICHT:
- 10 Altbauwohnungen für Eigennutzer oder Anleger
- 7 Einheiten für dauerhafte Kurzzeitvermietung (Airbnb)
- 5 neu errichtete Dachgeschosswohnungen
Ausstattung:
- Luft-Wärmepumpe mit Heiz- & Kühlfunktion
- Fußbodenheizung
- Fußboden & Kühldecken
- Eichenparkett, großformatige Fliesen
- Personenlift, Kellerabteile, Fahrrad-/Kinderwagenraum
Lage:
Optimale Anbindung: U3 (Johnstraße, Hütteldorfer Str.), Straßenbahn 49 & 9, Bus 10A & 12A. Innenstadt und Grünoasen in wenigen Minuten erreichbar.
Top 07 – Stilvolle...
Exklusives Wohnprojekt in historischem Gebäude (Top 07: 3 Zimmer, Terrasse, Gartenanteil)
In einem generalsanierten Spätsecessionshaus (BJ 1913–1914) entstehen 22 hochwertige Wohnungen mit Größen von 37 bis 150 m², teilweise mit Balkon, Terrasse oder Garten.
ÜBERSICHT:
- 10 Altbauwohnungen für Eigennutzer oder Anleger
- 7 Einheiten für dauerhafte Kurzzeitvermietung (Airbnb)
- 5 neu errichtete Dachgeschosswohnungen
Ausstattung:
- Luft-Wärmepumpe mit Heiz- & Kühlfunktion
- Fußbodenheizung
- Fußboden & Kühldecken
- Eichenparkett, großformatige Fliesen
- Personenlift, Kellerabteile, Fahrrad-/Kinderwagenraum
Lage:
Optimale Anbindung: U3 (Johnstraße, Hütteldorfer Str.), Straßenbahn 49 & 9, Bus 10A & 12A. Innenstadt und Grünoasen in wenigen Minuten erreichbar.
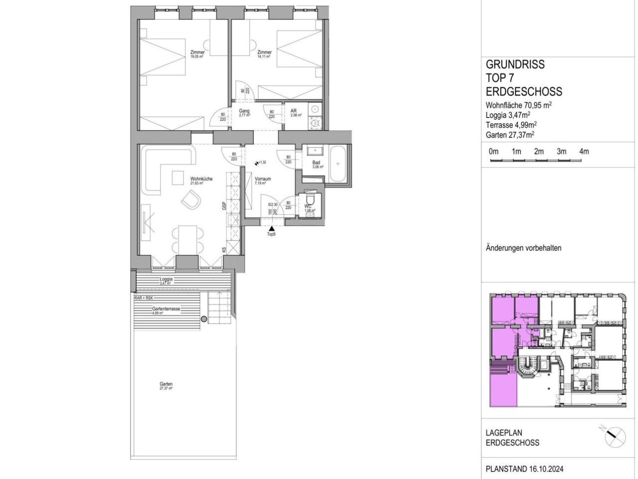
Top 07 – Stilvolle 3-Zimmer-Wohnung mit moderner Ausstattung und Garten
Willkommen in Ihrer neuen Wohnung! Diese Einheit besticht durch eine durchdachte Raumaufteilung und hochwertige Materialien.
Raumaufteilung:
- Wohn-/Essbereich mit Zugang zur Terrasse und Garten
- 2 Schlafzimmer
- Bad & separates WC
- Zentrales Vorzimmer
Edles Parkett und Feinsteinzeugfliesen sorgen für ein elegantes Ambiente. Fußbodenheizung und Kühlung über Luftwärmepumpe garantieren Komfort zu jeder Jahreszeit. Zusätzlich gibt es noch eine Decken Kühlung. Die gesamte Liegenschaft wurde die wunderschön und hochwertig renoviert.
Weitere Details unter: https://www.akp2.at/
Hinweis gemäß Energieausweisvorlagegesetz: Ein Energieausweis wurde vom Eigentümer bzw. Verkäufer, nach unserer Aufklärung über die generell geltende Vorlagepflicht, sowie Aufforderung zu seiner Erstellung noch nicht vorgelegt. Daher gilt zumindest eine dem Alter und der Art des Gebäudes entsprechende Gesamtenergieeffizienz als vereinbart. Wir übernehmen keinerlei Gewähr oder Haftung für die tatsächliche Energieeffizienz der angebotenen Immobilie.
Wir weisen darauf hin, dass zwischen dem Vermittler und dem zu vermittelnden Dritten ein familiäres oder wirtschaftliches Naheverhältnis besteht.
Der Vermittler ist als Doppelmakler tätig.
Infrastruktur / Entfernungen
Gesundheit
Arzt <250m
Apotheke <500m
Klinik <1.250m
Krankenhaus <1.500m
Kinder & Schulen
Schule <500m
Kindergarten <500m
Universität <500m
Höhere Schule <750m
Nahversorgung
Supermarkt <250m
Bäckerei <500m
Einkaufszentrum <750m
Sonstige
Geldautomat <500m
Bank <500m
Post <500m
Polizei <750m
Verkehr
Bus <250m
U-Bahn <500m
Straßenbahn <500m
Bahnhof <500m
Autobahnanschluss <5.000m
Angaben Entfernung Luftlinie / Quelle: OpenStreetMap
Objektdaten
Ausstattung
- Fliesenboden
- Parkettboden
- Fußbodenheizung
- Luftwärmepumpe
- Personen Fahrstuhl
- Massiv Bauweise
- Klimatisiert
Dokumente / Links
Zustand
- Zustand
- ERSTBEZUG
- Alter
- ALTBAU
Flächen
- Anzahl der Zimmer
- 3
- Anzahl der Badezimmer
- 1
- Anzahl der sep. WCs
- 1
- Anzahl der Terrassen
- 1
- Wohnfläche
- 71m²
- Gartenfläche
- 27m²
- Kellerfläche
- 2m²
- Terrassenfläche
- 1m²
Kosten
- Kaufpreis Brutto
- € 572.000,00
- Betriebskosten
- € 127,49
- Heizkosten
- € 48,04
- Sonstige Kosten
- € 53,54
Verwaltung
- Verfügbar ab
- Sofort
Wohnungen zum Kaufen in Österreich
- Bezirk Gemeindebezirk Rudolfsheim-Fünfhaus
- Bezirk Gemeindebezirk Rudolfsheim-Fünfhaus
- Bezirk Gemeindebezirk Rudolfsheim-Fünfhaus
- Bezirk Gemeindebezirk Penzing
- Bezirk Gemeindebezirk Penzing
- Bezirk Gemeindebezirk Penzing
- Bezirk Gemeindebezirk Ottakring
- Bezirk Gemeindebezirk Ottakring
- Bezirk Gemeindebezirk Ottakring
- Bezirk Gemeindebezirk Neubau
Wohnungen zum Kaufen in Österreich
Wohnungen zum Kaufen in Österreich
Andere Besucher suchen nach...
- Grundstücke kaufen in 3400 Weidlingbach
- Wohnungen kaufen in 4663 Laakirchen
- Häuser in 7471 Rechnitz
- Wohnungen in 2410 Hainburg an der Donau
- Häuser kaufen in 2432 Schwadorf
- Wohnungen kaufen in 3002 Purkersdorf
- Häuser in 3150 Wilhelmsburg
- Wohnungen kaufen in 3470 Engelmannsbrunn
- Grundstücke kaufen im Bezirk Mattersburg
- Grundstücke kaufen im Bezirk Gmunden