Sehr großzügige Familienwohnung mit Altbaucharme in Toplage beim Westbahnhof: hell + ruhig, Nähe U6-Burggasse/Stadthalle + Westbahnhof!
Beschreibung
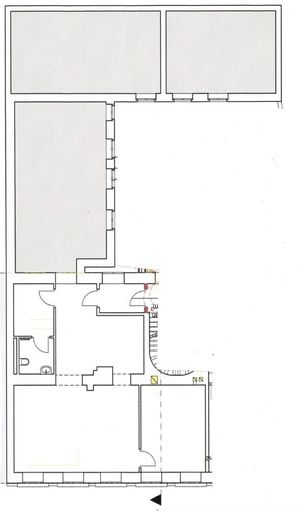
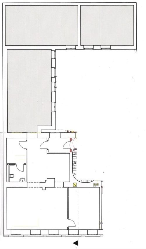
Im 1. Stock eines gepflegten Hauses Baujahr 1869 liegt die freundliche, charmante und ruhige Altbauwohnung. Mit einer Fläche von ca. 199 m2 bietet sie großzügig Platz für eine Familie oder für die Kombination Wohnen und Arbeiten. Kellerabteil vorhanden. Kein Lift.
Es gibt 7 Zimmer, eine im Wohnraum integrierte Küche, eine weitere kleine Küche mit Küchenzeile, ein Bad mit Wanne + Dusche + Wirtschaftsraum für die Waschmaschine, ein WC und einen Abstellraum. Ausrichtung südöstlich und nordwestlich, Blick teilweise auf eine ruhige Gasse und teilweise in einen Innenhof. Heizung: Gasetagenheizung. Fliesenböden und Laminat. Die Wohnung wird möbliert verkauft. Übergabe nach Vereinbarung....
Im 1. Stock eines gepflegten Hauses Baujahr 1869 liegt die freundliche, charmante und ruhige Altbauwohnung. Mit einer Fläche von ca. 199 m2 bietet sie großzügig Platz für eine Familie oder für die Kombination Wohnen und Arbeiten.
Kellerabteil vorhanden. Kein Lift.
Es gibt 7 Zimmer, eine im Wohnraum integrierte Küche, eine weitere kleine Küche mit Küchenzeile, ein Bad mit Wanne + Dusche + Wirtschaftsraum für die Waschmaschine, ein WC und einen Abstellraum.
Ausrichtung südöstlich und nordwestlich, Blick teilweise auf eine ruhige Gasse und teilweise in einen Innenhof.
Heizung: Gasetagenheizung.
Fliesenböden und Laminat.
Die Wohnung wird möbliert verkauft. Übergabe nach Vereinbarung.
Die Eigentümerin hat erklärt. dass ein Käufer Wohnungseigentum erhält - sie will auf ihre Kosten noch eine Wohnungseigentumsbegründung durchführen.
HWB (kWh/m²a): i149,5. Klasse D.
Toplage: unmittelbare Nähe zur beliebten Einkaufsstraße Mariahilferstraße. Die U3- und U6- Westbahnhof sind etwa 5 min. zu Fuß entfernt. Ebenfalls nahe ist die Straßenbahnlinie 6. Nicht weit zur Hauptbibliothek. Geschäfte am Westbahnhof teilweise auch an Wochenenden oder Feiertagen geöffnet.
Der nahe Park beim Emil Maurer Platz lädt zu Sport und Erholung ein.
Die Wohnung besticht durch die Großzügigkeit, den Charme des Altbaus, die Toplage sowie durch die Ruhe und Freundlichkeit.
Wenn Sie Fragen haben oder wegen eines Besichtigungstermins senden Sie bitte eine Mail-Anfrage oder wenden sich telefonisch an Frau Mag. Uta Ribarits: 0699/19460464 oder an Herrn Gregor Lesniewski: 0699!11306746.
Der Vermittler ist als Doppelmakler tätig.
Objektdaten
Ausstattung
- Vollmöbliert
- Bad mit Dusche
- Bad mit Badewanne
- Einbauküche
- Offene Küche
- Fliesenboden
- Laminatboden
- Etage Heizung
- Befeuerung mit Gas
Zustand
- Zustand
- GEPFLEGT
- Baujahr
- 1869
- Alter
- ALTBAU
- HWB
- 149.5 kWh/m² pro Jahr
- Klasse HWB
- D
- fGEE
- 2.49
- Klasse fGEE
- D
Flächen
- Anzahl der Zimmer
- 7
- Anzahl der Badezimmer
- 1
- Anzahl der sep. WCs
- 1
- Wohnfläche
- 199m²
Kosten
- Kaufpreis Brutto
- € 752.000,00
- Betriebskosten
- € 829,61
Verwaltung
- Verfügbar ab
- nach Vereinbarung
Wohnungen zum Kaufen in Österreich
- Bezirk Gemeindebezirk Rudolfsheim-Fünfhaus
- Bezirk Gemeindebezirk Rudolfsheim-Fünfhaus
- Bezirk Gemeindebezirk Rudolfsheim-Fünfhaus
- Bezirk Gemeindebezirk Mariahilf
- Bezirk Gemeindebezirk Mariahilf
- Bezirk Gemeindebezirk Mariahilf
- Bezirk Gemeindebezirk Neubau
- Bezirk Gemeindebezirk Neubau
- Bezirk Gemeindebezirk Neubau
- Bezirk Gemeindebezirk Margareten
Wohnungen zum Kaufen in Österreich
Wohnungen zum Kaufen in Österreich
Andere Besucher suchen nach...
- Grundstücke kaufen in 3400 Weidlingbach
- Wohnungen kaufen in 4663 Laakirchen
- Häuser in 7471 Rechnitz
- Wohnungen in 2410 Hainburg an der Donau
- Häuser kaufen in 2432 Schwadorf
- Wohnungen kaufen in 3002 Purkersdorf
- Häuser in 3150 Wilhelmsburg
- Wohnungen kaufen in 3470 Engelmannsbrunn
- Grundstücke kaufen im Bezirk Mattersburg
- Grundstücke kaufen im Bezirk Gmunden