Eigentumswohnung im 17. Bezirk
€ 489.000
€ 4.688 / m²
1170 Wien
Beschreibung
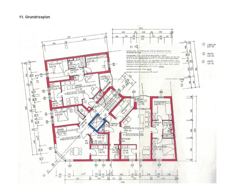
OBJEKTBESCHREIBUNG Zum Verkauf steht eine helle 4-Zimmer-Eigentumswohnung im 2. Obergeschoss eines gepflegten Wohnhauses in Wien-Hernals. Die Wohnung überzeugt durch ihre durchdachte Raumaufteilung, hochwertige Materialien und eine ruhige, grüne Innenhoflage mit Loggia. OBJEKTTYP - Eigentumswohnung - Wohnfläche: ca. 104,31 m² - Loggia: ca. 5,45 m² - Zimmer: 4 - Etage: 2. Obergeschoss - Kellerabteil: ja - Heizung: Zentralheizung (Gas) - Energieausweis: HWB 79,7 kWh/m²a – Kategorie C RAUMAUFTEILUNG - Vorraum - Wohnzimmer mit Essbereich und Zugang zur Loggia - Geschlossene Küche (vom Essbereich aus begehbar) - Schlafzimmer mit eigenem Vorraum - Kinderzimmer / Homeoffice - Weiteres Zimmer (Gäste- oder Arbeitszimmer) -...
OBJEKTBESCHREIBUNG
Zum Verkauf steht eine helle 4-Zimmer-Eigentumswohnung im 2. Obergeschoss eines gepflegten Wohnhauses in Wien-Hernals. Die Wohnung überzeugt durch ihre durchdachte Raumaufteilung, hochwertige Materialien und eine ruhige, grüne Innenhoflage mit Loggia.
OBJEKTTYP
- Eigentumswohnung
- Wohnfläche: ca. 104,31 m²
- Loggia: ca. 5,45 m²
- Zimmer: 4
- Etage: 2. Obergeschoss
- Kellerabteil: ja
- Heizung: Zentralheizung (Gas)
- Energieausweis: HWB 79,7 kWh/m²a – Kategorie C
RAUMAUFTEILUNG
- Vorraum
- Wohnzimmer mit Essbereich und Zugang zur Loggia
- Geschlossene Küche (vom Essbereich aus begehbar)
- Schlafzimmer mit eigenem Vorraum
- Kinderzimmer / Homeoffice
- Weiteres Zimmer (Gäste- oder Arbeitszimmer)
- Bad mit Wanne und WC
- Bad mit Dusche und WC
- Abstellraum
- Ausstattung und Zustand
- Neu verlegte hochwertige Eichen-Landhausdielen
- Frisch ausgemalt – Wände und Oberflächen saniert
- Doppelverglaste Fenster mit gutem Schallschutz
- Zwei modern ausgestattete Bäder
- Loggia mit Blick ins Grüne
- Sehr gepflegtes Haus, kein Reparaturstau
Der Bau- und Erhaltungszustand des Hauses ist sehr gut bis gut, größere Instandsetzungen sind laut Gutachten nicht erforderlich.
LAGE UND INFRASTRUKTUR
Die Blumengasse liegt in einem ruhigen, urbanen Umfeld mit ausgezeichneter Infrastruktur.
Öffentliche Verkehrsmittel: Straßenbahnlinien 9 und 43 – schnelle Anbindung an die Innenstadt
Nahversorgung: Supermärkte, Bäckereien, Apotheken, Banken – alles fußläufig erreichbar
Bildungseinrichtungen: Kindergärten, Volksschule, HLW Kalvarienberg, Montessori-Schule
Gesundheit: Allgemein- und Fachärzte, Apotheken in unmittelbarer Nähe, AKH Wien ≈ 10 Minuten
Erholung: Grünflächen und Freizeitmöglichkeiten in Gehweite
BESONDERE MERKMALE
- Lichtdurchflutete Räume mit südwestlicher Ausrichtung
- Ruhige Loggia in Hoflage
- Familienfreundliche Umgebung
- Ideal auch für Homeoffice
- Sofort bezugsfertig
SONSTIGES
- Kellerabteil im Eigentum
- Haus wurde 1992 errichtet
- Keine Schutzzone, keine Bausperre
Zum Verkauf steht eine helle 4-Zimmer-Eigentumswohnung im 2. Obergeschoss eines gepflegten Wohnhauses in Wien-Hernals. Die Wohnung überzeugt durch ihre durchdachte Raumaufteilung, hochwertige Materialien und eine ruhige, grüne Innenhoflage mit Loggia.
OBJEKTTYP
- Eigentumswohnung
- Wohnfläche: ca. 104,31 m²
- Loggia: ca. 5,45 m²
- Zimmer: 4
- Etage: 2. Obergeschoss
- Kellerabteil: ja
- Heizung: Zentralheizung (Gas)
- Energieausweis: HWB 79,7 kWh/m²a – Kategorie C
RAUMAUFTEILUNG
- Vorraum
- Wohnzimmer mit Essbereich und Zugang zur Loggia
- Geschlossene Küche (vom Essbereich aus begehbar)
- Schlafzimmer mit eigenem Vorraum
- Kinderzimmer / Homeoffice
- Weiteres Zimmer (Gäste- oder Arbeitszimmer)
- Bad mit Wanne und WC
- Bad mit Dusche und WC
- Abstellraum
- Ausstattung und Zustand
- Neu verlegte hochwertige Eichen-Landhausdielen
- Frisch ausgemalt – Wände und Oberflächen saniert
- Doppelverglaste Fenster mit gutem Schallschutz
- Zwei modern ausgestattete Bäder
- Loggia mit Blick ins Grüne
- Sehr gepflegtes Haus, kein Reparaturstau
Der Bau- und Erhaltungszustand des Hauses ist sehr gut bis gut, größere Instandsetzungen sind laut Gutachten nicht erforderlich.
LAGE UND INFRASTRUKTUR
Die Blumengasse liegt in einem ruhigen, urbanen Umfeld mit ausgezeichneter Infrastruktur.
Öffentliche Verkehrsmittel: Straßenbahnlinien 9 und 43 – schnelle Anbindung an die Innenstadt
Nahversorgung: Supermärkte, Bäckereien, Apotheken, Banken – alles fußläufig erreichbar
Bildungseinrichtungen: Kindergärten, Volksschule, HLW Kalvarienberg, Montessori-Schule
Gesundheit: Allgemein- und Fachärzte, Apotheken in unmittelbarer Nähe, AKH Wien ≈ 10 Minuten
Erholung: Grünflächen und Freizeitmöglichkeiten in Gehweite
BESONDERE MERKMALE
- Lichtdurchflutete Räume mit südwestlicher Ausrichtung
- Ruhige Loggia in Hoflage
- Familienfreundliche Umgebung
- Ideal auch für Homeoffice
- Sofort bezugsfertig
SONSTIGES
- Kellerabteil im Eigentum
- Haus wurde 1992 errichtet
- Keine Schutzzone, keine Bausperre
| Angaben gemäß gesetzlichem Erfordernis: | |||
| Heizwärmebedarf: | 79.9 kWh/(m²a) | ||
| Klasse Heizwärmebedarf: | C | ||
Objektdaten
Ausstattung
- Zentralheizung
- Befeuerung mit Gas
- Zentralheizung mit Gas
Dokumente / Links
Zustand
- Baujahr
- ca. 1992
Flächen
- Anzahl der Zimmer
- 4
- Wohnfläche
- 104m²
Kosten
- Kaufpreis
- € 489.000,00
- Nebenkosten
- € 480,35
- Betriebskosten Brutto
- € 480,35
Wohnungen zum Kaufen in Österreich
Wohnungen zum Kaufen in Österreich
Wohnungen zum Kaufen in Österreich
Andere Besucher suchen nach...
- Grundstücke kaufen in 3400 Weidlingbach
- Wohnungen kaufen in 4663 Laakirchen
- Häuser in 7471 Rechnitz
- Wohnungen in 2410 Hainburg an der Donau
- Häuser kaufen in 2432 Schwadorf
- Wohnungen kaufen in 3002 Purkersdorf
- Häuser in 3150 Wilhelmsburg
- Wohnungen kaufen in 3470 Engelmannsbrunn
- Grundstücke kaufen im Bezirk Mattersburg
- Grundstücke kaufen im Bezirk Gmunden