Moderne 3-Zimmer-Wohnung in 1180 Wien – Erstbezug zum Kaufpreis von 499.000 €!
-
Erstbezug
-
2023
Beschreibung
1180 WIEN - Martinstrasse 41-43 Eigentums-/Vorsorgewohnungen
Es wurden Neubau- und Dachwohnungen errichtet und die Altbauwohnungen generalsaniert. Als Generalunternehmer fungiert die STRABAG AG.
TOP 7 Neubau (1 Stock):
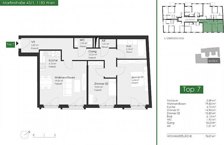
Diese sehr gut aufgeteilte 3 Zimmerwohnung hat eine Wohnfläche von ca. 76,01 m² und befindet sich im 1.Liftstock
Raumaufteilung:
- 1 Wohn-Esszimmer mit kleinem Balkon
- 2 Schlafzimmer mit kleinem Balkon
- 1 Badezimmer
- 1 WC
- 1 Vorzimmer
- 1 Abstellraum
Die Übergabe erfolgt in schlüsselfertiger Ausstattung.
Ausstattung
- Moderne Hauszentralheizung (Anlagencontracting / Kombi: Wärmepumpe/Gas Brennwert/PV
- Luft-Wasser-Wärmepumpe (Unterstützung durch Gasbrennwertgerät)
- PV Anlage (unterstützt die Wärmepumpe)
- Alle...
1180 WIEN - Martinstrasse 41-43
Eigentums-/Vorsorgewohnungen
Es wurden Neubau- und Dachwohnungen errichtet und die Altbauwohnungen generalsaniert. Als Generalunternehmer fungiert die STRABAG AG.
TOP 7 Neubau (1 Stock):
Diese sehr gut aufgeteilte 3 Zimmerwohnung hat eine Wohnfläche von ca. 76,01 m² und befindet sich im 1.Liftstock
Raumaufteilung:
- 1 Wohn-Esszimmer mit kleinem Balkon
- 2 Schlafzimmer mit kleinem Balkon
- 1 Badezimmer
- 1 WC
- 1 Vorzimmer
- 1 Abstellraum
Die Übergabe erfolgt in schlüsselfertiger Ausstattung.
Ausstattung
- Moderne Hauszentralheizung (Anlagencontracting / Kombi: Wärmepumpe/Gas Brennwert/PV
- Luft-Wasser-Wärmepumpe (Unterstützung durch Gasbrennwertgerät)
- PV Anlage (unterstützt die Wärmepumpe)
- Alle Wohnungen mit Kühlfunktion (Wärmepumpe)
- Fußbodenheizung(-Kühlung)
- Großzügige Sanitärbereiche (Feinsteinzeug 60x30/60x60)
- 3 fach Isolierverglasung
- Eichenparkettböden
- Großformatige Fliesen
- Sicherheitseingangstüren
Gemeinflächen:
Fahrrad- und Kinderwagenabstellraum, Liftanlage
Die Infrastruktur rund um das Projekt ist als sehr gut zu bezeichnen. Es befinden sich in unmittelbarer Nähe alle Nahversorger (Billa, Hofer, Lidl, usw.)
VERKEHRSVERBINDUNGEN:
STRASSENBAHNLINIE
Linie 42, 43
U-BAHN STATIONEN
U 6 - Station Michelbeuern AKH
U 6 - Alser Straße
Alle aktuell verfügbaren Wohnungen finden Sie unter www.martinstrasse1180.at
Vereinbaren Sie noch heute einen Besichtigungstermin und lassen Sie sich von dieser Wohnung begeistern! Ihr neues Zuhause in Wien wartet auf Sie!
Wir weisen ausdrücklich auf unser wirtschaftliches Naheverhältnis zum Abgeber/Eigentümer hin! Irrtum und Änderungen vorbehalten!
Wir weisen darauf hin, dass zwischen dem Vermittler und dem zu vermittelnden Dritten ein familiäres oder wirtschaftliches Naheverhältnis besteht.
Der Vermittler ist als Doppelmakler tätig.
Infrastruktur / Entfernungen
Gesundheit
Arzt <100m
Apotheke <150m
Klinik <75m
Krankenhaus <450m
Kinder & Schulen
Schule <175m
Kindergarten <225m
Universität <775m
Höhere Schule <650m
Nahversorgung
Supermarkt <125m
Bäckerei <175m
Einkaufszentrum <775m
Sonstige
Geldautomat <200m
Bank <200m
Post <200m
Polizei <100m
Verkehr
Bus <125m
U-Bahn <175m
Straßenbahn <125m
Bahnhof <200m
Autobahnanschluss <2.550m
Angaben Entfernung Luftlinie / Quelle: OpenStreetMap
Objektdaten
Ausstattung
- Barrierefrei
- Bad mit Dusche
- Fliesenboden
- Fertigparkettboden
- Befeuerung mit Gas
- Luftwärmepumpe
- Personen Fahrstuhl
- Massiv Bauweise
Dokumente / Links
Zustand
- Zustand
- ERSTBEZUG
- Baujahr
- 2023
- Alter
- NEUBAU
- HWB
- 29.8 kWh/m² pro Jahr
- fGEE
- 0.8
Flächen
- Anzahl der Zimmer
- 3
- Anzahl der Badezimmer
- 1
- Anzahl der sep. WCs
- 1
- Wohnfläche
- 76m²
Kosten
- Kaufpreis Brutto
- € 499.000,00
- Betriebskosten
- € 166,00
- Sonstige Kosten
- € 30,50
Wohnungen zum Kaufen in Österreich
- Bezirk Gemeindebezirk Alsergrund
- Bezirk Gemeindebezirk Alsergrund
- Bezirk Gemeindebezirk Alsergrund
- Bezirk Gemeindebezirk Josefstadt
- Bezirk Gemeindebezirk Josefstadt
- Bezirk Gemeindebezirk Josefstadt
- Bezirk Gemeindebezirk Währing
- Bezirk Gemeindebezirk Währing
- Bezirk Gemeindebezirk Währing
- Bezirk Gemeindebezirk Hernals
Wohnungen zum Kaufen in Österreich
Wohnungen zum Kaufen in Österreich
Andere Besucher suchen nach...
- Grundstücke kaufen in 3400 Weidlingbach
- Wohnungen kaufen in 4663 Laakirchen
- Häuser in 7471 Rechnitz
- Wohnungen in 2410 Hainburg an der Donau
- Häuser kaufen in 2432 Schwadorf
- Wohnungen kaufen in 3002 Purkersdorf
- Häuser in 3150 Wilhelmsburg
- Wohnungen kaufen in 3470 Engelmannsbrunn
- Grundstücke kaufen im Bezirk Mattersburg
- Grundstücke kaufen im Bezirk Gmunden