Jetzt einziehen - Geschmackvoll sanierte 3 Zimmerwohnung in begehrter Ruhelage!
-
sofort
Beschreibung
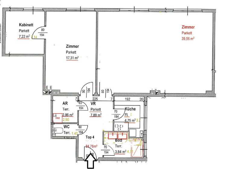
Unweit der Sieveringer Straße gelangt diese sehr ansprechend renovierte, rund 85m² große 3 Zimmerwohnung zum Verkauf. Sie liegt im Hochparterre eines gepflegten Hauses, welches im Jahre 1960 errichtet wurde. Die Wohnräume sind komplett gartenseitig ausgerichtet. Das Zentrum der Wohnung bildet der süd - westlich ausgerichtete ca. 40m² große Wohnsalon mit offenem Kamin. Der bernsteinfarbene Echtholzparkett in Verbindung mit dem lichtdurchfluteten Räumen verleiht umgehend ein wunderbares Wohngefühl. Die separate Küche mit Fenster ist vollausgestattet und ist idealer Weise über den geräumigen Vorraum zu betreten. Das Schlafzimmer hat eine gute Größe und bietet genügend Platz für ein großes Bett und zusätzlichen Stauraum....
Unweit der Sieveringer Straße gelangt diese sehr ansprechend renovierte, rund 85m² große 3 Zimmerwohnung zum Verkauf. Sie liegt im Hochparterre eines gepflegten Hauses, welches im Jahre 1960 errichtet wurde. Die Wohnräume sind komplett gartenseitig ausgerichtet. Das Zentrum der Wohnung bildet der süd - westlich ausgerichtete ca. 40m² große Wohnsalon mit offenem Kamin. Der bernsteinfarbene Echtholzparkett in Verbindung mit dem lichtdurchfluteten Räumen verleiht umgehend ein wunderbares Wohngefühl. Die separate Küche mit Fenster ist vollausgestattet und ist idealer Weise über den geräumigen Vorraum zu betreten. Das Schlafzimmer hat eine gute Größe und bietet genügend Platz für ein großes Bett und zusätzlichen Stauraum. Das angrenzende Kabinett ist rund 7 m² groß und eröffnet viele Nutzungsmöglichkeiten. Im verfliesten Badezimmer finden Sie eine bodengleiche Dusche und 2 Handwaschbecken. Der praktische Abstellraum sowie die separate Toilette komplettieren das Immobilienangebot. Der Wohnung ist noch ein 7m² großes Lager mit Fenster zugeordnet, das € 9.000 kostet.
Zusammen mit der Wohnung werden zwei Garagenplätze plus ein Lager zu einem Kaufpreis von € 59.000 ,- verkauft. Ein Garagenplatz ist mit einer vollwertigen Kleinküche ausgestattet.
Aufteilung:
- Vorzimmer
- Wohnsalon mit offenem Kamin
- Schlafzimmer
- Kabinett
- ausgestattete Küche
- Badezimmer mit Dusche
- separate Toilette
- Abstellraum
- Kellerabteil
- Doppelgarage
Wir weisen darauf hin, dass zwischen dem Vermittler und dem zu vermittelnden Dritten ein familiäres oder wirtschaftliches Naheverhältnis besteht.
Der Vermittler ist als Doppelmakler tätig.
Infrastruktur / Entfernungen
Gesundheit
Arzt <500m
Apotheke <500m
Klinik <1.500m
Krankenhaus <1.500m
Kinder & Schulen
Schule <500m
Kindergarten <500m
Universität <1.000m
Höhere Schule <1.500m
Nahversorgung
Supermarkt <500m
Bäckerei <500m
Einkaufszentrum <3.500m
Sonstige
Geldautomat <1.000m
Bank <1.000m
Post <1.000m
Polizei <500m
Verkehr
Bus <500m
U-Bahn <2.500m
Straßenbahn <1.500m
Bahnhof <1.500m
Autobahnanschluss <3.000m
Angaben Entfernung Luftlinie / Quelle: OpenStreetMap
Objektdaten
Ausstattung
- DVBT
- Bad mit Dusche
- Bad mit Fenster
- Einbauküche
- Etage Heizung
- Befeuerung mit Gas
Zustand
- Zustand
- TEIL_VOLLRENOVIERT
- Baujahr
- 1964
- Alter
- NEUBAU
- HWB
- 154.55 kWh/m² pro Jahr
- Klasse HWB
- E
- fGEE
- 2.35
- Klasse fGEE
- D
Flächen
- Anzahl der Zimmer
- 3
- Anzahl der Badezimmer
- 1
- Anzahl der sep. WCs
- 1
- Stellplätze
- 2
- Wohnfläche
- 85m²
Kosten
- Kaufpreis Brutto
- € 499.000,00
- Betriebskosten
- € 153,74
- Sonstige Kosten
- € 187,74
Verwaltung
- Verfügbar ab
- sofort
Wohnungen zum Kaufen in Österreich
- Bezirk Gemeindebezirk Döbling
- Bezirk Gemeindebezirk Döbling
- Bezirk Gemeindebezirk Döbling
- Bezirk Gemeindebezirk Währing
- Bezirk Gemeindebezirk Währing
- Bezirk Gemeindebezirk Währing
- Bezirk Gemeindebezirk Brigittenau
- Bezirk Gemeindebezirk Brigittenau
- Bezirk Gemeindebezirk Brigittenau
- Bezirk Gemeindebezirk Floridsdorf
Wohnungen zum Kaufen in Österreich
Wohnungen zum Kaufen in Österreich
Andere Besucher suchen nach...
- Grundstücke kaufen in 3400 Weidlingbach
- Wohnungen kaufen in 4663 Laakirchen
- Häuser in 7471 Rechnitz
- Wohnungen in 2410 Hainburg an der Donau
- Häuser kaufen in 2432 Schwadorf
- Wohnungen kaufen in 3002 Purkersdorf
- Häuser in 3150 Wilhelmsburg
- Wohnungen kaufen in 3470 Engelmannsbrunn
- Grundstücke kaufen im Bezirk Mattersburg
- Grundstücke kaufen im Bezirk Gmunden