Nähe Hugo-Wolf-Park: Charmante Altbauwohnung mit Erker + Gegliederte Fassade + zentraler Grundriss + Familien- und WG-Geeignet
-
sofort
Beschreibung
Gerne dürfen wir Ihnen diese großzügig geschnittene 3-Zimmer-Altbauwohnung im 1. Liftstock anbieten. Alle Räume sind vom Flur aus getrennt begehbar. Durch die separate Küche mit Esstisch, wäre die Wohnung auch für eine 3er-WG denkbar. Durch die Lage und die entsprechende Infrastruktur ist die Wohnung auch für Familien geeignet. Die Küche und das Wohnzimmer liegen nordseitig und bieten auch Platz für einen Esstisch. Südlich zum Innenhof sind die beiden Zimmer ausgerichtet. Die Wohnung und generell das Gebäude wurden zuletzt ca. 1996 umfassend durch einen Bauträger saniert, das Dachgeschoß ausgebaut und ein Lift errichtet. Der Erhaltungszustand der Wohnung und dem Gebäude ist...
Gerne dürfen wir Ihnen diese großzügig geschnittene 3-Zimmer-Altbauwohnung im 1. Liftstock anbieten. Alle Räume sind vom Flur aus getrennt begehbar. Durch die separate Küche mit Esstisch, wäre die Wohnung auch für eine 3er-WG denkbar. Durch die Lage und die entsprechende Infrastruktur ist die Wohnung auch für Familien geeignet. Die Küche und das Wohnzimmer liegen nordseitig und bieten auch Platz für einen Esstisch. Südlich zum Innenhof sind die beiden Zimmer ausgerichtet. Die Wohnung und generell das Gebäude wurden zuletzt ca. 1996 umfassend durch einen Bauträger saniert, das Dachgeschoß ausgebaut und ein Lift errichtet. Der Erhaltungszustand der Wohnung und dem Gebäude ist überdurchschnittlich gut. Die Wohnung wird leerstehend übergeben. Lassen Sie sich von dieser Gelegenheit überraschen.
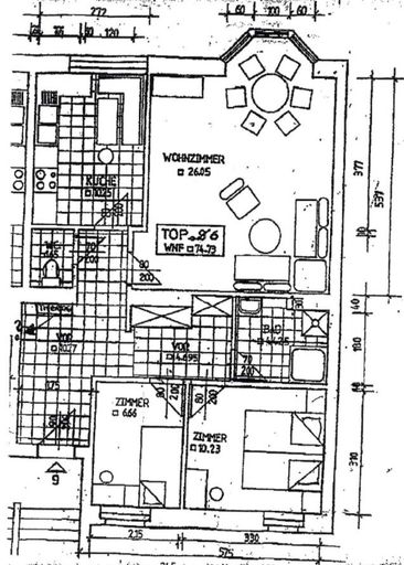
Grundriss/Ausstattung:
+ Vorraum und Flur erschließen alle Räume zentral
+ Großzügiges Wohnzimmer mit charmantem Erker Richtung Norden
+ Küche mit voll ausgestatteter Küchenzeile, Esstisch und Nordfenster
+ Toilette mit Handwaschbecken und Marmorfliesen
+ Großes Schlafzimmer mit Fenster zum südlichen Innenhof
+ Kleines Zimmer (Schlaf- oder Arbeitszimmer) mit Fenster zum südlichen Innenhof
+ Badezimmer mit Badewanne, Waschbecken samt Spiegelschrank und Marmorfliesen
+ Zugeteiltes Kellerabteil
Der Vermittler ist als Doppelmakler tätig.
Objektdaten
Ausstattung
- WG geeignet
- Teilmöbliert
- Kabel/SAT-TV
- Bad mit Badewanne
- Einbauküche
- Steinboden
- Parkettboden
- Estrichboden
- Etage Heizung
- Befeuerung mit Gas
- Personen Fahrstuhl
- Massiv Bauweise
- Schlüsselfertig mit Keller
Zustand
- Zustand
- GEPFLEGT
- Baujahr
- 1925
- Alter
- ALTBAU
- HWB
- 133.16 kWh/m² pro Jahr
- Klasse HWB
- D
- fGEE
- 2.18
- Klasse fGEE
- D
Flächen
- Anzahl der Zimmer
- 3
- Anzahl der Badezimmer
- 1
- Anzahl der sep. WCs
- 1
- Wohnfläche
- 75m²
- Kellerfläche
- 3m²
Kosten
- Kaufpreis Brutto
- € 438.000,00
- Betriebskosten
- € 163,30
- Sonstige Kosten
- € 92,54
Verwaltung
- Verfügbar ab
- sofort
- Ferienimmobilie
- Ja
Wohnungen zum Kaufen in Österreich
- Bezirk Gemeindebezirk Döbling
- Bezirk Gemeindebezirk Döbling
- Bezirk Gemeindebezirk Döbling
- Bezirk Gemeindebezirk Währing
- Bezirk Gemeindebezirk Währing
- Bezirk Gemeindebezirk Währing
- Bezirk Gemeindebezirk Brigittenau
- Bezirk Gemeindebezirk Brigittenau
- Bezirk Gemeindebezirk Brigittenau
- Bezirk Gemeindebezirk Alsergrund
Wohnungen zum Kaufen in Österreich
Wohnungen zum Kaufen in Österreich
Andere Besucher suchen nach...
- Grundstücke kaufen in 3400 Weidlingbach
- Wohnungen kaufen in 4663 Laakirchen
- Häuser in 7471 Rechnitz
- Wohnungen in 2410 Hainburg an der Donau
- Häuser kaufen in 2432 Schwadorf
- Wohnungen kaufen in 3002 Purkersdorf
- Häuser in 3150 Wilhelmsburg
- Wohnungen kaufen in 3470 Engelmannsbrunn
- Grundstücke kaufen im Bezirk Mattersburg
- Grundstücke kaufen im Bezirk Gmunden