Dachgeschoss mit Loggia!
-
Erstbezug
-
2020
Beschreibung
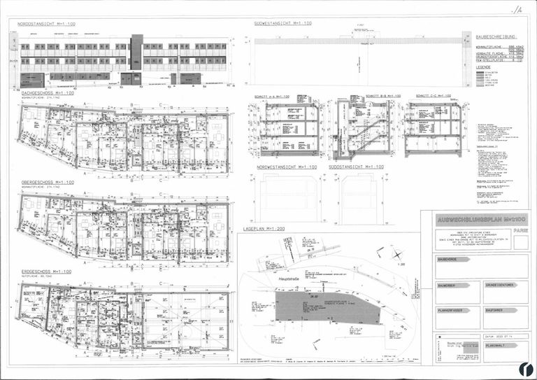
Wohnen mit Komfort und Weitblick – Stilvolle Dachgeschosswohnung mit großzügiger Loggia
Diese moderne 3-Zimmer-Wohnung im Dachgeschoss vereint höchsten Wohnkomfort mit einer idyllischen Umgebung. Ein Lift bringt Sie bequem nach oben, wo Sie über den zentralen Vorraum alle Räume erreichen – darunter ein Abstellraum, ein separates WC, das Badezimmer sowie das Wohn-, Schlaf- und Kinderzimmer.
Der offen gestaltete Wohnbereich hat bereits Anschlüsse für eine Kücheninsel vorbereitet und bietet vielfältige Gestaltungsmöglichkeiten. Ein besonderes Highlight ist die großzügige, durchgehende Loggia mit 13,62 m², die von allen drei Zimmern aus zugänglich ist – perfekt, um den Tag entspannt ausklingen zu lassen.
Hochwertige Ausstattung &...
Wohnen mit Komfort und Weitblick – Stilvolle Dachgeschosswohnung mit großzügiger Loggia
Diese moderne 3-Zimmer-Wohnung im Dachgeschoss vereint höchsten Wohnkomfort mit einer idyllischen Umgebung. Ein Lift bringt Sie bequem nach oben, wo Sie über den zentralen Vorraum alle Räume erreichen – darunter ein Abstellraum, ein separates WC, das Badezimmer sowie das Wohn-, Schlaf- und Kinderzimmer.
Der offen gestaltete Wohnbereich hat bereits Anschlüsse für eine Kücheninsel vorbereitet und bietet vielfältige Gestaltungsmöglichkeiten. Ein besonderes Highlight ist die großzügige, durchgehende Loggia mit 13,62 m², die von allen drei Zimmern aus zugänglich ist – perfekt, um den Tag entspannt ausklingen zu lassen.
Hochwertige Ausstattung & Energieeffizienz
- Beheizung über eine Sole/Wasser-Wärmepumpe mit energieeffizienter Fußbodenheizung
- Zusätzliche Temperierung im Sommer für eine Raumkühlung um bis zu ca. 2°C
- Dreifachverglaste Fenster für beste Energieeffizienz
- Sicherheitstüre mit zentralem Schließsystem
- Belüftung von WC und Bad durch moderne UP-Lüfter
- Waschmaschinenanschluss im Badezimmer
Zusätzliche Annehmlichkeiten
Einlagerungsraum im Erdgeschoss
- Gemeinschaftlicher Kinderwagen- und Fahrradabstellraum
- Obligatorischer Parkplatz in der Tiefgarage (€ 15.000,- zusätzlich)
Bitte beachten Sie, dass die auf den Fotos dargestellte Einrichtung lediglich als Visualisierungsvorschlag dient und nicht im Kaufpreis enthalten ist.
Sichern Sie sich jetzt Ihren exklusiven Besichtigungstermin – wir freuen uns auf Ihre Anfrage!
Hinweis: Die Angaben zu dieser Immobilie sind ohne Gewähr. Auf Grund der Nachweispflicht gegenüber dem Eigentümer ersuchen wir Sie um Verständnis, dass wir nur Anfragen mit vollständiger Anschrift und Telefonnummer bearbeiten können, sowie keine Auskünfte betreffend Objektunterlagen erteilen können.
Der Vermittler ist als Doppelmakler tätig.
Infrastruktur / Entfernungen
Gesundheit
Arzt <500m
Apotheke <7.500m
Krankenhaus <9.500m
Klinik <4.000m
Kinder & Schulen
Schule <500m
Kindergarten <3.500m
Höhere Schule <10.000m
Nahversorgung
Supermarkt <500m
Bäckerei <500m
Einkaufszentrum <8.000m
Sonstige
Bank <500m
Geldautomat <2.500m
Polizei <5.000m
Post <500m
Verkehr
Bus <500m
Bahnhof <500m
Autobahnanschluss <6.000m
Flughafen <9.000m
Angaben Entfernung Luftlinie / Quelle: OpenStreetMap
Objektdaten
Ausstattung
- Fahrradraum
- Bad mit Badewanne
- Fliesenboden
- Estrichboden
- Fußbodenheizung
- Luftwärmepumpe
- Personen Fahrstuhl
- Ausrichtung Balkon/Terrasse - Nordost
- Massiv Bauweise
Zustand
- Zustand
- ERSTBEZUG
- Baujahr
- 2020
- Alter
- NEUBAU
- HWB
- 39 kWh/m² pro Jahr
- Klasse HWB
- B
- fGEE
- 0.73
- Klasse fGEE
- A
Flächen
- Anzahl der Zimmer
- 3
- Anzahl der Badezimmer
- 1
- Anzahl der sep. WCs
- 1
- Anzahl der Balkone
- 1
- Wohnfläche
- 82m²
- Nutzfläche
- 95m²
- Kellerfläche
- 1m²
Kosten
- Kaufpreis Brutto
- € 269.000,00
- Betriebskosten
- € 116,55
- Sonstige Kosten
- € 184,39
Wohnungen zum Kaufen im Umkreis von Winzendorf-Muthmannsdorf
Wohnungen zum Kaufen im Umkreis von Winzendorf-Muthmannsdorf
Wohnungen zum Kaufen in Österreich
Andere Besucher suchen nach...
- Grundstücke kaufen in 3400 Weidlingbach
- Wohnungen kaufen in 4663 Laakirchen
- Häuser in 7471 Rechnitz
- Wohnungen in 2410 Hainburg an der Donau
- Häuser kaufen in 2432 Schwadorf
- Wohnungen kaufen in 3002 Purkersdorf
- Häuser in 3150 Wilhelmsburg
- Wohnungen kaufen in 3470 Engelmannsbrunn
- Grundstücke kaufen im Bezirk Mattersburg
- Grundstücke kaufen im Bezirk Gmunden