City Fever – Zentral gelegene 2-Zimmer Eigentumswohnung mit Bahnhofsnähe!
Beschreibung
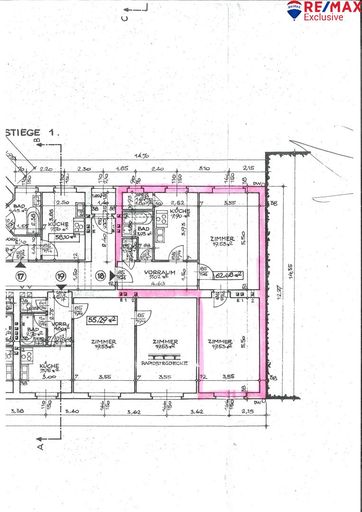
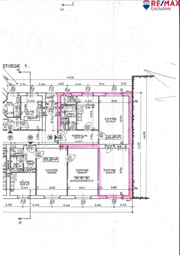
Diese charmante 2-Zimmer-Eigentumswohnung überzeugt durch ihre hervorragende Lage in unmittelbarer Nähe zum Bahnhof Wiener Neustadt sowie eine praktische Raumaufteilung auf ca. 62,68 m² Wohnfläche.
Die Wohnung befindet sich im 2. Stock (ohne Lift) eines Gebäudes aus dem Jahr ca. 1953 und eignet sich ideal für Pendler oder Anleger.
Highlights:
- Top-Lage nahe Bahnhof Wiener Neustadt
- 62,68 m² Wohnfläche, 2 Zimmer
- Gas-Etagenheizung (2006)
- Kunststofffenster, doppelt verglast mit Außenrollos
- Böden: Laminat & Fliesen
- sanierte Gasleitungen (ca. 2021)
- Bad + WC getrennt
- 2 Fenster in den Innenhof, 1 Fenster straßenseitg, zentral aber trotzdem ruhige Lage
Diese charmante 2-Zimmer-Eigentumswohnung überzeugt durch ihre hervorragende Lage in unmittelbarer Nähe zum Bahnhof Wiener Neustadt sowie eine praktische Raumaufteilung auf ca. 62,68 m² Wohnfläche.
Die Wohnung befindet sich im 2. Stock (ohne Lift) eines Gebäudes aus dem Jahr ca. 1953 und eignet sich ideal für Pendler oder Anleger.
Highlights:
- Top-Lage nahe Bahnhof Wiener Neustadt
- 62,68 m² Wohnfläche, 2 Zimmer
- Gas-Etagenheizung (2006)
- Kunststofffenster, doppelt verglast mit Außenrollos
- Böden: Laminat & Fliesen
- sanierte Gasleitungen (ca. 2021)
- Bad + WC getrennt
- 2 Fenster in den Innenhof, 1 Fenster straßenseitg, zentral aber trotzdem ruhige Lage
Kaufpreis: € 149.000,--
Besichtigungsmöglichkeit besteht jederzeit nach Terminvereinbarung.
Aufgrund der Nachweispflicht gegenüber dem Eigentümer ersuchen wir um Verständnis, dass nur Anfragen mit der Angabe der vollständigen Anschrift und Telefonnummer bearbeitet werden können.
Wir weisen auf Ihre 14-tägige Rücktrittsfrist (gemäß § 11 FAGG ) hin. Um Ihre Rechte zu wahren, können nur Anfragen mit vollständigen Kontaktdaten (Name, Adresse, Telefon, Email) beantwortet werden.
Vor Ablauf der 14-tägigen Rücktrittsfrist werden wir gerne für Sie tätig, wenn Sie gesetzeskonform (FAGG) uns ausdrücklich (am einfachsten per E-Mail) dazu auffordern.
Wenn der Kaufvertrag/der Mietvertrag nicht zustande kommt, bleibt unsere Tätigkeit für Sie vollkommen kostenlos.
Gewährleistung:
Die Verkäuferseite gewährleistet, dass der Vertragsgegenstand ihr unbeschränktes Eigentum und frei von Geldlasten, Bestandrechten und sonstigen Rechten Dritter ist.
Ansonsten wird jede Gewährleistung der Verkäuferseite ausgeschlossen und festgestellt, dass sich dieser Gewährleistungsausschluss sowohl auf bestimmte als auch auf gewöhnlich vorausgesetzte Eigenschaften des Vertragsgegenstandes wie beispielsweise Lage, Größe, Zustand, Abnützung, Widmung, Beschaffenheit, Ertrag und Verwendungsmöglichkeit bezieht.
Der Vermittler ist als Doppelmakler tätig.
Infrastruktur / Entfernungen
Gesundheit
Arzt <500m
Apotheke <500m
Klinik <1.500m
Krankenhaus <1.500m
Kinder & Schulen
Schule <500m
Kindergarten <1.000m
Höhere Schule <1.500m
Universität <3.500m
Nahversorgung
Supermarkt <500m
Bäckerei <500m
Einkaufszentrum <1.500m
Sonstige
Bank <500m
Geldautomat <500m
Post <500m
Polizei <1.000m
Verkehr
Bus <500m
Autobahnanschluss <3.000m
Bahnhof <500m
Flughafen <2.500m
Angaben Entfernung Luftlinie / Quelle: OpenStreetMap
Objektdaten
Ausstattung
- Kabel/SAT-TV
- Fahrradraum
- Rolladen
- Bad mit Dusche
- Einbauküche
- Fliesenboden
- Laminatboden
- Etage Heizung
- Befeuerung mit Gas
- Massiv Bauweise
Dokumente / Links
Zustand
- Baujahr
- 1953
- HWB
- 157.6 kWh/m² pro Jahr
- Klasse HWB
- E
- fGEE
- 3.58
- Klasse fGEE
- F
Flächen
- Anzahl der Zimmer
- 2
- Anzahl der Badezimmer
- 1
- Anzahl der sep. WCs
- 1
- Wohnfläche
- 63m²
Kosten
- Kaufpreis Brutto
- € 149.000,00
- Betriebskosten
- € 172,32
- Sonstige Kosten
- € 70,70
Verwaltung
- Verfügbar ab
- nach Vereinbarung
Wohnungen zum Kaufen in Österreich
Wohnungen zum Kaufen in Österreich
Andere Besucher suchen nach...
- Immobilien kaufen in 2601 Sollenau
- Immobilien in 4951 Polling im Innkreis, Oberösterreich
- Immobilien in 4742 Pram, Oberösterreich kaufen oder mieten
- Häuser kaufen in 2340 Mödling, Niederösterreich
- Häuser kaufen in 9421 Gemmersdorf, Kärnten
- Wohnungen / Eigentumswohnungen kaufen in 9431 St. Stefan, Kärnten
- Häuser kaufen in Bruck an der Leitha, Niederösterreich
- Immobilien mieten in Krems an der Donau, Niederösterreich
- Häuser zum Kaufen im Bezirk St. Pölten Land, Niederösterreich
- Büro / Praxen mieten in Rohrbach, Oberösterreich