Wohnanlage in ruhiger Lage - Top A5
-
Erstbezug
-
2023
-
01.04.26
Beschreibung
Modern wohnen auf kompakter Fläche
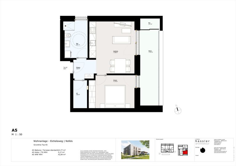
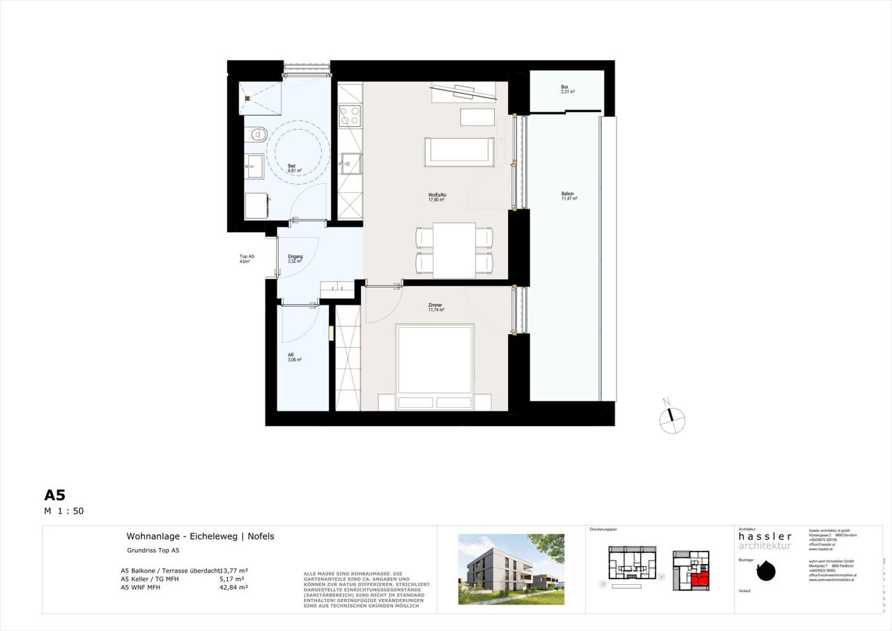
Die Wohnung befindet sich in einer 2024 errichteten Wohnanlage und liegt im 1. Obergeschoss. Die gepflegte 2-Zimmer-Wohnung mit ca. 42,84 m² überzeugt durch eine funktionale Raumaufteilung und zeitgemäße Ausstattung – ideal für Einzelpersonen oder Paare.
Raumaufteilung & Ausstattung:
- Wohn-Essbereich
- Schlafzimmer
- Abstellraum
- Bad mit Dusche
- Überdachter Balkon mit ca. 11 m²
Weitere Details:
- Einbauküche mit Miele-Geräten
- Parkettboden in Wohn- und Schlafräumen
- Fliesen im Bad
- Personenaufzug vorhanden
- Eigenes Kellerabteil
- Tiefgaragenstellplatz inkludiert
Kurz gesagt: Eine moderne Mietwohnung mit klarer Raumstruktur, zeitgemäßer Ausstattung und praktischer Lage – kompakt & funktional
Unsere Angaben beziehen sich auf...
Modern wohnen auf kompakter Fläche
Die Wohnung befindet sich in einer 2024 errichteten Wohnanlage und liegt im 1. Obergeschoss. Die gepflegte 2-Zimmer-Wohnung mit ca. 42,84 m² überzeugt durch eine funktionale Raumaufteilung und zeitgemäße Ausstattung – ideal für Einzelpersonen oder Paare.
Raumaufteilung & Ausstattung:
- Wohn-Essbereich
- Schlafzimmer
- Abstellraum
- Bad mit Dusche
- Überdachter Balkon mit ca. 11 m²
Weitere Details:
- Einbauküche mit Miele-Geräten
- Parkettboden in Wohn- und Schlafräumen
- Fliesen im Bad
- Personenaufzug vorhanden
- Eigenes Kellerabteil
- Tiefgaragenstellplatz inkludiert
Kurz gesagt: Eine moderne Mietwohnung mit klarer Raumstruktur, zeitgemäßer Ausstattung und praktischer Lage – kompakt & funktional
Unsere Angaben beziehen sich auf die Auskünfte des Eigentümers. Irrtum und Änderungen vorbehalten.
Noch nichts gefunden? Wir informieren Sie über geeignete Immobilienangebote noch vor allen anderen.
Legen Sie jetzt kostenlos Ihren individuellen Suchagenten unter folgendem Link an. Wir schicken Ihnen passende Immobilien exklusiv vorab zu.
Suchagent anlegen
Wir weisen darauf hin, dass zwischen dem Vermittler und dem zu vermittelnden Dritten ein familiäres oder wirtschaftliches Naheverhältnis besteht.
Der Immobilienmakler erklärt, dass er – entgegen dem in der Immobilienwirtschaft üblichen Geschäftsgebrauch des Doppelmaklers – einseitig nur für den Vermieter tätig ist.
Infrastruktur / Entfernungen
Gesundheit
Arzt <225m
Apotheke <950m
Krankenhaus <3.200m
Kinder & Schulen
Schule <575m
Kindergarten <200m
Höhere Schule <3.425m
Universität <3.475m
Nahversorgung
Supermarkt <175m
Bäckerei <925m
Einkaufszentrum <3.525m
Sonstige
Bank <975m
Geldautomat <975m
Post <450m
Polizei <3.200m
Verkehr
Bus <200m
Bahnhof <2.450m
Autobahnanschluss <4.525m
Angaben Entfernung Luftlinie / Quelle: OpenStreetMap
Objektdaten
Ausstattung
- Gartennutzung
- Rollstuhlgerecht
- Kabel/SAT-TV
- Barrierefrei
- DV Verkabelung
- Fahrradraum
- Kabelkanäle
- Seniorengerecht
- Bad mit Dusche
- Bad mit Fenster
- Offene Küche
- Fliesenboden
- Parkettboden
- Fußbodenheizung
- Solar
- Erdwärme
- Personen Fahrstuhl
- Ausrichtung Balkon/Terrasse - Ost
- Flachdach
- Massiv Bauweise
- Schlüsselfertig mit Keller
Zustand
- Zustand
- ERSTBEZUG
- Baujahr
- 2023
- Alter
- NEUBAU
- HWB
- 30 kWh/m² pro Jahr
- Klasse HWB
- B
- fGEE
- 0.72
- Klasse fGEE
- A
Flächen
- Anzahl der Zimmer
- 2
- Anzahl der Badezimmer
- 1
- Anzahl der sep. WCs
- 1
- Anzahl der Balkone
- 1
- Wohnfläche
- 43m²
- Kellerfläche
- 5m²
Kosten
- Gesamtmiete Brutto
- € 1.064,38
- Miete
- € 830,73
- Betriebskosten
- € 129,82
- Heizkosten
- € 9,68
- Umsatzsteuer
- € 105,77
- Monatl. Gesamtbelastung Brutto
- € 1.076,00
Verwaltung
- Verfügbar ab
- 01.04.26
Wohnungen zum Mieten im Umkreis von Feldkirch
Wohnungen zum Mieten im Umkreis von Feldkirch
Wohnungen zum Mieten in Österreich
Andere Besucher suchen nach...
- Grundstücke kaufen in 3400 Weidlingbach
- Wohnungen kaufen in 4663 Laakirchen
- Häuser in 7471 Rechnitz
- Wohnungen in 2410 Hainburg an der Donau
- Häuser kaufen in 2432 Schwadorf
- Wohnungen kaufen in 3002 Purkersdorf
- Häuser in 3150 Wilhelmsburg
- Wohnungen kaufen in 3470 Engelmannsbrunn
- Grundstücke kaufen im Bezirk Mattersburg
- Grundstücke kaufen im Bezirk Gmunden