Im Herzen von Götzis: 3-Zimmerwohnung zu vermieten!
-
1. Februar 2026
Beschreibung
Wohnen mitten in Götzis - Gemütliche 3-Zimmerwohnung
Diese liebevoll gestaltete Wohnung in der Hauptstraße 5 in Götzis ist perfekt für Paare und kleien Familien, die das urbane Leben in Götzis genießen möchten – und dabei auf Charme und Gemütlichkeit nicht verzichten wollen.
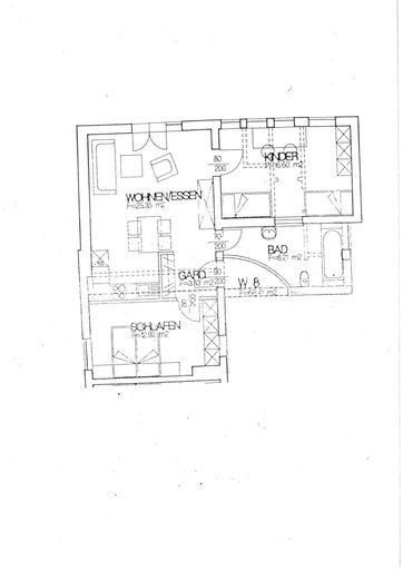
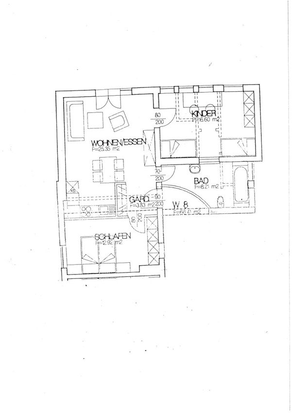
Auf 66,73 m² bietet die Wohnung eine offene Küche mit Wohn-Essbereich, zwei Schlafzimmer sowie ein Bad mit Badewanne, Fenster und WC. Zentral gelegen ist diese Wohnung ein wunderbarer Ort zum Ankommen – und zum Bleiben.
Lage:
• Zentrumsnahe Lage – Die Hauptstraße liegt direkt im Zentrum von Götzis - perfekt für Paare und Familien • Einkauf...
Wohnen mitten in Götzis - Gemütliche 3-Zimmerwohnung
Diese liebevoll gestaltete Wohnung in der Hauptstraße 5 in Götzis ist perfekt für Paare und kleien Familien, die das urbane Leben in Götzis genießen möchten – und dabei auf Charme und Gemütlichkeit nicht verzichten wollen.
Auf 66,73 m² bietet die Wohnung eine offene Küche mit Wohn-Essbereich, zwei Schlafzimmer sowie ein Bad mit Badewanne, Fenster und WC. Zentral gelegen ist diese Wohnung ein wunderbarer Ort zum Ankommen – und zum Bleiben.
Lage:
• Zentrumsnahe Lage – Die Hauptstraße liegt direkt im Zentrum von Götzis - perfekt für Paare und Familien
• Einkauf & Nahversorgung in direkter Nähe – Supermärkte, Bäckereien und Apotheken sind in wenigen Minuten erreichbar, ideal für den täglichen Bedarf
• Sehr gute Anbindung an Öffis – Bushaltestellen für lokale Linien sind bequem zu Fuß erreichbar, der Bahnhof Götzis bietet schnelle Verbindungen in die umliegende Gebiete
• Gastronomie & Treffpunkte ums Eck – Götzis verfügt über zahlreiche Gasthäuser und Cafés, ideal für gemeinsames Essen
• Bildung & Betreuung vor Ort – Kindergarten und Volksschule sind in wenigen Minuten erreichbar
• Natur & Freizeit direkt vor der Tür – Die Örflaschlucht ist ein Naturjuwel und beliebtes Ausflugsziel in Götzis
Raumaufteilung:
• Diele
• Küche-Ess-Wohnzimmer
• zwei Zimmer
• Badezimmer mit Badewanne, WC & Fenster
Gesamtmietzins:
EUR 738,68 Mietzins Wohnung
EUR 173,69 Betriebskosten Wohnung
EUR 77,63 Heizkosten Wohnung
EUR 990,00 Gesamtmietzins inklusive Betriebskosten
Kautionshinterlegung:
Die Kaution in Höhe von € 3.000,- kann entweder per Überweisung oder mittels Bankgarantie hinterlegt werden.
Zögern Sie nicht und kontaktieren Sie uns für einen Besichtigungstermin!
Die Firma Mag. Kofler Vermögenstreuhand GmbH erklärt, entgegen dem in der Immobilienwirtschaft üblichen Geschäftsgebrauch nicht als Doppelmakler, sondern nur einseitig für den (die) Vermieter(in) tätig zu sein. Weiter ist die Firma Mag. Kofler Vermögenstreuhand GmbH ermächtigt, bis auf Widerruf Objekte zu präsentieren. Mit dem Auftraggeber besteht zudem ein wirtschaftliches Naheverhältnis aufgrund der Immobilienverwaltung.
Noch nichts gefunden? Wir informieren Sie über geeignete Immobilienangebote noch vor allen anderen.
Legen Sie jetzt Ihren individuellen Suchagenten unter folgendem Link an. Wir schicken Ihnen passende Immobilien exklusiv vorab zu.
Suchagent anlegen - https://mag-kofler-vermoegenstreuhand.service.immo/registrieren/de
Der Immobilienmakler erklärt, dass er – entgegen dem in der Immobilienwirtschaft üblichen Geschäftsgebrauch des Doppelmaklers – einseitig nur für den Vermieter tätig ist.
Infrastruktur / Entfernungen
Gesundheit
Arzt <225m
Apotheke <25m
Krankenhaus <4.325m
Kinder & Schulen
Schule <175m
Kindergarten <150m
Höhere Schule <400m
Nahversorgung
Supermarkt <125m
Bäckerei <100m
Einkaufszentrum <5.150m
Sonstige
Bank <50m
Geldautomat <50m
Post <650m
Polizei <350m
Verkehr
Bus <25m
Bahnhof <700m
Autobahnanschluss <1.425m
Flughafen <7.075m
Angaben Entfernung Luftlinie / Quelle: OpenStreetMap
Objektdaten
Ausstattung
- Kabel/SAT-TV
- Bad mit Badewanne
- Bad mit Fenster
- Einbauküche
- Offene Küche
- Befeuerung mit Gas
Zustand
- Baujahr
- 1992
- HWB
- 66 kWh/m² pro Jahr
- Klasse HWB
- C
- fGEE
- 2.16
- Klasse fGEE
- D
Flächen
- Anzahl der Zimmer
- 3
- Anzahl der Badezimmer
- 1
- Anzahl der sep. WCs
- 1
- Wohnfläche
- 67m²
Kosten
- Gesamtmiete Brutto
- € 990,00
- Kaution
- € 3.000,00
- Miete
- € 990,00
- Monatl. Gesamtbelastung Brutto
- € 990,00
Verwaltung
- Verfügbar ab
- 1. Februar 2026
Wohnungen zum Mieten im Umkreis von Götzis
Wohnungen zum Mieten im Umkreis von Götzis
Wohnungen zum Mieten in Österreich
Andere Besucher suchen nach...
- Grundstücke kaufen in 3400 Weidlingbach
- Wohnungen kaufen in 4663 Laakirchen
- Häuser in 7471 Rechnitz
- Wohnungen in 2410 Hainburg an der Donau
- Häuser kaufen in 2432 Schwadorf
- Wohnungen kaufen in 3002 Purkersdorf
- Häuser in 3150 Wilhelmsburg
- Wohnungen kaufen in 3470 Engelmannsbrunn
- Grundstücke kaufen im Bezirk Mattersburg
- Grundstücke kaufen im Bezirk Gmunden