Zentrale 2-Zimmer-Wohnung in Götzis
Beschreibung
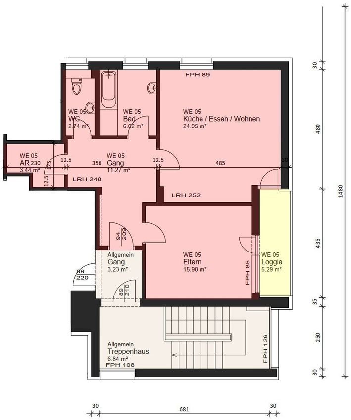
Die Wohnung im Überblick
Diese gepflegte 2-Zimmer-Wohnung im 2. Obergeschoss überzeugt mit einer durchdachten Raumaufteilung:
- Helles Badezimmer: Mit Fenster, Badewanne und separater Dusche.
- Praktische Details: Separates WC und ein zusätzlicher Abstellraum.
- Balkon: Für entspannte Stunden im Freien.
- Einbauküche: Modern und voll ausgestattet, verbunden mit dem Wohn- und Essbereich.
- Stauraum: Ein Kellerabteil steht zur Verfügung.
- KFZ-Außenabstellplatz
Ideal für Singles oder Paare! Vereinbaren Sie jetzt einen Besichtigungstermin und entdecken Sie Ihr neues Zuhause in Götzis.
Noch nichts gefunden? Wir informieren Sie über geeignete Immobilienangebote noch vor allen anderen. Legen Sie jetzt kostenlos Ihren individuellen Suchagenten unter folgendem Link an....
Die Wohnung im Überblick
Diese gepflegte 2-Zimmer-Wohnung im 2. Obergeschoss überzeugt mit einer durchdachten Raumaufteilung:
- Helles Badezimmer: Mit Fenster, Badewanne und separater Dusche.
- Praktische Details: Separates WC und ein zusätzlicher Abstellraum.
- Balkon: Für entspannte Stunden im Freien.
- Einbauküche: Modern und voll ausgestattet, verbunden mit dem Wohn- und Essbereich.
- Stauraum: Ein Kellerabteil steht zur Verfügung.
- KFZ-Außenabstellplatz
Ideal für Singles oder Paare!
Vereinbaren Sie jetzt einen Besichtigungstermin und entdecken Sie Ihr neues Zuhause in Götzis.
Noch nichts gefunden? Wir informieren Sie über geeignete Immobilienangebote noch vor allen anderen.
Legen Sie jetzt kostenlos Ihren individuellen Suchagenten unter folgendem Link an. Wir schicken Ihnen passende Immobilien exklusiv vorab zu.
Suchagent anlegen
Wir weisen darauf hin, dass zwischen dem Vermittler und dem zu vermittelnden Dritten ein familiäres oder wirtschaftliches Naheverhältnis besteht.
Der Immobilienmakler erklärt, dass er – entgegen dem in der Immobilienwirtschaft üblichen Geschäftsgebrauch des Doppelmaklers – einseitig nur für den Vermieter tätig ist.
Infrastruktur / Entfernungen
Gesundheit
Arzt <500m
Apotheke <500m
Krankenhaus <4.500m
Kinder & Schulen
Schule <500m
Kindergarten <500m
Höhere Schule <500m
Nahversorgung
Supermarkt <500m
Bäckerei <500m
Einkaufszentrum <5.000m
Sonstige
Bank <500m
Geldautomat <500m
Post <1.000m
Polizei <500m
Verkehr
Bus <500m
Bahnhof <1.000m
Autobahnanschluss <2.000m
Flughafen <7.000m
Angaben Entfernung Luftlinie / Quelle: OpenStreetMap
Objektdaten
Ausstattung
- Gäste-WC
- Bad mit Dusche
- Bad mit Badewanne
- Bad mit Fenster
- Einbauküche
- Offene Küche
- Fliesenboden
- Parkettboden
- Massiv Bauweise
- Schlüsselfertig mit Keller
Dokumente / Links
Zustand
- Zustand
- GEPFLEGT
- Baujahr
- 1961
- HWB
- 58 kWh/m² pro Jahr
- Klasse HWB
- C
- fGEE
- 1.95
- Klasse fGEE
- D
Flächen
- Anzahl der Zimmer
- 2
- Anzahl der Badezimmer
- 1
- Anzahl der sep. WCs
- 1
- Anzahl der Balkone
- 1
- Wohnfläche
- 64m²
- Kellerfläche
- 13m²
Kosten
- Gesamtmiete Brutto
- € 946,76
- Kaution
- € 3.500,00
- Miete
- € 740,00
- Betriebskosten
- € 120,69
- Heizkosten
- € 85,20
- Umsatzsteuer
- € 103,11
- Monatl. Gesamtbelastung Brutto
- € 1.049,00
Verwaltung
- Verfügbar ab
- nach Vereinbarung
Wohnungen zum Mieten im Umkreis von Götzis
Wohnungen zum Mieten im Umkreis von Götzis
Wohnungen zum Mieten in Österreich
Andere Besucher suchen nach...
- Grundstücke kaufen in 3400 Weidlingbach
- Wohnungen kaufen in 4663 Laakirchen
- Häuser in 7471 Rechnitz
- Wohnungen in 2410 Hainburg an der Donau
- Häuser kaufen in 2432 Schwadorf
- Wohnungen kaufen in 3002 Purkersdorf
- Häuser in 3150 Wilhelmsburg
- Wohnungen kaufen in 3470 Engelmannsbrunn
- Grundstücke kaufen im Bezirk Mattersburg
- Grundstücke kaufen im Bezirk Gmunden