Ikonisches Penthouse mit Eigengarten, großer Terrasse und SEEBLICK
€ 4.602 / Monat
€ 29 / m²
4810 Gmunden
-
Erstbezug
-
ca. 2024
Beschreibung
...Etagenalleinlage, schöner Seeblick, äußerst großzügige Terrasse und Eigengarten bieten hier perfektes Wohn(Wohl)gefühl... ...direkter Liftzugang in der Wohnung... ...wunderschönes Fischgrätparkett, Armaturen der Fa. Vallone... Technische Details: Die Beheizung erfolgt über eine effiziente Luftwärmepumpe. Die installierte kontrollierte Wohnraumlüftung sorgt stets für frische Luft. Die PV-Anlage auf dem Dach wird für die Wärme- und Kühlenergie der Hausgemeinschaft genutzt. Dies unterstreicht den hohen energietechnischen Standard dieser Immobilie. Natürlich sind die Fenster mit Beschattung versehen, um das Raumklima optimal zu regulieren. Eine Beschattung mittels Outdoorvorhängen ist ebenso möglich. Grundriss: Die Wohnung setzt sich aus Vorraum mit Gästetoilette, Koch-, Wohn-, Essbereich mit Ausgang auf den wundervollen...
...Etagenalleinlage, schöner Seeblick, äußerst großzügige Terrasse und Eigengarten bieten hier perfektes Wohn(Wohl)gefühl...
...direkter Liftzugang in der Wohnung...
...wunderschönes Fischgrätparkett, Armaturen der Fa. Vallone...
Technische Details:
Die Beheizung erfolgt über eine effiziente Luftwärmepumpe. Die installierte kontrollierte Wohnraumlüftung sorgt stets für frische Luft. Die PV-Anlage auf dem Dach wird für die Wärme- und Kühlenergie der Hausgemeinschaft genutzt. Dies unterstreicht den hohen energietechnischen Standard dieser Immobilie. Natürlich sind die Fenster mit Beschattung versehen, um das Raumklima optimal zu regulieren. Eine Beschattung mittels Outdoorvorhängen ist ebenso möglich.
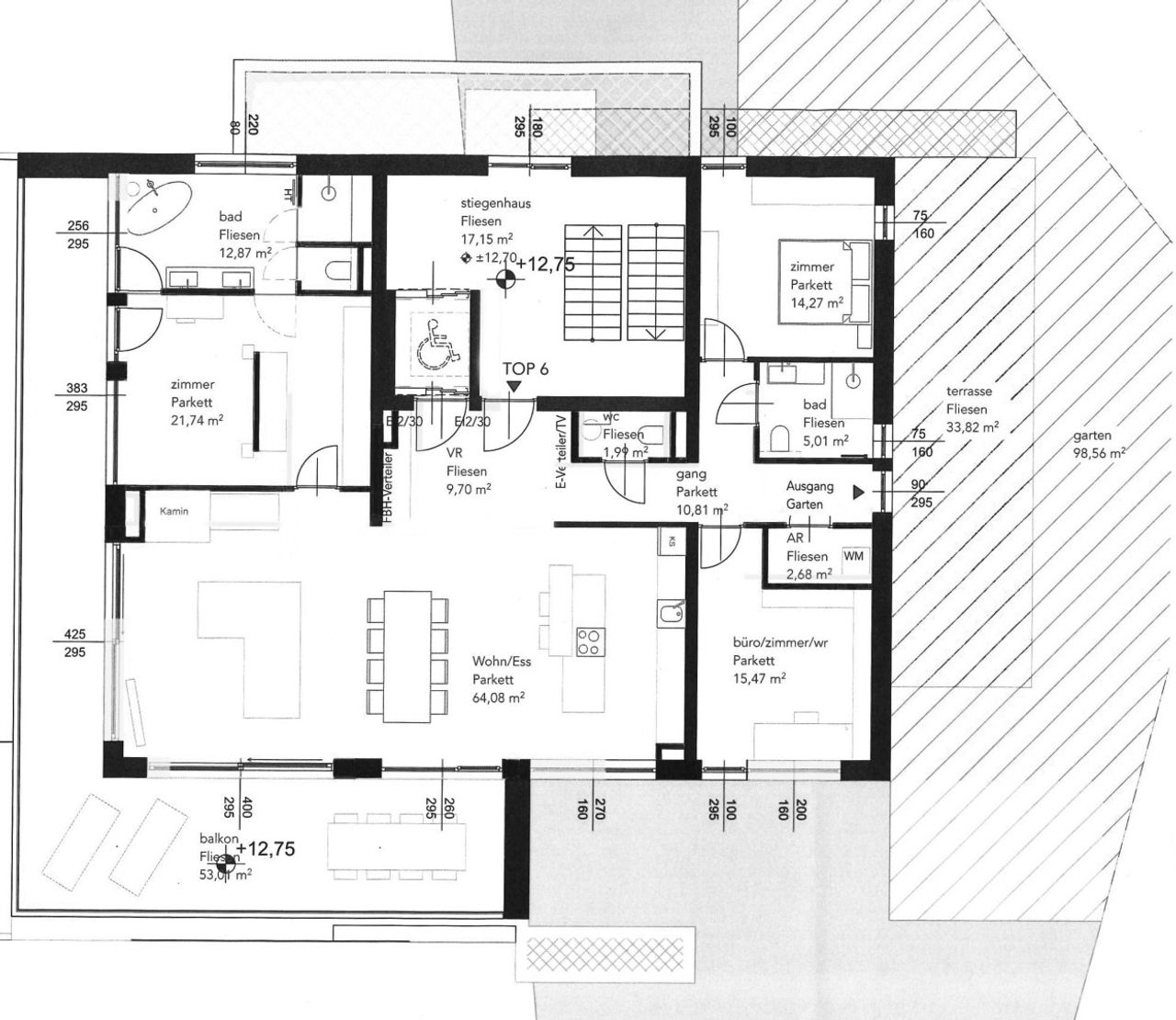
Grundriss:
Die Wohnung setzt sich aus Vorraum mit Gästetoilette, Koch-, Wohn-, Essbereich mit Ausgang auf den wundervollen Balkon, Masterbedroom mit exklusivem angeschlossenem Badezimmer mit freitstehender Badewanne, seperater Dusche und seperater Toilette mit Ausgang auf den Balkon zusammen. Ergänzt wird dies durch 2 weitere Zimmer und Badezimmer. In diesem Bereich befindet sich auch der Ausgang auf die Terrasse und den süßen Eigengarten. Die Kochbereich wird noch mit einer neuen Küche versehen.
Lage:
Im Ortsteil Traundorf mit ausgezeichneter Infrastruktur. Die bezaubernde Gmundner Innenstadt, als auch der Traunsee sind binnen weniger Minuten fußläufig zu erreichen.
Kosten:
In den dargestellten monatlichen Kosten sind die Betriebs- und Heizkosten und die Kosten für die beiden Stellplätze 9 und 10 in der Tiefgarage bereits inkludiert.
Der Vermieter bevorzugt Mieter ohne Haustiere.
Hinweis: Die Kaution ist mittels Bankgarantie zu erbringen.
...es ist schön hier wohnen zu dürfen...
...direkter Liftzugang in der Wohnung...
...wunderschönes Fischgrätparkett, Armaturen der Fa. Vallone...
Technische Details:
Die Beheizung erfolgt über eine effiziente Luftwärmepumpe. Die installierte kontrollierte Wohnraumlüftung sorgt stets für frische Luft. Die PV-Anlage auf dem Dach wird für die Wärme- und Kühlenergie der Hausgemeinschaft genutzt. Dies unterstreicht den hohen energietechnischen Standard dieser Immobilie. Natürlich sind die Fenster mit Beschattung versehen, um das Raumklima optimal zu regulieren. Eine Beschattung mittels Outdoorvorhängen ist ebenso möglich.
Grundriss:
Die Wohnung setzt sich aus Vorraum mit Gästetoilette, Koch-, Wohn-, Essbereich mit Ausgang auf den wundervollen Balkon, Masterbedroom mit exklusivem angeschlossenem Badezimmer mit freitstehender Badewanne, seperater Dusche und seperater Toilette mit Ausgang auf den Balkon zusammen. Ergänzt wird dies durch 2 weitere Zimmer und Badezimmer. In diesem Bereich befindet sich auch der Ausgang auf die Terrasse und den süßen Eigengarten. Die Kochbereich wird noch mit einer neuen Küche versehen.
Lage:
Im Ortsteil Traundorf mit ausgezeichneter Infrastruktur. Die bezaubernde Gmundner Innenstadt, als auch der Traunsee sind binnen weniger Minuten fußläufig zu erreichen.
Kosten:
In den dargestellten monatlichen Kosten sind die Betriebs- und Heizkosten und die Kosten für die beiden Stellplätze 9 und 10 in der Tiefgarage bereits inkludiert.
Der Vermieter bevorzugt Mieter ohne Haustiere.
Hinweis: Die Kaution ist mittels Bankgarantie zu erbringen.
...es ist schön hier wohnen zu dürfen...
| Angaben gemäß gesetzlichem Erfordernis: | |||
| Miete | € | 3760 | |
| Betriebskosten | € | 552,48 | |
| Heizkosten | € | 243,5 | |
| Autoabstellplatz | € | 46,04 | |
| Umsatzsteuer | € | 0 | |
| ------------------------------------------------------------------ | |||
| Gesamtbetrag | € | 4602,02 | |
| ------------------------------------------------------------------ | |||
| Heizwärmebedarf: | 40.0 kWh/(m²a) | ||
Objektdaten
Ausstattung
- Unterkellert
- Zentralheizung
- Erdwärme
- Personen Fahrstuhl
- Massiv Bauweise
- Zeigelmassiv
- Bus
- Grüne Lage
- Hanglage
- Stadtrand
- Villengegend
- Zentralheizung mit Wärmepumpe
Zustand
- Zustand
- ERSTBEZUG
- Baujahr
- ca. 2024
Flächen
- Anzahl der Zimmer
- 4
- Anzahl der Schlafzimmer
- 3
- Anzahl der Badezimmer
- 2
- Anzahl der sep. WCs
- 3
- Anzahl der Balkone
- 1
- Anzahl der Terrassen
- 1
- Stellplätze
- 2
- Wohnfläche
- 159m²
- Gartenfläche
- 99m²
- Kellerfläche
- 8m²
- Terrassenfläche
- 1m²
Kosten
- Kaltmiete
- € 4.602,02
- Nebenkosten
- € 842,02
- Kaution
- € 23.010,00
- Betriebskosten Brutto
- € 552,48
- Heizkosten Brutto
- € 243,50
Verwaltung
- Verfügbar ab
- nach Vereinbarung
- Mietdauer
- ab 5,0 Jahre
Wohnungen zum Mieten im Umkreis von Gmunden
Wohnungen zum Mieten im Umkreis von Gmunden
Wohnungen zum Mieten in Österreich
Andere Besucher suchen nach...
- Grundstücke kaufen in 3400 Weidlingbach
- Wohnungen kaufen in 4663 Laakirchen
- Häuser in 7471 Rechnitz
- Wohnungen in 2410 Hainburg an der Donau
- Häuser kaufen in 2432 Schwadorf
- Wohnungen kaufen in 3002 Purkersdorf
- Häuser in 3150 Wilhelmsburg
- Wohnungen kaufen in 3470 Engelmannsbrunn
- Grundstücke kaufen im Bezirk Mattersburg
- Grundstücke kaufen im Bezirk Gmunden