3-Zimmer-Wohnung mit Möglichkeit zur Badeplatznutzung
€ 1.303 / Monat
€ 16 / m²
4813 Altmünster
-
1.Mai 2026
Beschreibung
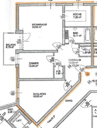
...großzügige, gut aufgeteilte 3 Zimmermietwohnung mit der Möglichkeit zur Nutzung des wunderschönen, privaten Badeplatzes, in Altmünster... Die Wohnung liegt im 2. Liftstock und punktet mit ihrem Grundriss. Sie setzt sich aus einem großzügigen Vorraum, 2 Schlafzimmern, Wohnzimmer, möblierter Küche, Bad, Toilette und einem kleine Abstellraum zusammen. Alle Räume (ausgenommen Küche) können vom zentralen Vorraum aus betreten werden. Der ca. 7 m² große Balkon ist vom Wohnzimmer aus zugänglich. Ihr Fahrzeug findet Platz in der zugehörigen Tiefgarage. In den Mietkosten, sind die Betriebs- und Heizkosten und die Kosten des TG-Platzes bereits enthalten. Die Wohnung ist mit einer neuen Küche ausgestattet und...
...großzügige, gut aufgeteilte 3 Zimmermietwohnung mit der Möglichkeit zur Nutzung des wunderschönen, privaten Badeplatzes, in Altmünster...
Die Wohnung liegt im 2. Liftstock und punktet mit ihrem Grundriss. Sie setzt sich aus einem großzügigen Vorraum, 2 Schlafzimmern, Wohnzimmer, möblierter Küche, Bad, Toilette und einem kleine Abstellraum zusammen. Alle Räume (ausgenommen Küche) können vom zentralen Vorraum aus betreten werden.
Der ca. 7 m² große Balkon ist vom Wohnzimmer aus zugänglich.
Ihr Fahrzeug findet Platz in der zugehörigen Tiefgarage.
In den Mietkosten, sind die Betriebs- und Heizkosten und die Kosten des TG-Platzes bereits enthalten.
Die Wohnung ist mit einer neuen Küche ausgestattet und kann voraussichtlich ab 1. Mai 2026 von Ihnen bezogen werden.
...das besondere Extra dieser Wohnung besteht darin, dass der schöne, private Badeplatzanteil mit Steg auch von Ihnen genutzt werden darf...
...der nächste Sommer kommt bestimmt...
Bitte beachten Sie: derzeit ist die Wohnung noch vermietet. Besichtigungen müssen vorweg mit dem derzeitigen Mieter koordiniert werden UND
die Marktgemeinde Altmünster gilt seit 31.12.2020 als Vorbehaltsgebietsgemeinde. Daher ist die Wohnung nur einer Nutzung als Hauptwohnsitz zugänglich.
Die Wohnung liegt im 2. Liftstock und punktet mit ihrem Grundriss. Sie setzt sich aus einem großzügigen Vorraum, 2 Schlafzimmern, Wohnzimmer, möblierter Küche, Bad, Toilette und einem kleine Abstellraum zusammen. Alle Räume (ausgenommen Küche) können vom zentralen Vorraum aus betreten werden.
Der ca. 7 m² große Balkon ist vom Wohnzimmer aus zugänglich.
Ihr Fahrzeug findet Platz in der zugehörigen Tiefgarage.
In den Mietkosten, sind die Betriebs- und Heizkosten und die Kosten des TG-Platzes bereits enthalten.
Die Wohnung ist mit einer neuen Küche ausgestattet und kann voraussichtlich ab 1. Mai 2026 von Ihnen bezogen werden.
...das besondere Extra dieser Wohnung besteht darin, dass der schöne, private Badeplatzanteil mit Steg auch von Ihnen genutzt werden darf...
...der nächste Sommer kommt bestimmt...
Bitte beachten Sie: derzeit ist die Wohnung noch vermietet. Besichtigungen müssen vorweg mit dem derzeitigen Mieter koordiniert werden UND
die Marktgemeinde Altmünster gilt seit 31.12.2020 als Vorbehaltsgebietsgemeinde. Daher ist die Wohnung nur einer Nutzung als Hauptwohnsitz zugänglich.
| Angaben gemäß gesetzlichem Erfordernis: | |||
| Miete | € | 850 | |
| Betriebskosten inkl Heizkosten | € | 453 | |
| Umsatzsteuer | € | 0 | |
| ------------------------------------------------------------------ | |||
| Gesamtbetrag | € | 1303 | |
| ------------------------------------------------------------------ | |||
| Heizwärmebedarf: | 78.0 kWh/(m²a) | ||
| Klasse Heizwärmebedarf: | C | ||
| Faktor Gesamtenergieeffizienz: | 2.24 | ||
| Klasse Faktor Gesamtenergieeffizienz: | D | ||
Objektdaten
Ausstattung
- Unterkellert
- Zentralheizung
- Befeuerung mit Gas
- Personen Fahrstuhl
- Bus
- Küche Möbliert
- Zentralheizung mit Gas
Zustand
- Zustand
- GEPFLEGT
- Baujahr
- ca. 1991
Flächen
- Anzahl der Zimmer
- 3
- Anzahl der Schlafzimmer
- 2
- Anzahl der Badezimmer
- 1
- Anzahl der sep. WCs
- 1
- Anzahl der Balkone
- 1
- Stellplätze
- 1
- Wohnfläche
- 83m²
Kosten
- Kaltmiete
- € 1.303,00
- Nebenkosten
- € 453,00
- Kaution
- € 4.000,00
- Betriebskosten + Heizkosten Brutto
- € 453,00
Verwaltung
- Verfügbar ab
- 1.Mai 2026
- Mietdauer
- ab 3,0 Jahre
Wohnungen zum Mieten im Umkreis von Gmunden
Wohnungen zum Mieten im Umkreis von Gmunden
Wohnungen zum Mieten in Österreich
Andere Besucher suchen nach...
- Grundstücke kaufen in 3400 Weidlingbach
- Wohnungen kaufen in 4663 Laakirchen
- Häuser in 7471 Rechnitz
- Wohnungen in 2410 Hainburg an der Donau
- Häuser kaufen in 2432 Schwadorf
- Wohnungen kaufen in 3002 Purkersdorf
- Häuser in 3150 Wilhelmsburg
- Wohnungen kaufen in 3470 Engelmannsbrunn
- Grundstücke kaufen im Bezirk Mattersburg
- Grundstücke kaufen im Bezirk Gmunden