Wunderschöne 2-Zimmer-Wohnung in Altmünster - zentrale Lage mit Traunsee in Gehweite
-
2020
-
01.08.2026
Beschreibung
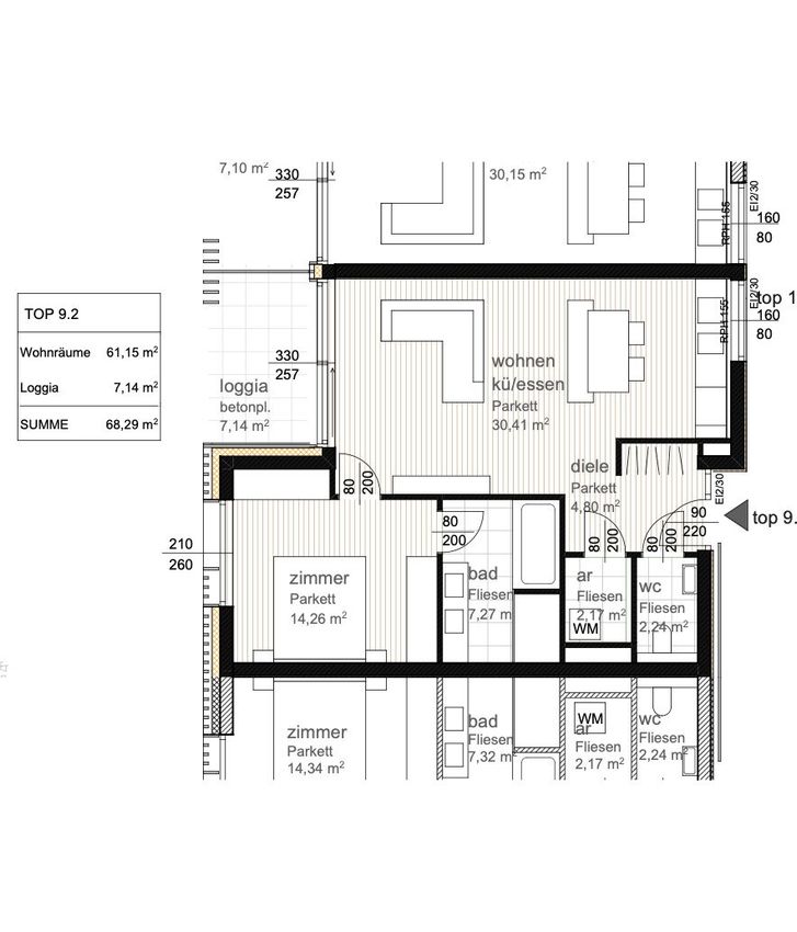
Diese großzügige 2-Raum-Wohnung in der Münsterstraße 8, befindet sich im 1. Obergeschoss des Wohnhauses und ist sowohl über den Eingangsbereich als auch von der Tiefgarage aus barrierefrei mittels Lift erreichbar.
Bereits beim Betreten überzeugt die Wohnung durch ihre helle, freundliche Atmosphäre: Große Fensterflächen lassen viel natürliches Licht herein und sorgen den ganzen Tag über für ein angenehmes, lichtdurchflutetes Wohngefühl. Der wunderschöne Grünblick unterstreicht die ruhige Lage und schafft eine besondere Verbindung zur Natur.
Vom zentralen Aufschließungsgang aus gelangen Sie in das separate WC, den praktischen Abstellraum sowie in den offenen Wohn-, Koch- und Essbereich. Dieser bildet das Herzstück der Wohnung...
Diese großzügige 2-Raum-Wohnung in der Münsterstraße 8, befindet sich im 1. Obergeschoss des Wohnhauses und ist sowohl über den Eingangsbereich als auch von der Tiefgarage aus barrierefrei mittels Lift erreichbar.
Bereits beim Betreten überzeugt die Wohnung durch ihre helle, freundliche Atmosphäre: Große Fensterflächen lassen viel natürliches Licht herein und sorgen den ganzen Tag über für ein angenehmes, lichtdurchflutetes Wohngefühl. Der wunderschöne Grünblick unterstreicht die ruhige Lage und schafft eine besondere Verbindung zur Natur.
Vom zentralen Aufschließungsgang aus gelangen Sie in das separate WC, den praktischen Abstellraum sowie in den offenen Wohn-, Koch- und Essbereich. Dieser bildet das Herzstück der Wohnung und lädt mit seiner großzügigen Gestaltung zum Wohlfühlen und Verweilen ein.
Von hier aus erreichen Sie das gemütliche Schlafzimmer mit angrenzendem Badezimmer sowie die einladende Loggia. Diese bietet nicht nur einen herrlichen Fernblick, sondern auch einen idyllischen Ausblick ins Grüne. Perfekt, um entspannte Stunden in der Abendsonne zu genießen und den Tag in angenehmer Atmosphäre ausklingen zu lassen.
AUSSTATTUNGSMERKMALE WOHNUNG:
- Parkettboden Eiche
- Feinsteinzeug in Vorraum, Bad & WC
- Badheizkörper
- Kunststofffenster mit Wärmeschutzverglasung
- Raffstore (Unterputzkästen)
- Fußbodenheizung mit Einzelraumregelung
- Wohnungseingangstür mit MAX Oberfläche und Sicherheitsbeschlag
- 1 Tiefgaragenstellplatz
AUSTATTUNGSMERKMALE GEBÄUDE:
- Briefkastenanlage
- Solaranlage zur Warmwasseraufbereitung
- Garagenrolltor mit Handsender
- Fahrradabstellraum (versperrbar)
- Besucherparkplätze
- Kellerabteil jeder Wohnung zugeordnet
- Leerverrohrung für E-Ladestation vorhanden
WEITERE HINWEISE:
Mit dieser Wohnung kann ein Tiefgaragenstellplatz um einen Mietpreis von 100€ +20% USt und deren Betriebskosten angemietet werden. Diese Kosten sind bereits in der Gesamtbelastung beinhaltet.
Die Kaution ist Bar oder mittels Bankgarantie vorzuweisen.
Bei der Firma Neubau Invest und Management GmbH handelt es sich um kein Maklerunternehmen. Sie ist Eigentümerin der Wohnung und direkte Vermieterin; daher gibt es KEINE PROVISIONSGEBÜHR.
Infrastruktur / Entfernungen
Gesundheit
Arzt <500m
Apotheke <500m
Krankenhaus <2.500m
Klinik <2.000m
Kinder & Schulen
Schule <500m
Kindergarten <500m
Nahversorgung
Supermarkt <500m
Bäckerei <500m
Einkaufszentrum <3.500m
Sonstige
Bank <500m
Geldautomat <500m
Post <500m
Polizei <2.500m
Verkehr
Bus <500m
Straßenbahn <2.500m
Bahnhof <1.500m
Autobahnanschluss <6.500m
Flughafen <10.000m
Angaben Entfernung Luftlinie / Quelle: OpenStreetMap
Objektdaten
Ausstattung
- Kabel/SAT-TV
- Barrierefrei
- Wasch-/Trockenraum
- Fahrradraum
- Bad mit Dusche
- Bad mit Badewanne
- Einbauküche
- Fliesenboden
- Parkettboden
- Zentralheizung
- Fußbodenheizung
- Befeuerung mit Gas
- Solar
- Personen Fahrstuhl
- Ausrichtung Balkon/Terrasse - Südwest
- Flachdach
- Massiv Bauweise
Zustand
- Baujahr
- 2020
- HWB
- 33.5 kWh/m² pro Jahr
- Klasse HWB
- B
- fGEE
- 0.61
- Klasse fGEE
- A+
Flächen
- Anzahl der Zimmer
- 2
- Anzahl der Badezimmer
- 1
- Anzahl der sep. WCs
- 1
- Stellplätze
- 1
- Wohnfläche
- 61m²
- Kellerfläche
- 4m²
Kosten
- Gesamtmiete Brutto
- € 1.252,28
- Kaution
- € 4.000,00
- Miete
- € 945,20
- Betriebskosten
- € 182,35
- Heizkosten
- € 23,39
- Umsatzsteuer
- € 129,41
- Monatl. Gesamtbelastung Brutto
- € 1.280,35
Verwaltung
- Verfügbar ab
- 01.08.2026
- Mietdauer
- bis 5,0 Jahre
Wohnungen zum Mieten im Umkreis von Altmünster
Wohnungen zum Mieten im Umkreis von Altmünster
Wohnungen zum Mieten in Österreich
Andere Besucher suchen nach...
- Grundstücke kaufen in 3400 Weidlingbach
- Wohnungen kaufen in 4663 Laakirchen
- Häuser in 7471 Rechnitz
- Wohnungen in 2410 Hainburg an der Donau
- Häuser kaufen in 2432 Schwadorf
- Wohnungen kaufen in 3002 Purkersdorf
- Häuser in 3150 Wilhelmsburg
- Wohnungen kaufen in 3470 Engelmannsbrunn
- Grundstücke kaufen im Bezirk Mattersburg
- Grundstücke kaufen im Bezirk Gmunden