Nur 5 Autominuten von Wattens entfernt: Hochwertig ausgestattete 3-Zimmer-Wohnung im GRÜNEN!
Beschreibung
WOHNIDYLLE: Hochwertig ausgestattete 3-Zimmerwohnung mit ca. 78m² Wohnfläche und ca. 21m² großem, überdachten Balkon nur wenige Autominuten von Wattens entfernt ab sofort zu mieten!
Unverbaubarer Blick auf die traumhafte Bergwelt inklusive!
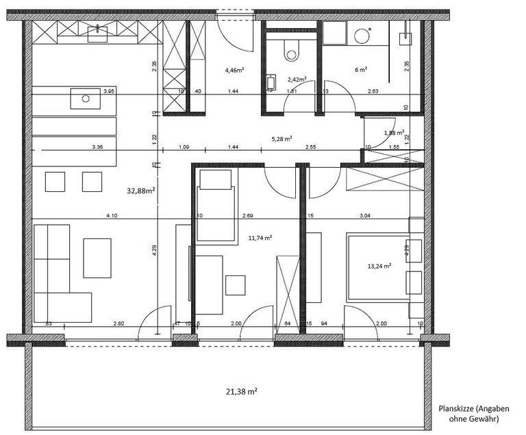
Zur Miete steht eine ca. 78 m² große 3-Zimmerwohnung mit wunderschönem, überdachtem Balkon sowie moderner, hochwertiger Innenausstattung. Die sehr gut eingeteilte Wohnung mit herrlicher Aussicht befindet sich in einem 2020 erbauten, modernen Mehrparteienhaus mit insgesamt 26 Wohneinheiten.
Das Mietobjekt überzeugt neben einer modernen Miele-Küche mit stilvoller Natursteinplatte durch hochwertige Eichen-Echtholzparkettböden und elektrischen Sonnenschutz auf allen Fenstern. Das elegant eingerichtete Badezimmer bietet mit einer modernen Infinity Dusche mit...
WOHNIDYLLE: Hochwertig ausgestattete 3-Zimmerwohnung mit ca. 78m² Wohnfläche und ca. 21m² großem, überdachten Balkon nur wenige Autominuten von Wattens entfernt ab sofort zu mieten!
Unverbaubarer Blick auf die traumhafte Bergwelt inklusive!
Zur Miete steht eine ca. 78 m² große 3-Zimmerwohnung mit wunderschönem, überdachtem Balkon sowie moderner, hochwertiger Innenausstattung. Die sehr gut eingeteilte Wohnung mit herrlicher Aussicht befindet sich in einem 2020 erbauten, modernen Mehrparteienhaus mit insgesamt 26 Wohneinheiten.
Das Mietobjekt überzeugt neben einer modernen Miele-Küche mit stilvoller Natursteinplatte durch hochwertige Eichen-Echtholzparkettböden und elektrischen Sonnenschutz auf allen Fenstern. Das elegant eingerichtete Badezimmer bietet mit einer modernen Infinity Dusche mit Regenbrause eine kleine Wellness-Oase in den eigenen vier Wänden. Weiterer Pluspunkt: Man gelangt von allen Schlafzimmern sowie vom Wohn-/Essbereich auf den ca. 21 m² großen, überdachten West-Balkon und kann so auch bei Regenwetter die herrliche Aussicht auf die umliegende Bergwelt genießen. Luxus pur!
Als Stauraum dient neben dem Abstellraum in der Wohnung auch noch ein separates Kellerabteil, ein Fahrradabstell- sowie ein Kinderwagenraum.
Lagebeschreibung: Das Dorf Wattenberg auf 1000 Meter Seehöhe als Geheimtipp für Erholungssuchende. Auf dieser Höhe in bester „Aussichtslage“ hoch über dem Inntal liegen die malerischen Bauernhöfe und Häuser, die die schmucke Ortschaft Wattenberg bilden --> nur ca. 5 Autominuten von Wattens und von der Landeshauptstadt Innsbruck nur ca. 20 Autominuten entfernt.
Die hier zur Miete stehende 3-Zimmerwohnung ist in Wattenberg 17c in 6113 Wattenberg gelegen und verspricht dem zukünftigen Mieter / der zukünftigen Mieterin die Nähe zu öffentlichen Verkehrsmitteln (ca. 9 Fußmiunten - Bus 525 T, Haltestelle Wattenberg Grub), Hofladen (ca. 15 Fußminuten) , Volksschule (ca. 15 Fußminuten), etc. Wattens mit seinen berühmten Swarovski Kristallwelten und weiteren Einkaufs- sowie Freizeitmöglichkeiten ist nur ca. 5 Autominuten.
FAZIT: Die hier zur Miete stehende hochwertige 3-Zimmerwohnung in idyllischer Lage überzeugt durch den 21m² großen, überdachten Balkon, die edle Innenausstattung, ausreichend Stauraum als auch durch den unverbaubaren BERGBLICK nur wenige Autominuten von Wattens entfernt!
Wichtigste Informationen im Überblick:
- Baujahr ca. 2020
- Mehrparteienhaus mit insgesamt 26 Wohneinheiten
- 1. OG mit LIFT
- süd-westliche Ausrichtung
- 3 Zimmer
- Wohnfläche: ca. 78 m²
- Zeitlos, moderne Miele- Küche mit hochwertiger Arbeitsplatte aus Naturstein
- Elektrischer Sonnenschutz an allen Fenstern
- Böden: Hochwertiger Echtholzparkett Eiche, Fliesen
- Überdachter Balkon: ca. 21m²
- Modernes Badezimmer mit begehbarer Dusche und Regenbrause
- EXTRA-WC
- Zentralheizung (Pellets) - Fußbodenheizung
- Fernseh- / Internetanschluss vorhanden
- Kellerraum: ca. 3 m²
- allgemeiner Fahrradraum und Kinderwagenraum vorhanden
- aktuelle Betriebskosten inkl. Heizung: ca. EUR 265,1* / Monat
- Energieausweis: HWB: 20
- Beziehbar ab sofort
- Haustiere nach Absprache
GESAMTMIETPREIS: EUR 1.596,1
Mietpreis Carportabstellplatz (optional) EUR 60,8
Anfragen bitte nur schriftlich.
Wir bitten Sie um Verständnis, dass wir unserer Nachweispflicht nachkommen müssen und wir Anfragen nur unter Angabe der vollständigen Kontaktdaten (Name, Adresse, Telefonnummer, Email) beantworten können.
* Restmüll wird über die Gemeinde abgerechnet
Nebenkosten:
- Kaution: 3 Bruttomonatsmieten
- Mietvertragserrichtungskosten: 1 BMM zzgl. 20% Ust.
Für weitere Informationen oder einen Besichtigungstermin steht Ihnen unser Team gerne zur Verfügung.
Kontaktdaten:
SAGENTUS Immobilien
Tel.: +43 678 1254029
eisenkoelbl@sagentus.at
Dieses Angebot bieten wir Ihnen im Auftrag der Eigentümerseite unverbindlich und freibleibend an. Allfällige Änderungen, Irrtümer, Satz- und Druckfehler vorbehalten. Alle Angaben sind sorgfältig recherchiert und beruhen auf Angaben und Informationen Dritter. Hierfür wird keine Haftung übernommen. Wir übernehmen keinerlei Gewähr oder Haftung für die tatsächliche Energieeffizienz der angebotenen Immobilie.
+++ ICH VERKAUFE ODER VERMIETE AUCH GERNE IHRE WOHNUNG, IHR HAUS ODER IHR GRUNDSTÜCK IN INNSBRUCK UND GANZ TIROL +++
Falls Sie eine Wohnung, ein Haus oder ein Grundstück zu verkaufen oder zu vermieten haben, so würde ich Sie sehr gerne dabei unterstützen Ihre Immobilie optimal zu vermarkten.
Wir greifen bei unserer Immobilienvermarktung auf eine Datenbank mit hunderten vorgemerkten Kunden zurück und inserieren Ihr Objekt zudem in den wichtigsten einschlägigen Medien im Internet und in Printformat.
Unsere gut ausgebildeten Mitarbeiter garantieren dafür, dass Ihre Immobilie in kürzester Zeit und zum bestmöglichen Preis verkauft oder vermietet wird.
Sollten Sie eine Immobilie verkaufen oder vermieten möchten oder einfach nur eine unverbindliche Wertanalyse Ihres Objekts wünschen, so lade ich Sie herzlich dazu ein mit uns in Kontakt zu treten.
SAGENTUS Immobilien ist als staatlich konzessionierter Immobilienmakler Ihr zuverlässiger Partner im Bereich Immobilien im Raum Innsbruck, Tirol und Rest-Österreich. Als Full-Service-Agentur nehmen wir Ihnen wenn gewünscht sämtlichen Aufwand ab - von der Wohnungsaufnahme bis zur finalen Schlüsselübergabe an den neuen Wohnungseigentümer oder Mieter.
SAGENTUS Immobilien
Standort Hall in Tirol (Bezirk Innsbruck-Land)
office@sagentus.at
Der Immobilienmakler erklärt, dass er – entgegen dem in der Immobilienwirtschaft üblichen Geschäftsgebrauch des Doppelmaklers – einseitig nur für den Vermieter tätig ist.
Infrastruktur / Entfernungen
Gesundheit
Arzt <2.250m
Apotheke <2.500m
Klinik <7.000m
Krankenhaus <6.750m
Kinder & Schulen
Schule <500m
Kindergarten <500m
Universität <6.500m
Nahversorgung
Supermarkt <2.250m
Bäckerei <2.250m
Sonstige
Bank <2.000m
Geldautomat <2.000m
Post <2.000m
Polizei <2.500m
Verkehr
Bus <2.250m
Autobahnanschluss <3.250m
Bahnhof <3.500m
Angaben Entfernung Luftlinie / Quelle: OpenStreetMap
Objektdaten
Ausstattung
- Einbauküche
- Offene Küche
- Fliesenboden
- Parkettboden
- Zentralheizung
Zustand
- HWB
- 20 kWh/m² pro Jahr
- Klasse HWB
- A
- fGEE
- 0.62
- Klasse fGEE
- A+
Flächen
- Anzahl der Zimmer
- 3
- Anzahl der Badezimmer
- 1
- Anzahl der sep. WCs
- 1
- Anzahl der Balkone
- 1
- Wohnfläche
- 78m²
- Kellerfläche
- 3m²
Kosten
- Gesamtmiete Brutto
- € 1.596,10
- Miete
- € 1.596,10
- Monatl. Gesamtbelastung Brutto
- € 1.596,10
Wohnungen zum Mieten im Umkreis von Wattenberg
Wohnungen zum Mieten im Umkreis von Wattenberg
Wohnungen zum Mieten in Österreich
Andere Besucher suchen nach...
- Grundstücke kaufen in 3400 Weidlingbach
- Wohnungen kaufen in 4663 Laakirchen
- Häuser in 7471 Rechnitz
- Wohnungen in 2410 Hainburg an der Donau
- Häuser kaufen in 2432 Schwadorf
- Wohnungen kaufen in 3002 Purkersdorf
- Häuser in 3150 Wilhelmsburg
- Wohnungen kaufen in 3470 Engelmannsbrunn
- Grundstücke kaufen im Bezirk Mattersburg
- Grundstücke kaufen im Bezirk Gmunden