Helle 3-Zimmer-Wohnung mit Balkon in Ansfelden – Verfügbar ab 01.03.2026!
-
01.03.2026
Beschreibung
Ansfelden / Haid / Pasching / Wohnpark 47:
Diese gut geschnittene 3-Zimmer-Wohnung mit Balkon befindet sich im 3. Obergeschoss einer Wohnanlage in Ansfelden.
Raumaufteilung & Highlights
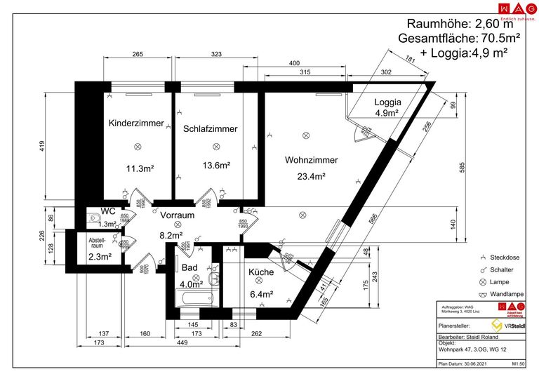
Raumaufteilung
- Vorraum: 8,20 m²
- Abstellraum: 2,30 m²
- WC: 1,30 m²
- Kinderzimmer: 11,30 m²
- Schlafzimmer: 13,60 m²
- Badezimmer: 4,00 m²
- Küche: 6,40 m²
- Wohnzimmer: 23,40 m²
- Wohnfläche gesamt: 70,50 m²
- Balkon: 4,90 m²
Highlights
- Gut geschnittene 3-Zimmer-Wohnung
- Balkon mit 4,90 m²
- Helles Wohnzimmer
- Praktischer Abstellraum
- Getrenntes WC
- Wohnung wird derzeit saniert
- Ruhige Wohnanlage
Mietkonditionen
- Miete inkl. Betriebskosten und MwSt.: 719,13 € (exkl. Strom, Warmwasser und Heizung)
- Kaution: 2.876,52 €
Ansfelden / Haid / Pasching / Wohnpark 47:
Diese gut geschnittene 3-Zimmer-Wohnung mit Balkon befindet sich im 3. Obergeschoss einer Wohnanlage in Ansfelden.
Raumaufteilung & Highlights
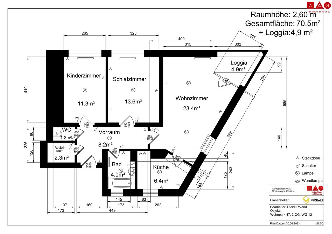
Raumaufteilung
- Vorraum: 8,20 m²
- Abstellraum: 2,30 m²
- WC: 1,30 m²
- Kinderzimmer: 11,30 m²
- Schlafzimmer: 13,60 m²
- Badezimmer: 4,00 m²
- Küche: 6,40 m²
- Wohnzimmer: 23,40 m²
- Wohnfläche gesamt: 70,50 m²
- Balkon: 4,90 m²
Highlights
- Gut geschnittene 3-Zimmer-Wohnung
- Balkon mit 4,90 m²
- Helles Wohnzimmer
- Praktischer Abstellraum
- Getrenntes WC
- Wohnung wird derzeit saniert
- Ruhige Wohnanlage
Mietkonditionen
- Miete inkl. Betriebskosten und MwSt.: 719,13 €
(exkl. Strom, Warmwasser und Heizung) - Kaution: 2.876,52 €
Verfügbarkeit
Die Wohnung steht 01.03.2026 zur Verfügung.
Sie sind an weiteren Wohnungs- bzw. Gewerbeangeboten interessiert? Ein vielfältiges Angebot finden Sie auf unserer Website.
Zur WAG-Immobiliensuche: SUCHE
Zur WAG-Wohnungsanmeldung: Wohnungsanmeldung
Gerne beraten wir Sie persönlich über unser vielfältiges Angebot, rufen Sie uns einfach an! Und das natürlich ohne Vermittlungsgebühren und provisionsfrei!
Angaben sind ohne Gewähr auf Richtigkeit und Vollständigkeit. Druckfehler vorbehalten.
Infrastruktur / Entfernungen
Gesundheit
Arzt <175m
Apotheke <500m
Klinik <2.800m
Krankenhaus <8.750m
Kinder & Schulen
Kindergarten <700m
Schule <525m
Universität <6.875m
Nahversorgung
Supermarkt <500m
Bäckerei <1.475m
Einkaufszentrum <1.450m
Sonstige
Bank <450m
Geldautomat <450m
Post <300m
Polizei <850m
Verkehr
Bus <175m
Straßenbahn <1.350m
Bahnhof <900m
Autobahnanschluss <975m
Flughafen <5.300m
Angaben Entfernung Luftlinie / Quelle: OpenStreetMap
Objektdaten
Ausstattung
- Kabel/SAT-TV
- Wasch-/Trockenraum
- Bad mit Badewanne
- Fliesenboden
- Parkettboden
- Zentralheizung
- Fern Befeuerung
- Personen Fahrstuhl
- Massiv Bauweise
- Niedrigenergie
Dokumente / Links
Zustand
- Zustand
- GEPFLEGT
- HWB
- 54.6 kWh/m² pro Jahr
- Klasse HWB
- C
- fGEE
- 1.05
- Klasse fGEE
- C
Flächen
- Anzahl der Zimmer
- 3
- Anzahl der Badezimmer
- 1
- Anzahl der sep. WCs
- 1
- Anzahl der Balkone
- 1
- Stellplätze
- 1
- Wohnfläche
- 71m²
Kosten
- Gesamtmiete Brutto
- € 719,13
- Kaution
- € 2.876,52
- Miete
- € 407,84
- Betriebskosten
- € 236,80
- Sonstige Kosten
- € 10,03
- Umsatzsteuer
- € 64,46
- Monatl. Gesamtbelastung Brutto
- € 719,13
Verwaltung
- Verfügbar ab
- 01.03.2026
Wohnungen zum Mieten im Umkreis von Ansfelden
Wohnungen zum Mieten im Umkreis von Ansfelden
Wohnungen zum Mieten in Österreich
Andere Besucher suchen nach...
- Grundstücke kaufen in 3400 Weidlingbach
- Wohnungen kaufen in 4663 Laakirchen
- Häuser in 7471 Rechnitz
- Wohnungen in 2410 Hainburg an der Donau
- Häuser kaufen in 2432 Schwadorf
- Wohnungen kaufen in 3002 Purkersdorf
- Häuser in 3150 Wilhelmsburg
- Wohnungen kaufen in 3470 Engelmannsbrunn
- Grundstücke kaufen im Bezirk Mattersburg
- Grundstücke kaufen im Bezirk Gmunden