Traumhafte 2-Zimmer-Wohnung mit Balkon in Toplage von Leonding (Holzheim) zu vermieten!
-
nach Vereinbarung/sofort
Beschreibung
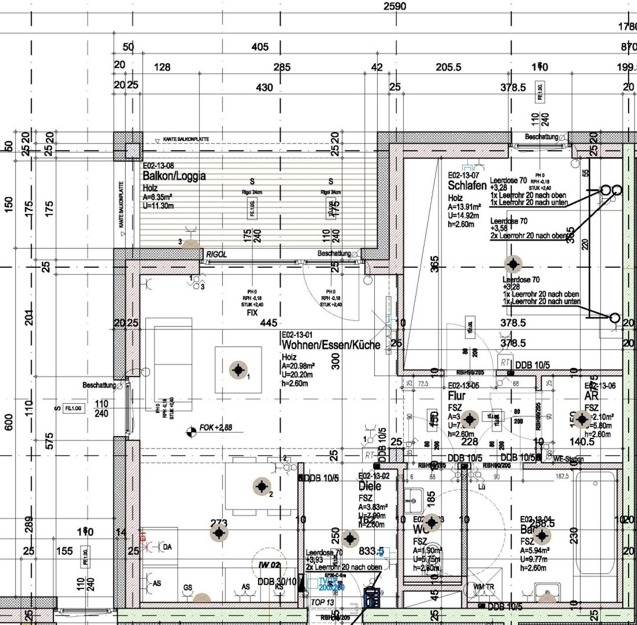
Moderne 2-Zimmer-Wohnung mit durchdachter Raumaufteilung und Balkon zu vermieten!
Diese hochwertig ausgestattete 2-Zimmer-Wohnung liegt in einer begehrten Wohnlage in Leonding/Holzheim. Die Wohnung befindet sich im 2. Obergeschoss eines neuwertigen Wohnhauses und bietet auf ca. 52,12m² eine ideale Raumaufteilung!
Ein besonderes Highlight ist der ca. 6,35m² große, ostseitig ausgerichtete Balkon, welcher perfekte Morgenstunden im Freien garantiert. RAUMAUFTEILUNG: - Wohn-, Esszimmer - Schlafzimmer - Badezimmer - Toilette - Abstellraum - Balkon Der helle Wohnbereich punktet mit einer modernen und voll ausgestatteten Küche, welche vom Vormieter abgelöst werden kann (Details auf Anfrage). Direkt angrenzend befindet sich das geräumige Schlafzimmer. Das moderne Badezimmer verfügt...
Moderne 2-Zimmer-Wohnung mit durchdachter Raumaufteilung und Balkon zu vermieten!
Diese hochwertig ausgestattete 2-Zimmer-Wohnung liegt in einer begehrten Wohnlage in Leonding/Holzheim. Die Wohnung befindet sich im 2. Obergeschoss eines neuwertigen Wohnhauses und bietet auf ca. 52,12m² eine ideale Raumaufteilung!
Ein besonderes Highlight ist der ca. 6,35m² große, ostseitig ausgerichtete Balkon, welcher perfekte Morgenstunden im Freien garantiert.
RAUMAUFTEILUNG:
- Wohn-, Esszimmer
- Schlafzimmer
- Badezimmer
- Toilette
- Abstellraum
- Balkon
Der helle Wohnbereich punktet mit einer modernen und voll ausgestatteten Küche, welche vom Vormieter abgelöst werden kann (Details auf Anfrage). Direkt angrenzend befindet sich das geräumige Schlafzimmer.
Das moderne Badezimmer verfügt über eine Badewanne inkl. Duschwand und einen Waschmaschinenanschluss. Die separate Toilette befindet sich direkt nebenan.
Für ein angenehmes Wohnklima sorgt die Fußbodenheizung mittels Fernwärme. Zusätzlich ist die Wohnung mit einer kontrollierten Wohnraumlüftung ausgestattet, die stets für frische Luft und ein ausgeglichenes Raumklima sorgt.
Bei Bedarf können einige Möbel (siehe Fotos) vom Vormieter abgelöst werden. Genauere Details auf Anfrage.
Zur Freude des Mieters ist ein praktisches und abschließbares Kellerabteil im EG in der Miete inkludiert.
Ein Freistellparkplatz direkt vor dem Gebäude ist um monatlich € 60,00 inkl. USt und Betriebskosten verpflichtend anzumieten.
Die Wohnung liegt in absoluter Ruhelage in Leonding, umgeben von viel Grün. Spazierwege und Naherholungsflächen befinden sich in unmittelbarer Nähe. Gleichzeitig sind Einkaufsmöglichkeiten und öffentliche Verkehrsmittel (Bushaltestelle direkt vorm Haus) gut erreichbar.
KONDITIONEN:
- Mietkosten monatl.: € 620,00 inkl. USt
- Betriebskosten-Akonto monatl.: € 120,00 inkl. USt
- Parkplatzkosten monatl.: € 60,00 inkl. USt
- Gesamtmiete monatl.: € 820,00 (inkl. USt, Betriebskosten und Parkplatz; exkl. Heizung und Strom)
Die monatlichen Kosten für Strom und Heizung werden je nach Verbrauch direkt vom Versorgungsunternehmen abgerechnet.
Aufgrund des guten HWB-Wertes werden die monatlichen Heizkosten jedoch sehr gering gehalten.
Kaution: € 2.600,00,- (keine Bankgarantie)
ACHTUNG - Hunde sind nicht erlaubt!
Sollten Sie mit anderen Haustieren einziehen wollen, teilen Sie uns dies bitte bei der Anfrage mit!
Wir freuen uns über Ihre Anfrage!
Entdecken Sie dieses und weitere spannende Immobilienangebote auf unserer Homepage unter www.nextimmobilien.at!
Unverbindliches, freibleibendes Angebot. Informationen nach bestem Wissen und Gewissen von AbgeberIn erhalten - für die Richtigkeit wird keine Haftung übernommen. Mündliche Nebenabreden zum angebotenen Objekt bedürfen zu Ihrer Wirksamkeit der Schriftform. Irrtümer, Druckfehler und Änderungen vorbehalten. Besichtigungen und Beratungen erfolgen kostenlos. Es besteht zwischen der VermittlerIn und der AbgeberIn ein wirtschaftliches Naheverhältnis.
Information zum Datenschutz unter www.nextimmobilien.at/datenschutz
Der Immobilienmakler erklärt, dass er – entgegen dem in der Immobilienwirtschaft üblichen Geschäftsgebrauch des Doppelmaklers – einseitig nur für den Vermieter tätig ist.
Infrastruktur / Entfernungen
Gesundheit
Arzt <1.000m
Apotheke <1.000m
Klinik <2.000m
Krankenhaus <2.500m
Kinder & Schulen
Kindergarten <500m
Schule <1.000m
Universität <1.500m
Höhere Schule <3.000m
Nahversorgung
Supermarkt <1.000m
Bäckerei <1.500m
Einkaufszentrum <2.500m
Sonstige
Bank <1.500m
Geldautomat <1.500m
Post <2.500m
Polizei <2.500m
Verkehr
Bus <500m
Straßenbahn <2.000m
Bahnhof <2.500m
Autobahnanschluss <1.500m
Flughafen <6.000m
Angaben Entfernung Luftlinie / Quelle: OpenStreetMap
Objektdaten
Ausstattung
- Vollmöbliert
- Kabel/SAT-TV
- Zentralheizung
- Fern Befeuerung
- Personen Fahrstuhl
Zustand
- Baujahr
- 2015
- Alter
- NEUBAU
- HWB
- 20 kWh/m² pro Jahr
- Klasse HWB
- A
- fGEE
- 0.69
- Klasse fGEE
- A+
Flächen
- Anzahl der Zimmer
- 2
- Anzahl der Badezimmer
- 1
- Anzahl der sep. WCs
- 1
- Anzahl der Balkone
- 1
- Stellplätze
- 1
- Nutzfläche
- 52m²
Kosten
- Gesamtmiete Brutto
- € 760,00
- Kaution
- € 2.600,00
- Miete
- € 581,82
- Betriebskosten
- € 109,09
- Umsatzsteuer
- € 69,09
- Monatl. Gesamtbelastung Brutto
- € 760,00
Verwaltung
- Verfügbar ab
- nach Vereinbarung/sofort
Wohnungen zum Mieten im Umkreis von Leonding
Wohnungen zum Mieten im Umkreis von Leonding
Wohnungen zum Mieten in Österreich
Andere Besucher suchen nach...
- Grundstücke kaufen in 3400 Weidlingbach
- Wohnungen kaufen in 4663 Laakirchen
- Häuser in 7471 Rechnitz
- Wohnungen in 2410 Hainburg an der Donau
- Häuser kaufen in 2432 Schwadorf
- Wohnungen kaufen in 3002 Purkersdorf
- Häuser in 3150 Wilhelmsburg
- Wohnungen kaufen in 3470 Engelmannsbrunn
- Grundstücke kaufen im Bezirk Mattersburg
- Grundstücke kaufen im Bezirk Gmunden