2 ZIMMERWOHNUNG in betreuter Wohnanlage in Linz
Beschreibung
Willkommen in Ihrem neuen betreuten Zuhause in der charmanten Stadt Linz! Diese wunderschöne 2-Zimmer-Wohnung in einer betreuten Wohnanlage in der 1. Etage bietet Ihnen nicht nur eine hervorragende Lage, sondern auch einen hohen Wohnkomfort, der keine Wünsche offenlässt.
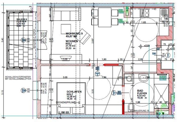
Mit einer großzügigen Fläche von 49,87 m² ist diese Wohnung ideal für all jene, die einen Betreuungsbedarf haben und eine moderne und gemütliche Umgebung suchen. Die gut geschnittenen Zimmer schaffen eine einladende Atmosphäre, die zum Entspannen und Wohlfühlen einlädt.
Ein besonderes Highlight dieser Wohnung ist der Balkon, der Ihnen die Möglichkeit bietet, die frische Luft und die Aussicht zu genießen. Stellen Sie...
Willkommen in Ihrem neuen betreuten Zuhause in der charmanten Stadt Linz! Diese wunderschöne 2-Zimmer-Wohnung in einer betreuten Wohnanlage in der 1. Etage bietet Ihnen nicht nur eine hervorragende Lage, sondern auch einen hohen Wohnkomfort, der keine Wünsche offenlässt.
Mit einer großzügigen Fläche von 49,87 m² ist diese Wohnung ideal für all jene, die einen Betreuungsbedarf haben und eine moderne und gemütliche Umgebung suchen. Die gut geschnittenen Zimmer schaffen eine einladende Atmosphäre, die zum Entspannen und Wohlfühlen einlädt.
Ein besonderes Highlight dieser Wohnung ist der Balkon, der Ihnen die Möglichkeit bietet, die frische Luft und die Aussicht zu genießen. Stellen Sie sich vor, wie Sie hier an warmen Sommerabenden entspannen oder Ihren Morgenkaffee in der Sonne genießen – ein kleiner Rückzugsort mitten im Alltag.
Die Verkehrsanbindung ist perfekt: Bus, Straßenbahn und der Bahnhof sind nur wenige Gehminuten entfernt, sodass Sie schnell und unkompliziert in alle Teile der Stadt und darüber hinaus gelangen können. Auch der Autobahnanschluss ist in unmittelbarer Nähe, was Ihnen die Anreise in andere Städte erleichtert.
Die Lage dieser Wohnung könnte nicht besser sein. In der Umgebung finden Sie alles, was Sie für den täglichen Bedarf benötigen. Ärzte, Apotheken sowie wie Supermärkte, Bäckereien und ein Einkaufszentrum sind gleich um die Ecke, sodass Sie in kürzester Zeit alles erreichen können.
Nutzen Sie die Gelegenheit, in dieser attraktiven Wohnung in Linz - nur mit Betreungsbedarf - zu wohnen - . Nutzen Sie die Chance und vereinbaren Sie noch heute einen Besichtigungstermin! Lassen Sie sich von dieser tollen Immobilie begeistern und erleben Sie, wie es ist, in einem so zentralen und lebendigen Stadtteil zu leben. Wir freuen uns auf Ihre Anfrage!
Wir weisen darauf hin, dass zwischen dem Vermittler und dem zu vermittelnden Dritten ein familiäres oder wirtschaftliches Naheverhältnis besteht.
Der Immobilienmakler erklärt, dass er – entgegen dem in der Immobilienwirtschaft üblichen Geschäftsgebrauch des Doppelmaklers – einseitig nur für den Vermieter tätig ist.
Infrastruktur / Entfernungen
Gesundheit
Arzt <475m
Apotheke <700m
Klinik <1.750m
Krankenhaus <550m
Kinder & Schulen
Kindergarten <575m
Schule <800m
Universität <2.100m
Höhere Schule <2.625m
Nahversorgung
Supermarkt <325m
Bäckerei <575m
Einkaufszentrum <725m
Sonstige
Bank <700m
Geldautomat <700m
Post <175m
Polizei <1.225m
Verkehr
Bus <350m
Straßenbahn <725m
Bahnhof <650m
Autobahnanschluss <500m
Flughafen <3.900m
Angaben Entfernung Luftlinie / Quelle: OpenStreetMap
Objektdaten
Ausstattung
- Barrierefrei
- Offene Küche
- Personen Fahrstuhl
Zustand
- HWB
- 35.9 kWh/m² pro Jahr
Flächen
- Anzahl der Zimmer
- 2
- Anzahl der Badezimmer
- 1
- Anzahl der sep. WCs
- 1
- Anzahl der Balkone
- 1
- Wohnfläche
- 50m²
Kosten
- Gesamtmiete Brutto
- € 758,96
- Kaution
- € 2.360,00
- Miete
- € 520,41
- Betriebskosten
- € 169,55
- Umsatzsteuer
- € 69,00
- Monatl. Gesamtbelastung Brutto
- € 758,96
Verwaltung
- Verfügbar ab
- nach Vereinbarung
- Mietdauer
- bis 5,0 Jahre
Wohnungen zum Mieten in Österreich
Wohnungen zum Mieten in Österreich
Wohnungen zum Mieten in Österreich
Andere Besucher suchen nach...
- Grundstücke kaufen in 3400 Weidlingbach
- Wohnungen kaufen in 4663 Laakirchen
- Häuser in 7471 Rechnitz
- Wohnungen in 2410 Hainburg an der Donau
- Häuser kaufen in 2432 Schwadorf
- Wohnungen kaufen in 3002 Purkersdorf
- Häuser in 3150 Wilhelmsburg
- Wohnungen kaufen in 3470 Engelmannsbrunn
- Grundstücke kaufen im Bezirk Mattersburg
- Grundstücke kaufen im Bezirk Gmunden