Charmante 2-Zimmer-Wohnung in Linz-Keferfeld – Wohnung wird im Februar 2026 GENERALSANIERT - Loggia & Garage vorhanden - ab 01.03.2026 zu beziehen!
-
01.03.2026
Beschreibung
Linz / Keferfeld / Leonding / Grundbachweg 36:
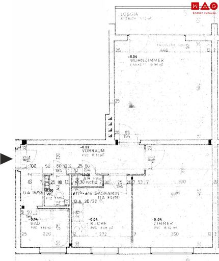
Zur Vermietung steht eine attraktive 2-Zimmer-Wohnung im 1. Obergeschoss eines gepflegten Wohnhauses am Grundbachweg 36 in 4020 Linz. Die Wohnung bietet eine Wohnfläche von 63,50 m² sowie eine gemütliche Loggia und überzeugt durch eine funktionale Raumaufteilung. Ideal geeignet für Singles oder Paare.
Raumaufteilung & Highlights
Raumaufteilung
- Vorraum: 8,81 m²
- Badezimmer: 7,85 m²
- WC: 1,37 m²
- Abstellraum: 0,55 m²
- Küche: 8,08 m²
- Schlafzimmer: 15,92 m²
- Wohnzimmer: 15,80 m²
- Loggia: 5,12 m²
Highlights
- GENERALSANIERUNG im Februar 2026
- Loggia mit 5,12 m²
- Getrenntes Badezimmer und WC
- Praktischer Abstellraum
- Gute Raumaufteilung
- Heizung bereits...
Linz / Keferfeld / Leonding / Grundbachweg 36:
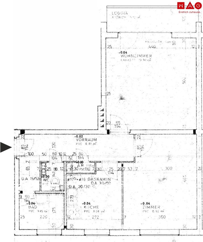
Zur Vermietung steht eine attraktive 2-Zimmer-Wohnung im 1. Obergeschoss eines gepflegten Wohnhauses am Grundbachweg 36 in 4020 Linz. Die Wohnung bietet eine Wohnfläche von 63,50 m² sowie eine gemütliche Loggia und überzeugt durch eine funktionale Raumaufteilung. Ideal geeignet für Singles oder Paare.
Raumaufteilung & Highlights
Raumaufteilung
- Vorraum: 8,81 m²
- Badezimmer: 7,85 m²
- WC: 1,37 m²
- Abstellraum: 0,55 m²
- Küche: 8,08 m²
- Schlafzimmer: 15,92 m²
- Wohnzimmer: 15,80 m²
- Loggia: 5,12 m²
Highlights
- GENERALSANIERUNG im Februar 2026
- Loggia mit 5,12 m²
- Getrenntes Badezimmer und WC
- Praktischer Abstellraum
- Gute Raumaufteilung
- Heizung bereits in der Miete inkludiert
Mietkondition
- Miete inkl. Betriebskosten, Heizung und MwSt.: 836,15 €
- Garage inkl. MwSt.: € 75,00
- Gesamtmiete: € 911,15
- Kaution/Baukostenzuschuss: 3.644,60 €
Verfügbarkeit
Die Wohnung steht 01.03.2026 zur Verfügung.
GENERALSANIERUNG im Februar 2026 :
- Böden werden erneuert (Wohnzimmer, Küche, Abstellraum, Schlafzimmer)
- Wohnung wird neu gestrichen
- Türen und Türzargen werden erneuert
- Holzdecken werden entfernt
- WC wird erneuert
- Badezimmer wird komplett erneuert, neue Fliesen, neuer Badewanne ect.
- Fliesenspiegel in der Küche wird entfernt
Sie sind an weiteren Wohnungs- bzw. Gewerbeangeboten interessiert? Ein vielfältiges Angebot finden Sie auf unserer Website.
Zur WAG-Immobiliensuche: SUCHE
Zur WAG-Wohnungsanmeldung: Wohnungsanmeldung
Gerne beraten wir Sie persönlich über unser vielfältiges Angebot, rufen Sie uns einfach an! Und das natürlich ohne Vermittlungsgebühren und provisionsfrei!
Angaben sind ohne Gewähr auf Richtigkeit und Vollständigkeit. Druckfehler vorbehalten.
Infrastruktur / Entfernungen
Gesundheit
Arzt <100m
Apotheke <75m
Klinik <2.200m
Krankenhaus <1.200m
Kinder & Schulen
Kindergarten <350m
Schule <450m
Universität <1.550m
Höhere Schule <2.825m
Nahversorgung
Supermarkt <225m
Bäckerei <100m
Einkaufszentrum <1.300m
Sonstige
Bank <100m
Geldautomat <100m
Post <75m
Polizei <1.475m
Verkehr
Bus <100m
Straßenbahn <175m
Bahnhof <175m
Autobahnanschluss <1.075m
Flughafen <4.500m
Angaben Entfernung Luftlinie / Quelle: OpenStreetMap
Objektdaten
Ausstattung
- Kabel/SAT-TV
- Wasch-/Trockenraum
- Bad mit Badewanne
- Bad mit Fenster
- Fliesenboden
- Parkettboden
- Zentralheizung
- Fern Befeuerung
- Personen Fahrstuhl
- Massiv Bauweise
- Niedrigenergie
Dokumente / Links
Zustand
- HWB
- 55.54 kWh/m² pro Jahr
- Klasse HWB
- C
- fGEE
- 1.15
- Klasse fGEE
- C
Flächen
- Anzahl der Zimmer
- 2
- Anzahl der Badezimmer
- 1
- Anzahl der sep. WCs
- 1
- Wohnfläche
- 64m²
Kosten
- Gesamtmiete Brutto
- € 777,18
- Kaution
- € 3.644,60
- Miete
- € 514,99
- Betriebskosten
- € 191,45
- Heizkosten
- € 49,14
- Sonstige Kosten
- € 0,09
- Umsatzsteuer
- € 80,48
- Monatl. Gesamtbelastung Brutto
- € 836,15
Verwaltung
- Verfügbar ab
- 01.03.2026
Wohnungen zum Mieten in Österreich
Wohnungen zum Mieten in Österreich
Wohnungen zum Mieten in Österreich
Andere Besucher suchen nach...
- Grundstücke kaufen in 3400 Weidlingbach
- Wohnungen kaufen in 4663 Laakirchen
- Häuser in 7471 Rechnitz
- Wohnungen in 2410 Hainburg an der Donau
- Häuser kaufen in 2432 Schwadorf
- Wohnungen kaufen in 3002 Purkersdorf
- Häuser in 3150 Wilhelmsburg
- Wohnungen kaufen in 3470 Engelmannsbrunn
- Grundstücke kaufen im Bezirk Mattersburg
- Grundstücke kaufen im Bezirk Gmunden