Charmante 2,5-Zimmer-Altbauwohnung nähe Linzer Bahnhof zu vermieten!
-
sofort
Beschreibung
Generalsanierte 2,5-Zimmer-Wohnung mit guter Infrastruktur in Linz zu vermieten!
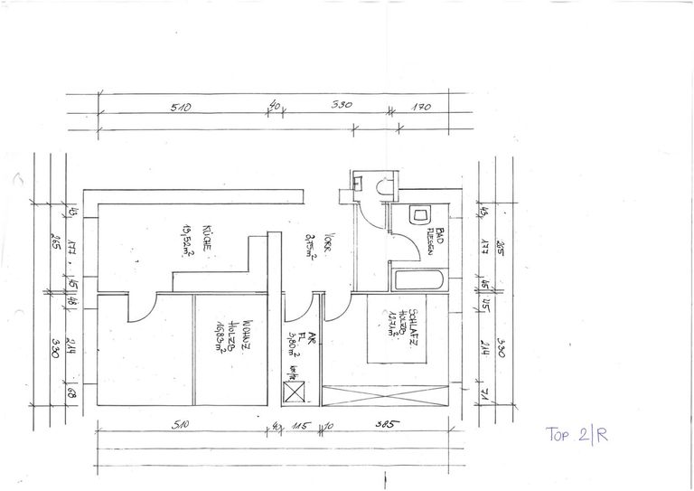
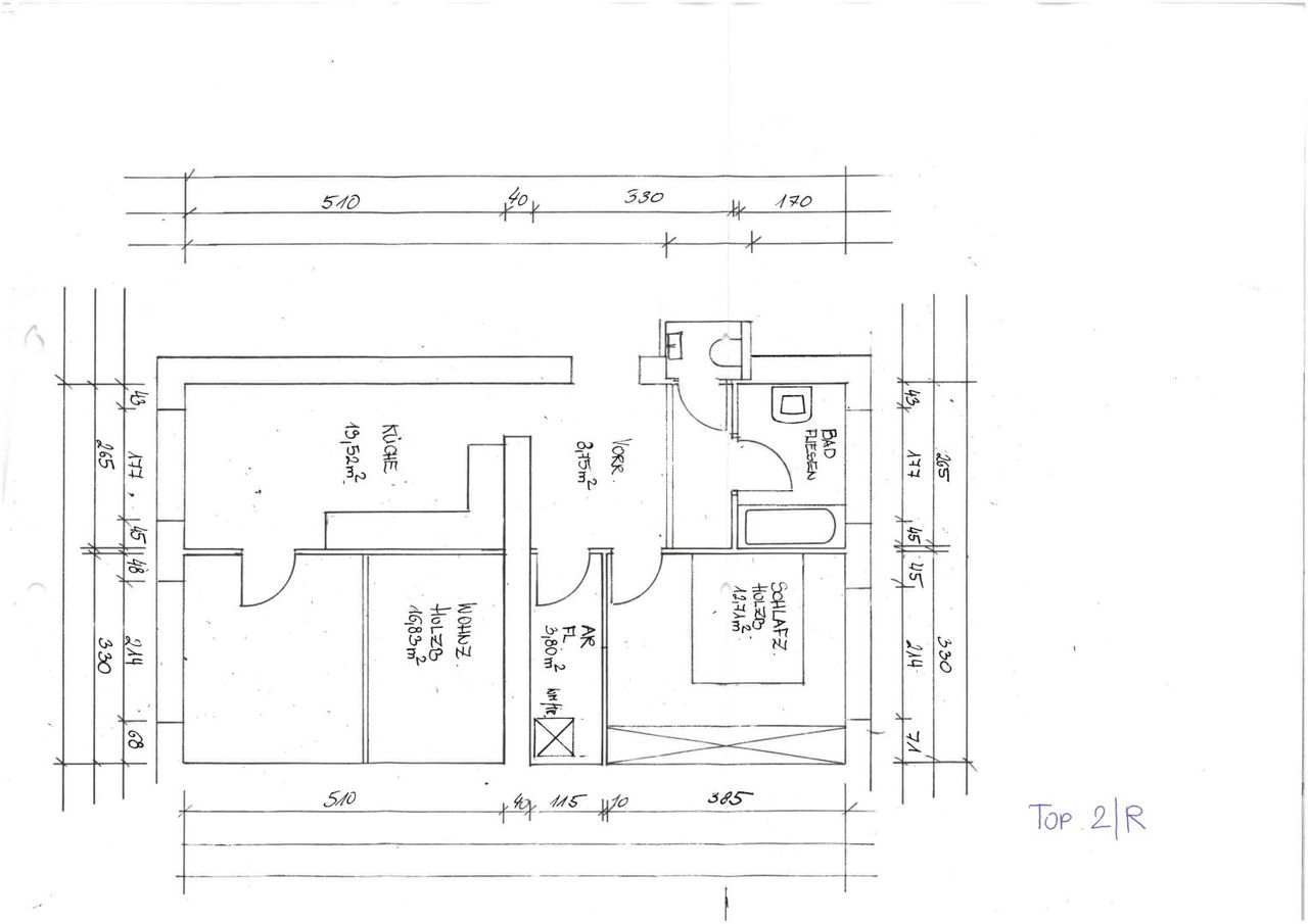
Diese großzügige, ca. 61,80 m² große Wohnung befindet sich im 2.Obergeschoß und überzeugt mit einer optimalen Raumaufteilung.
Die Wohnung verfügt über einen zentralen Vorraum, von dem aus nahezu alle Räume getrennt begehbar sind. Ein helles Wohnzimmer, ein großzügiger Essbereich mit moderner Einbauküche (bereits im Mietpreis inkludiert) sowie ein gemütliches Schlafzimmer bieten ein angenehmes Wohnambiente. Das Badezimmer mit Badewanne und Fenster, ein separates WC und ein praktischer Abstellraum runden das durchdachte Raumkonzept ab. Helle, lichtdurchflutete Räume sorgen für ein besonders behagliches Wohngefühl.
Einerseits die großartige Verkehrslage als auch die Nähe zum...
Generalsanierte 2,5-Zimmer-Wohnung mit guter Infrastruktur in Linz zu vermieten!
Diese großzügige, ca. 61,80 m² große Wohnung befindet sich im 2.Obergeschoß und überzeugt mit einer optimalen Raumaufteilung.
Die Wohnung verfügt über einen zentralen Vorraum, von dem aus nahezu alle Räume getrennt begehbar sind. Ein helles Wohnzimmer, ein großzügiger Essbereich mit moderner Einbauküche (bereits im Mietpreis inkludiert) sowie ein gemütliches Schlafzimmer bieten ein angenehmes Wohnambiente. Das Badezimmer mit Badewanne und Fenster, ein separates WC und ein praktischer Abstellraum runden das durchdachte Raumkonzept ab. Helle, lichtdurchflutete Räume sorgen für ein besonders behagliches Wohngefühl.
Einerseits die großartige Verkehrslage als auch die Nähe zum Linzer Zentrum gewährleisten fußläufig erreichbare Einkaufsmöglichkeiten und eine ideale Anbindung an das öffentliche Verkehrsnetz.
Je nach Verfügbarkeit und Bedarf können Freiparkplätze um € 50,00 inkl. Betriebskosten und USt direkt vor dem Haus angemietet werden.
KONDITIONEN:
- Mietkosten monatl.: € 582,45 inkl. USt
- Betriebskosten-Akonto monatl.: € 196,55 inkl. USt
= GESAMTMIETE monatl.: € 779,00 inkl. USt (inkl. Betriebskosten; exkl. Heizung & Strom)
Die monatlichen Kosten für Heizung und Strom werden je nach Verbrauch direkt vom Versorgungsunternehmen abgerechnet.
Kaution: 3 Bruttomonatsmieten
Hinweis: Die möblierten Bilder im Exposé sind Visualisierungen und wurden mittels KI ergänzt.
Wir freuen uns über Ihre Anfrage!
Entdecken Sie dieses und weitere spannende Immobilienangebote auf unserer Homepage unter www.nextimmobilien.at!
Unverbindliches, freibleibendes Angebot. Informationen nach bestem Wissen und Gewissen von AbgeberIn erhalten - für die Richtigkeit wird keine Haftung übernommen. Mündliche Nebenabreden zum angebotenen Objekt bedürfen zu Ihrer Wirksamkeit der Schriftform. Irrtümer, Druckfehler und Änderungen vorbehalten. Besichtigungen und Beratungen erfolgen kostenlos. Es besteht zwischen der VermittlerIn und der AbgeberIn ein wirtschaftliches Naheverhältnis.
Information zum Datenschutz unter www.nextimmobilien.at/datenschutz
Der Immobilienmakler erklärt, dass er – entgegen dem in der Immobilienwirtschaft üblichen Geschäftsgebrauch des Doppelmaklers – einseitig nur für den Vermieter tätig ist.
Infrastruktur / Entfernungen
Gesundheit
Arzt <500m
Apotheke <500m
Klinik <500m
Krankenhaus <1.500m
Kinder & Schulen
Kindergarten <500m
Schule <500m
Universität <1.500m
Höhere Schule <1.500m
Nahversorgung
Supermarkt <500m
Bäckerei <500m
Einkaufszentrum <1.500m
Sonstige
Bank <500m
Geldautomat <500m
Post <500m
Polizei <500m
Verkehr
Bus <500m
Straßenbahn <500m
Bahnhof <500m
Autobahnanschluss <1.500m
Flughafen <3.000m
Angaben Entfernung Luftlinie / Quelle: OpenStreetMap
Objektdaten
Ausstattung
- Bad mit Badewanne
- Einbauküche
- Zentralheizung
- Fern Befeuerung
Zustand
- HWB
- 159.9 kWh/m² pro Jahr
- Klasse HWB
- E
Flächen
- Anzahl der Zimmer
- 2.5
- Anzahl der Badezimmer
- 1
- Anzahl der sep. WCs
- 1
- Nutzfläche
- 62m²
Kosten
- Gesamtmiete Brutto
- € 779,00
- Miete
- € 529,50
- Betriebskosten
- € 178,68
- Umsatzsteuer
- € 70,82
- Monatl. Gesamtbelastung Brutto
- € 779,00
Verwaltung
- Verfügbar ab
- sofort
Wohnungen zum Mieten in Österreich
Wohnungen zum Mieten in Österreich
Wohnungen zum Mieten in Österreich
Andere Besucher suchen nach...
- Grundstücke kaufen in 3400 Weidlingbach
- Wohnungen kaufen in 4663 Laakirchen
- Häuser in 7471 Rechnitz
- Wohnungen in 2410 Hainburg an der Donau
- Häuser kaufen in 2432 Schwadorf
- Wohnungen kaufen in 3002 Purkersdorf
- Häuser in 3150 Wilhelmsburg
- Wohnungen kaufen in 3470 Engelmannsbrunn
- Grundstücke kaufen im Bezirk Mattersburg
- Grundstücke kaufen im Bezirk Gmunden