Entspanntes Wohnen in ruhiger Grünlage am beliebten Spallerhof! Großzügig geschnittene 2-Raum-Wohnung mit schöner Loggia! Wunderbarer Ausblick!
-
01. Mai 2026
Beschreibung
Linz / Bindermichl-Keferfeld / Zinöggerweg 30 :
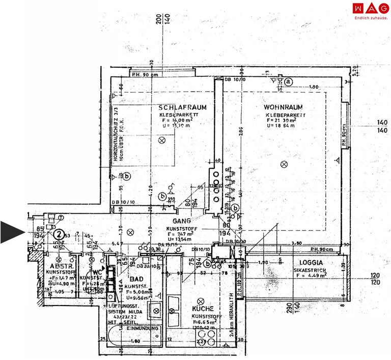
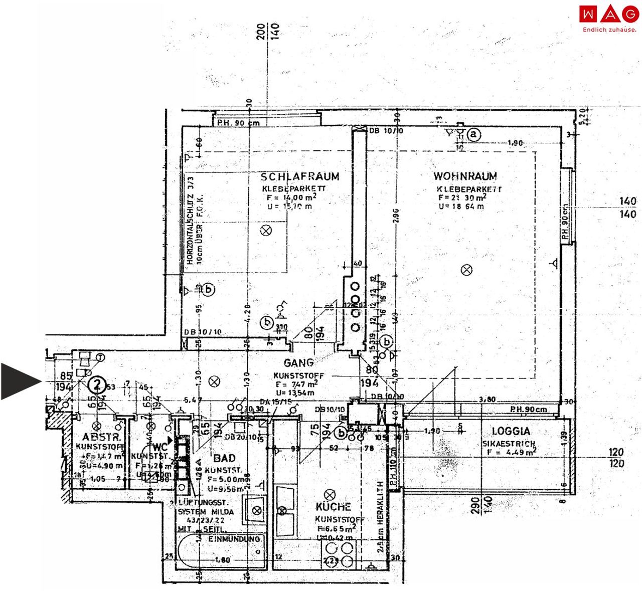
Die gut geschnittene 2-Zimmer-Wohnung mit ca. 61,64 m² überzeugt durch eine funktionale Raumaufteilung, helle Wohnräume und eine gemütliche Loggia mit schönem Ausblick.
Raumaufteilung & Highlights
Raumaufteilung: • Großzügiger Wohnraum mit Zugang zur Loggia • Schlafzimmer • Separate Küche • Badezimmer mit Badewanne • Separates WC • Praktischer Abstellraum • Zentraler Vorraum (Gang)
Highlights • Helle und optimal geschnittene 2-Zimmer-Wohnung • Ca. 61,64 m² Wohnfläche • Gemütliche Loggia mit Ausblick • Lift im Gebäude vorhanden • Gute Raumaufteilung mit separater Küche • Ruhige Wohnlage • Gute Infrastruktur
Lage
Die Wohnung...
Linz / Bindermichl-Keferfeld / Zinöggerweg 30 :
Die gut geschnittene 2-Zimmer-Wohnung mit ca. 61,64 m² überzeugt durch eine funktionale Raumaufteilung, helle Wohnräume und eine gemütliche Loggia mit schönem Ausblick.
Raumaufteilung & Highlights
Raumaufteilung:
• Großzügiger Wohnraum mit Zugang zur Loggia
• Schlafzimmer
• Separate Küche
• Badezimmer mit Badewanne
• Separates WC
• Praktischer Abstellraum
• Zentraler Vorraum (Gang)
Highlights
• Helle und optimal geschnittene 2-Zimmer-Wohnung
• Ca. 61,64 m² Wohnfläche
• Gemütliche Loggia mit Ausblick
• Lift im Gebäude vorhanden
• Gute Raumaufteilung mit separater Küche
• Ruhige Wohnlage
• Gute Infrastruktur
Lage
Die Wohnung befindet sich im Stadtteil Bindermichl-Keferfeld in Linz und bietet eine sehr gute Kombination aus ruhigem Wohnen und urbaner Nähe. Einkaufsmöglichkeiten, öffentliche Verkehrsmittel sowie diverse Freizeit- und Erholungsangebote sind in wenigen Minuten erreichbar. Die Anbindung an das Stadtzentrum sowie an wichtige Verkehrsachsen ist ausgezeichnet.
Mietkonditionen
• Gesamtmiete inkl. Betriebskosten, Heizung, Warmwasser & MwSt.: € 777,26 / Monat
• Kaution: € 1.531,36
• Baukostenzuschuss: € 1.577,68
Verfügbarkeit
Die Wohnung ist ab 01.05.2026 verfügbar.
Sie sind an weiteren Wohnungs- bzw. Gewerbeangeboten interessiert? Ein vielfältiges Angebot finden Sie auf unserer Website.
Zur WAG-Immobiliensuche: SUCHE
Zur WAG-Wohnungsanmeldung: Wohnungsanmeldung
Gerne beraten wir Sie persönlich über unser vielfältiges Angebot, rufen Sie uns einfach an! Und das natürlich ohne Vermittlungsgebühren und provisionsfrei!
Angaben sind ohne Gewähr auf Richtigkeit und Vollständigkeit. Druckfehler vorbehalten.
Infrastruktur / Entfernungen
Gesundheit
Arzt <200m
Apotheke <300m
Klinik <2.450m
Krankenhaus <1.075m
Kinder & Schulen
Kindergarten <425m
Schule <450m
Universität <2.250m
Höhere Schule <3.575m
Nahversorgung
Supermarkt <175m
Bäckerei <300m
Einkaufszentrum <625m
Sonstige
Bank <300m
Geldautomat <300m
Post <275m
Polizei <2.100m
Verkehr
Bus <75m
Straßenbahn <1.375m
Bahnhof <1.550m
Autobahnanschluss <200m
Flughafen <4.125m
Angaben Entfernung Luftlinie / Quelle: OpenStreetMap
Objektdaten
Ausstattung
- Kabel/SAT-TV
- Wasch-/Trockenraum
- Bad mit Badewanne
- Fliesenboden
- Parkettboden
- Zentralheizung
- Fern Befeuerung
- Personen Fahrstuhl
- Massiv Bauweise
Dokumente / Links
Zustand
- Zustand
- GEPFLEGT
- HWB
- 64.3 kWh/m² pro Jahr
- Klasse HWB
- C
- fGEE
- 1.13
- Klasse fGEE
- C
Flächen
- Anzahl der Zimmer
- 2
- Anzahl der Badezimmer
- 1
- Anzahl der sep. WCs
- 1
- Anzahl der Logia
- 1
- Wohnfläche
- 62m²
Kosten
- Gesamtmiete Brutto
- € 712,27
- Kaution
- € 3.109,04
- Miete
- € 497,43
- Betriebskosten
- € 149,92
- Heizkosten
- € 55,19
- Sonstige Kosten
- € 0,19
- Umsatzsteuer
- € 74,53
- Monatl. Gesamtbelastung Brutto
- € 777,26
Verwaltung
- Verfügbar ab
- 01. Mai 2026
Wohnungen zum Mieten in Österreich
Wohnungen zum Mieten in Österreich
Wohnungen zum Mieten in Österreich
Andere Besucher suchen nach...
- Grundstücke kaufen in 3400 Weidlingbach
- Wohnungen kaufen in 4663 Laakirchen
- Häuser in 7471 Rechnitz
- Wohnungen in 2410 Hainburg an der Donau
- Häuser kaufen in 2432 Schwadorf
- Wohnungen kaufen in 3002 Purkersdorf
- Häuser in 3150 Wilhelmsburg
- Wohnungen kaufen in 3470 Engelmannsbrunn
- Grundstücke kaufen im Bezirk Mattersburg
- Grundstücke kaufen im Bezirk Gmunden