Exklusive 2,5-Zimmer-Maisonettewohnung inkl. Dachterrasse in Linzer Bestlage an der Promenade zu vermieten!
-
sofort
Beschreibung
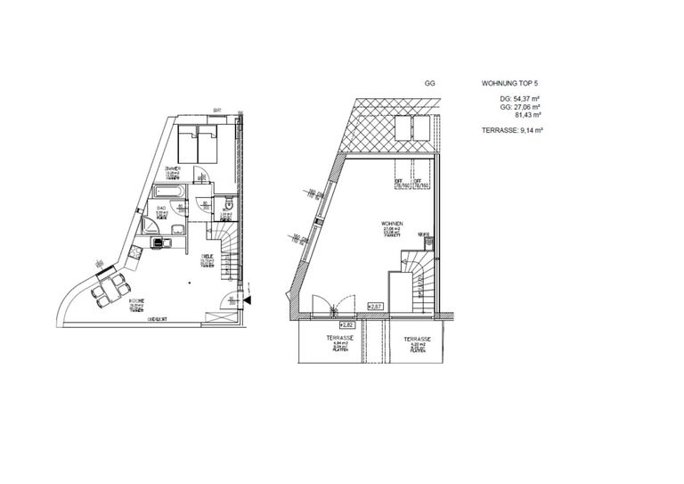
Designer-Dachgeschoß-/Maisonettewohnung mit einer Terrasse an der Promenade! Die ca. 81,43m² große Wohnung befindet sich im 4. sowie 5. Obergeschoß eines zentral gelegenen Wohnhauses in Linz. Die erstklassige Innenstadtlage sowie die optimal durchdachte Raumaufteilung und das exquisite Design in allen Räumen sind nur wenige der vielen Highlights der Wohnung. Auf der großzügigen Terrassen mit ca. 9,14m² sind entspannte Sommerabende garantiert. AUFTEILUNG:
4.OG: - Eingangsbereich/Diele - Schlafzimmer - Küche-/Essbereich - Badezimmer mit Badewanne und Dusche - Separates WC
5.OG: - Wohnbereich - Terrasse Die exklusive und moderne Ausstattung lässt keinerlei Wünsche offen. Neben eleganten Parkettböden im Wohnbereich sowie der luxuriösen Raumhöhe, überzeugt...
Designer-Dachgeschoß-/Maisonettewohnung mit einer Terrasse an der Promenade!
Die ca. 81,43m² große Wohnung befindet sich im 4. sowie 5. Obergeschoß eines zentral gelegenen Wohnhauses in Linz. Die erstklassige Innenstadtlage sowie die optimal durchdachte Raumaufteilung und das exquisite Design in allen Räumen sind nur wenige der vielen Highlights der Wohnung. Auf der großzügigen Terrassen mit ca. 9,14m² sind entspannte Sommerabende garantiert.
AUFTEILUNG:
4.OG:
- Eingangsbereich/Diele
- Schlafzimmer
- Küche-/Essbereich
- Badezimmer mit Badewanne und Dusche
- Separates WC
5.OG:
- Wohnbereich
- Terrasse
Die exklusive und moderne Ausstattung lässt keinerlei Wünsche offen. Neben eleganten Parkettböden im Wohnbereich sowie der luxuriösen Raumhöhe, überzeugt die Wohnung mit einer modernen, vollausgestatteten Einbauküche. Zusätzlich dürfen Sie sich über ein Kellerabteil und bequemem Zugang zur Tiefgarage freuen. Hier steht Ihnen auch ein Fahrradraum zur Verfügung.
In der hauseigenen Tiefgarage kann zudem ein Parkplatz um € 186,00 brutto monatlich angemietet werden.
Kaution: 3 Bruttomonatsmieten
Die zentrumsnahe Lage bietet hervorragende Freizeit- als auch Einkaufsmöglichkeiten, welche fußläufig erreichbar sind. Des Weiteren garantiert die Nähe zur Linzer Landstraße die Erreichbarkeit von Bus- und Straßenbahnhaltestellen in wenigen Gehminuten.
KONDITIONEN:
- Mietkosten (inkl. Küche und Klimaanlage) monatl.: € 1.319,84 inkl. USt
- Betriebskosten-Akonto monatl.: € 176,00 inkl. USt
= GESAMTMIETE monatl.: € 1.495,84 inkl. USt (inkl. Betriebskosten, exkl. Parkplatz, Strom- und Heizkosten)
Wir freuen uns auf Ihre Anfrage!
Entdecken Sie dieses und weitere spannende Immobilienangebote auf unserer Homepage unter www.nextimmobilien.at!
Unverbindliches, freibleibendes Angebot. Informationen nach bestem Wissen und Gewissen von AbgeberIn erhalten - für die Richtigkeit wird keine Haftung übernommen. Mündliche Nebenabreden zum angebotenen Objekt bedürfen zu Ihrer Wirksamkeit der Schriftform. Irrtümer, Druckfehler und Änderungen vorbehalten. Besichtigungen und Beratungen erfolgen kostenlos. Es besteht zwischen der VermittlerIn und der AbgeberIn kein wirtschaftliches Naheverhältnis.
Information zum Datenschutz unter www.nextimmobilien.at/datenschutz
Der Immobilienmakler erklärt, dass er – entgegen dem in der Immobilienwirtschaft üblichen Geschäftsgebrauch des Doppelmaklers – einseitig nur für den Vermieter tätig ist.
Infrastruktur / Entfernungen
Gesundheit
Arzt <500m
Apotheke <500m
Klinik <500m
Krankenhaus <500m
Kinder & Schulen
Kindergarten <1.000m
Schule <500m
Universität <500m
Höhere Schule <1.000m
Nahversorgung
Supermarkt <500m
Bäckerei <500m
Einkaufszentrum <500m
Sonstige
Bank <500m
Geldautomat <500m
Post <500m
Polizei <500m
Verkehr
Bus <500m
Straßenbahn <500m
Bahnhof <1.500m
Autobahnanschluss <1.500m
Flughafen <4.000m
Angaben Entfernung Luftlinie / Quelle: OpenStreetMap
Objektdaten
Zustand
- HWB
- 31 kWh/m² pro Jahr
- Klasse HWB
- B
Flächen
- Nutzfläche
- 81m²
Kosten
- Gesamtmiete Brutto
- € 1.495,84
- Miete
- € 1.199,85
- Betriebskosten
- € 160,00
- Umsatzsteuer
- € 135,99
- Monatl. Gesamtbelastung Brutto
- € 1.495,84
Verwaltung
- Verfügbar ab
- sofort
- Mietdauer
- bis 5,0 Jahre
Wohnungen zum Mieten in Österreich
Wohnungen zum Mieten in Österreich
Wohnungen zum Mieten in Österreich
Andere Besucher suchen nach...
- Grundstücke kaufen in 3400 Weidlingbach
- Wohnungen kaufen in 4663 Laakirchen
- Häuser in 7471 Rechnitz
- Wohnungen in 2410 Hainburg an der Donau
- Häuser kaufen in 2432 Schwadorf
- Wohnungen kaufen in 3002 Purkersdorf
- Häuser in 3150 Wilhelmsburg
- Wohnungen kaufen in 3470 Engelmannsbrunn
- Grundstücke kaufen im Bezirk Mattersburg
- Grundstücke kaufen im Bezirk Gmunden