1-Raum-Wohnung mit Loggia & Lift – Weißdornweg, 4030 Linz - ACHTUNG Mietvertrag wird auf 10 Jahre befristet abgeschlossen!
-
Ab sofort
Beschreibung
Linz / Wegscheid / Weißdornweg :
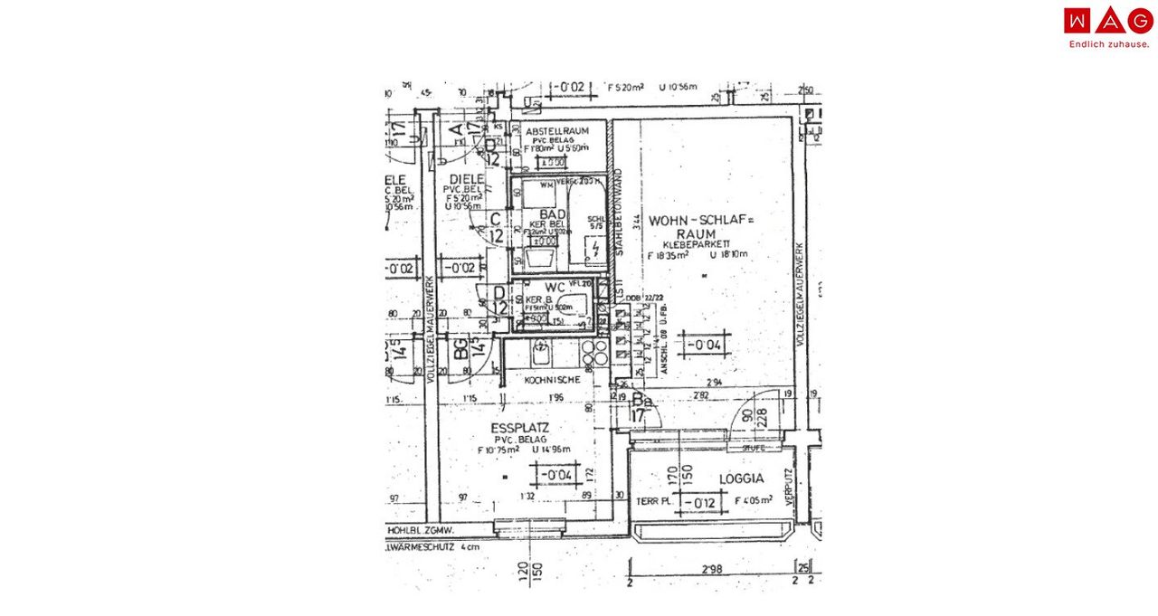
Diese helle und gut geschnittene 1-Zimmer-Wohnung im 3. Stock überzeugt durch ihre praktische Raumaufteilung, die ruhige Lage und eine großzügige Loggia mit Blick ins Grüne. Mit Personenlift, Parkplatz ist dieses Objekt ideal für Singles, Berufseinsteiger: innen, Studierende oder Pendler.
Wohn-Highlights
-
44,82 m² Wohnfläche
-
Großzügiger Wohn-Schlafraum
-
Separate Kochnische
-
Praktischer Essbereich
-
Badezimmer mit Badewanne
-
Separates WC
-
Abstellraum in der Wohnung
-
Loggia (ca. 4 m²) – ideal für ruhige Momente im Freien
-
3. Stock mit Lift –...
Linz / Wegscheid / Weißdornweg :
Diese helle und gut geschnittene 1-Zimmer-Wohnung im 3. Stock überzeugt durch ihre praktische Raumaufteilung, die ruhige Lage und eine großzügige Loggia mit Blick ins Grüne.
Mit Personenlift, Parkplatz ist dieses Objekt ideal für Singles, Berufseinsteiger: innen, Studierende oder Pendler.
Wohn-Highlights
44,82 m² Wohnfläche
Großzügiger Wohn-Schlafraum
Separate Kochnische
Praktischer Essbereich
Badezimmer mit Badewanne
Separates WC
Abstellraum in der Wohnung
Loggia (ca. 4 m²) – ideal für ruhige Momente im Freien
3. Stock mit Lift – bequem erreichbar
Ausstattung
Parkett- und Fliesenböden
Kunststofffenster
Helle Räume durch gute Ausrichtung
Loggia mit Grünblick
Heizung bereits in der Miete inkludiert
Gemeinschaftliche Fahrrad- & Müllräume
Lage & Infrastruktur – 4030 Linz
Der Weißdornweg liegt in einer Wohnzone im Linzer Süden (4030).
Hier verbindet sich Natur mit bester Infrastruktur:
Öffentliche Verkehrsmittel in Fußnähe
Einkaufsmöglichkeiten, Apotheke & Ärzte leicht erreichbar
Schnelle Anbindung zur A7 und nach Linz Zentrum
Naherholungsgebiete, Radwege & Spazierstrecken direkt ums Eck
Ideal für alle, die ruhig wohnen, aber städtisch angebunden sein möchten.
Kostenübersicht
Miete Betriebskosten, Heizung und MwSt.: € 416,09
Parkplatz: € 22,44 brutto / Monat
Kaution: € 1.709,52
Sie sind an weiteren Wohnungs- bzw. Gewerbeangeboten interessiert? Ein vielfältiges Angebot finden Sie auf unserer Website.
Zur WAG-Immobiliensuche: SUCHE
Zur WAG-Wohnungsanmeldung: Wohnungsanmeldung
Gerne beraten wir Sie persönlich über unser vielfältiges Angebot, rufen Sie uns einfach an! Und das natürlich ohne Vermittlungsgebühren und provisionsfrei!
Angaben sind ohne Gewähr auf Richtigkeit und Vollständigkeit. Druckfehler vorbehalten.
Infrastruktur / Entfernungen
Gesundheit
Arzt <625m
Apotheke <600m
Klinik <2.250m
Krankenhaus <3.800m
Kinder & Schulen
Kindergarten <600m
Schule <500m
Universität <2.425m
Höhere Schule <6.100m
Nahversorgung
Supermarkt <450m
Bäckerei <750m
Einkaufszentrum <575m
Sonstige
Bank <675m
Geldautomat <675m
Post <725m
Polizei <725m
Verkehr
Bus <375m
Straßenbahn <2.025m
Bahnhof <175m
Autobahnanschluss <1.550m
Flughafen <6.575m
Angaben Entfernung Luftlinie / Quelle: OpenStreetMap
Objektdaten
Ausstattung
- Kabel/SAT-TV
- Wasch-/Trockenraum
- Bad mit Badewanne
- Zentralheizung
- Fern Befeuerung
- Personen Fahrstuhl
- Massiv Bauweise
Dokumente / Links
Zustand
- Zustand
- GEPFLEGT
- HWB
- 71.8 kWh/m² pro Jahr
- Klasse HWB
- C
- fGEE
- 2.51
- Klasse fGEE
- E
Flächen
- Anzahl der Zimmer
- 1
- Anzahl der Badezimmer
- 1
- Anzahl der sep. WCs
- 1
- Anzahl der Logia
- 1
- Wohnfläche
- 45m²
Kosten
- Kaution
- € 1.709,52
Verwaltung
- Verfügbar ab
- Ab sofort
Wohnungen zum Mieten in Österreich
Wohnungen zum Mieten in Österreich
Wohnungen zum Mieten in Österreich
Andere Besucher suchen nach...
- Grundstücke kaufen in 3400 Weidlingbach
- Wohnungen kaufen in 4663 Laakirchen
- Häuser in 7471 Rechnitz
- Wohnungen in 2410 Hainburg an der Donau
- Häuser kaufen in 2432 Schwadorf
- Wohnungen kaufen in 3002 Purkersdorf
- Häuser in 3150 Wilhelmsburg
- Wohnungen kaufen in 3470 Engelmannsbrunn
- Grundstücke kaufen im Bezirk Mattersburg
- Grundstücke kaufen im Bezirk Gmunden