Ebelsberg: Großzügige 3-Zimmer-Dachgeschosswohnung mit Balkon! Verfügbar ab 01.02.2026!
-
01.02.2026
Beschreibung
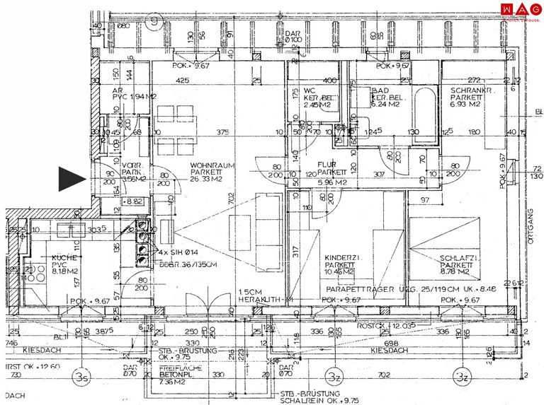
Linz / Ebelsberg / Unterwachtberg / Wambach / Beuttlerweg 1: In ruhiger Wohnlage von Linz, Beuttlerweg 1, gelangt eine helle und großzügige 3-Zimmer-Wohnung im Dachgeschoss zur Vermietung. Die Wohnung bietet mit 80,83 m² Wohnfläche sowie einem Balkon ein komfortables Zuhause für Paare oder Familien.
Raumaufteilung & Highlights
Raumaufteilung Die großzügige Dachgeschosswohnung bietet eine durchdachte Raumaufteilung auf 80,83 m² Wohnfläche:
- Vorraum: 3,56 m²
- Abstellraum: 1,94 m²
- Wohnzimmer: 26,33 m²
- Küche: 8,18 m²
- Balkon: 7,36 m²
- WC: 2,45 m² (separat)
- Badezimmer: 6,24 m²
- Flur: 5,96 m²
- Kinderzimmer: 10,46 m²
- Schlafzimmer: 8,78 m²
Highlights
- Großzügige Dachgeschosswohnung
- 80,83 m² Wohnfläche
- Helles,...
Linz / Ebelsberg / Unterwachtberg / Wambach / Beuttlerweg 1:
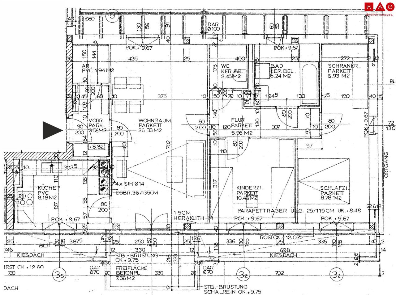
In ruhiger Wohnlage von Linz, Beuttlerweg 1, gelangt eine helle und großzügige 3-Zimmer-Wohnung im Dachgeschoss zur Vermietung. Die Wohnung bietet mit 80,83 m² Wohnfläche sowie einem Balkon ein komfortables Zuhause für Paare oder Familien.
Raumaufteilung & Highlights
Raumaufteilung
Die großzügige Dachgeschosswohnung bietet eine durchdachte Raumaufteilung auf 80,83 m² Wohnfläche:
- Vorraum: 3,56 m²
- Abstellraum: 1,94 m²
- Wohnzimmer: 26,33 m²
- Küche: 8,18 m²
- Balkon: 7,36 m²
- WC: 2,45 m² (separat)
- Badezimmer: 6,24 m²
- Flur: 5,96 m²
- Kinderzimmer: 10,46 m²
- Schlafzimmer: 8,78 m²
Highlights
- Großzügige Dachgeschosswohnung
- 80,83 m² Wohnfläche
- Helles, geräumiges Wohnzimmer
- Balkon mit 7,36 m²
- Separates WC
- Praktischer Abstellraum
- Ruhige Wohnlage
- Ideal für Paare oder Familien
Mietkonditionen
- Miete: € 885,90 pro Monat
(inkl. Betriebskosten und MwSt.; exkl. Strom, Warmwasser und Heizung) - Kaution / Baukostenzuschuss: € 3.543,60
Verfügbarkeit
Die Wohnung steht 01.02.2026 zur Verfügung
Sie sind an weiteren Wohnungs- bzw. Gewerbeangeboten interessiert? Ein vielfältiges Angebot finden Sie auf unserer Website.
Zur WAG-Immobiliensuche: SUCHE
Zur WAG-Wohnungsanmeldung: Wohnungsanmeldung
Gerne beraten wir Sie persönlich über unser vielfältiges Angebot, rufen Sie uns einfach an! Und das natürlich ohne Vermittlungsgebühren und provisionsfrei!
Angaben sind ohne Gewähr auf Richtigkeit und Vollständigkeit. Druckfehler vorbehalten.
Infrastruktur / Entfernungen
Gesundheit
Arzt <750m
Apotheke <750m
Krankenhaus <4.950m
Klinik <3.600m
Kinder & Schulen
Kindergarten <425m
Schule <725m
Universität <5.375m
Höhere Schule <7.400m
Nahversorgung
Supermarkt <650m
Bäckerei <775m
Einkaufszentrum <3.300m
Sonstige
Bank <725m
Geldautomat <1.575m
Post <1.900m
Polizei <2.000m
Verkehr
Bus <100m
Straßenbahn <425m
Bahnhof <2.275m
Autobahnanschluss <1.900m
Flughafen <6.525m
Angaben Entfernung Luftlinie / Quelle: OpenStreetMap
Objektdaten
Ausstattung
- Kabel/SAT-TV
- Wasch-/Trockenraum
- Bad mit Badewanne
- Bad mit Fenster
- Fliesenboden
- Parkettboden
- Zentralheizung
- Fern Befeuerung
- Personen Fahrstuhl
- Ausrichtung Balkon/Terrasse - Ost
- Massiv Bauweise
Dokumente / Links
Zustand
- HWB
- 66.26 kWh/m² pro Jahr
- Klasse HWB
- C
- fGEE
- 1.14
- Klasse fGEE
- C
Flächen
- Anzahl der Zimmer
- 3
- Anzahl der Badezimmer
- 1
- Anzahl der sep. WCs
- 1
- Anzahl der Balkone
- 1
- Wohnfläche
- 81m²
Kosten
- Gesamtmiete Brutto
- € 885,90
- Kaution
- € 3.543,60
- Miete
- € 566,78
- Betriebskosten
- € 238,44
- Sonstige Kosten
- € 0,16
- Umsatzsteuer
- € 80,52
- Monatl. Gesamtbelastung Brutto
- € 885,90
Verwaltung
- Verfügbar ab
- 01.02.2026, ab 01. 02. 2026
- Ferienimmobilie
- Ja
Wohnungen zum Mieten in Österreich
Wohnungen zum Mieten in Österreich
Wohnungen zum Mieten in Österreich
Andere Besucher suchen nach...
- Grundstücke kaufen in 3400 Weidlingbach
- Wohnungen kaufen in 4663 Laakirchen
- Häuser in 7471 Rechnitz
- Wohnungen in 2410 Hainburg an der Donau
- Häuser kaufen in 2432 Schwadorf
- Wohnungen kaufen in 3002 Purkersdorf
- Häuser in 3150 Wilhelmsburg
- Wohnungen kaufen in 3470 Engelmannsbrunn
- Grundstücke kaufen im Bezirk Mattersburg
- Grundstücke kaufen im Bezirk Gmunden