Entspanntes Wohnerlebnis am grünen Stadtrand von Linz! Profitieren Sie von einer ausgezeichneten Infrastruktur und vielen Freizeitmöglichkeiten!
-
Sofort
Beschreibung
Linz/ Ebelsberg / Ennsfeld / Erich-Fried-Weg 14 :
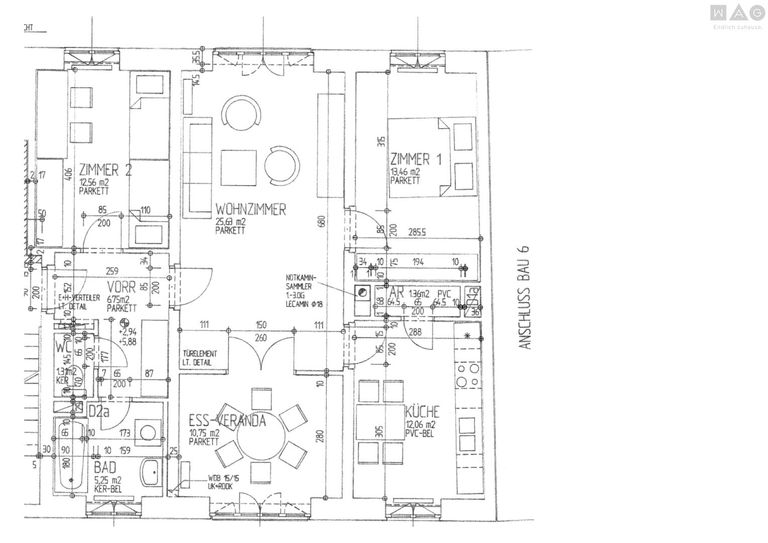
Die helle 3-Zimmer-Wohnung mit 89 m² überzeugt durch eine durchdachte Raumaufteilung, einen großzügigen Wohnbereich und einen ruhigen Balkon mit Blick ins Grüne.
Raumaufteilung & Highlights
Raumaufteilung:
- Großzügiges Wohnzimmer mit Zugang zum Balkon
- Zimmer 1 (Schlaf-/Kinderzimmer)
- Zimmer 2 (Büro/Schlafzimmer)
- Separate Küche mit angrenzender Essveranda
- Badezimmer mit Badewanne
- Separates WC
- Praktischer Abstellraum
- Zentraler Vorraum
Highlights
- Helle und optimal geschnittene 3-Zimmer-Wohnung
- Großzügige 89,13 m² Wohnfläche
- Balkon mit Blick ins Grüne
- Tiefgarage
- Lift vorhanden
- Ruhige und familienfreundliche Lage
- Sofort beziehbar
Lage
Die Wohnung befindet sich in einer ruhigen...
Linz/ Ebelsberg / Ennsfeld / Erich-Fried-Weg 14 :
Die helle 3-Zimmer-Wohnung mit 89 m² überzeugt durch eine durchdachte Raumaufteilung, einen großzügigen Wohnbereich und einen ruhigen Balkon mit Blick ins Grüne.
Raumaufteilung & Highlights
Raumaufteilung:
- Großzügiges Wohnzimmer mit Zugang zum Balkon
- Zimmer 1 (Schlaf-/Kinderzimmer)
- Zimmer 2 (Büro/Schlafzimmer)
- Separate Küche mit angrenzender Essveranda
- Badezimmer mit Badewanne
- Separates WC
- Praktischer Abstellraum
- Zentraler Vorraum
Highlights
- Helle und optimal geschnittene 3-Zimmer-Wohnung
- Großzügige 89,13 m² Wohnfläche
- Balkon mit Blick ins Grüne
- Tiefgarage
- Lift vorhanden
- Ruhige und familienfreundliche Lage
- Sofort beziehbar
Lage
Die Wohnung befindet sich in einer ruhigen und attraktiven Wohngegend im Süden von Linz (Pichling). Der Erich-Fried-Weg zeichnet sich durch eine angenehme Nachbarschaft, viel Grünraum und eine hervorragende Infrastruktur aus. Öffentliche Verkehrsmittel, Einkaufsmöglichkeiten, Schulen, Naherholungsgebiete sowie der beliebte Weikerlsee sind in wenigen Minuten erreichbar. Durch die gute Verkehrsanbindung gelangt man rasch ins Linzer Stadtzentrum sowie auf die Autobahn.
Mietkonditionen
- Gesamtmiete inkl. Betriebskosten & USt.: € 958,19 / Monat
- Tiefgaragenplatz: € 76,39 / Monat
- Kaution: € 4.138,32
Verfügbarkeit
Die Wohnung steht ab sofort zur Verfügung.
Sie sind an weiteren Wohnungs- bzw. Gewerbeangeboten interessiert? Ein vielfältiges Angebot finden Sie auf unserer Website.
Zur WAG-Immobiliensuche: SUCHE
Zur WAG-Wohnungsanmeldung: Wohnungsanmeldung
Gerne beraten wir Sie persönlich über unser vielfältiges Angebot, rufen Sie uns einfach an! Und das natürlich ohne Vermittlungsgebühren und provisionsfrei!
Angaben sind ohne Gewähr auf Richtigkeit und Vollständigkeit. Druckfehler vorbehalten.
Infrastruktur / Entfernungen
Gesundheit
Arzt <300m
Apotheke <275m
Krankenhaus <5.075m
Klinik <3.100m
Kinder & Schulen
Kindergarten <350m
Schule <175m
Universität <5.900m
Höhere Schule <7.425m
Nahversorgung
Supermarkt <150m
Bäckerei <525m
Einkaufszentrum <3.875m
Sonstige
Bank <475m
Geldautomat <2.000m
Post <2.025m
Polizei <2.050m
Verkehr
Bus <125m
Straßenbahn <175m
Bahnhof <1.475m
Autobahnanschluss <2.725m
Flughafen <6.175m
Angaben Entfernung Luftlinie / Quelle: OpenStreetMap
Objektdaten
Ausstattung
- Kabel/SAT-TV
- Wasch-/Trockenraum
- Fahrradraum
- Bad mit Badewanne
- Bad mit Fenster
- Fliesenboden
- Parkettboden
- Zentralheizung
- Fern Befeuerung
- Personen Fahrstuhl
- Massiv Bauweise
Dokumente / Links
Zustand
- Zustand
- GEPFLEGT
- HWB
- 54 kWh/m² pro Jahr
- Klasse HWB
- C
Flächen
- Anzahl der Zimmer
- 3.5
- Anzahl der Badezimmer
- 1
- Anzahl der sep. WCs
- 1
- Wohnfläche
- 89m²
Kosten
- Gesamtmiete Brutto
- € 958,19
- Kaution
- € 4.138,32
- Miete
- € 587,20
- Betriebskosten
- € 283,88
- Umsatzsteuer
- € 87,11
- Monatl. Gesamtbelastung Brutto
- € 958,19
Verwaltung
- Verfügbar ab
- Sofort
Wohnungen zum Mieten in Österreich
Wohnungen zum Mieten in Österreich
Wohnungen zum Mieten in Österreich
Andere Besucher suchen nach...
- Grundstücke kaufen in 3400 Weidlingbach
- Wohnungen kaufen in 4663 Laakirchen
- Häuser in 7471 Rechnitz
- Wohnungen in 2410 Hainburg an der Donau
- Häuser kaufen in 2432 Schwadorf
- Wohnungen kaufen in 3002 Purkersdorf
- Häuser in 3150 Wilhelmsburg
- Wohnungen kaufen in 3470 Engelmannsbrunn
- Grundstücke kaufen im Bezirk Mattersburg
- Grundstücke kaufen im Bezirk Gmunden