GEMÜTLICHE 2 ZIMMER-WOHNUNG IN LINZ
-
01.02.2026
Beschreibung
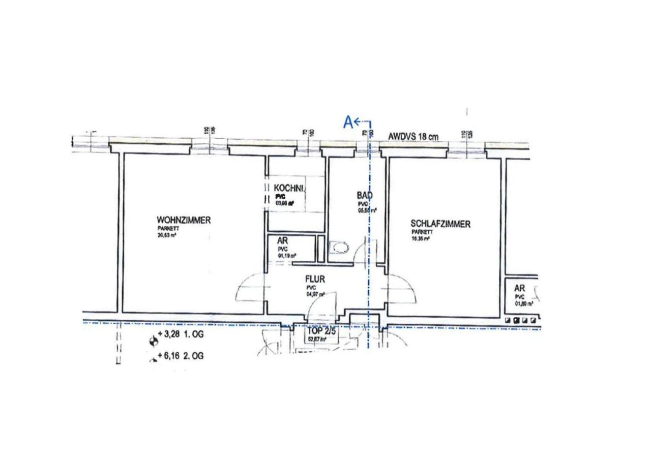
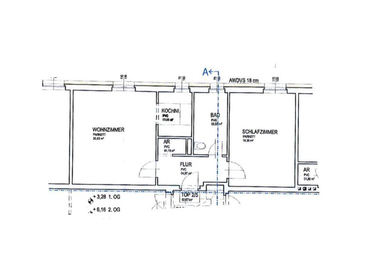
Diese 2-Zimmer-Wohnung in der zweiten Etage überzeugt nicht nur durch ihre durchdachte Raumaufteilung, sondern auch durch ihre optimale Lage von Linz.
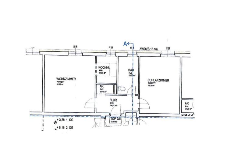
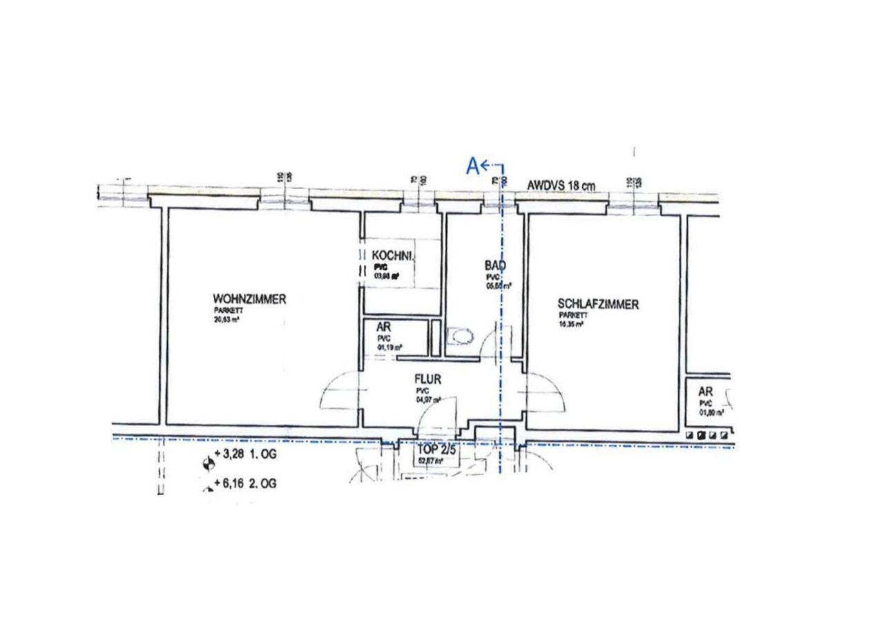
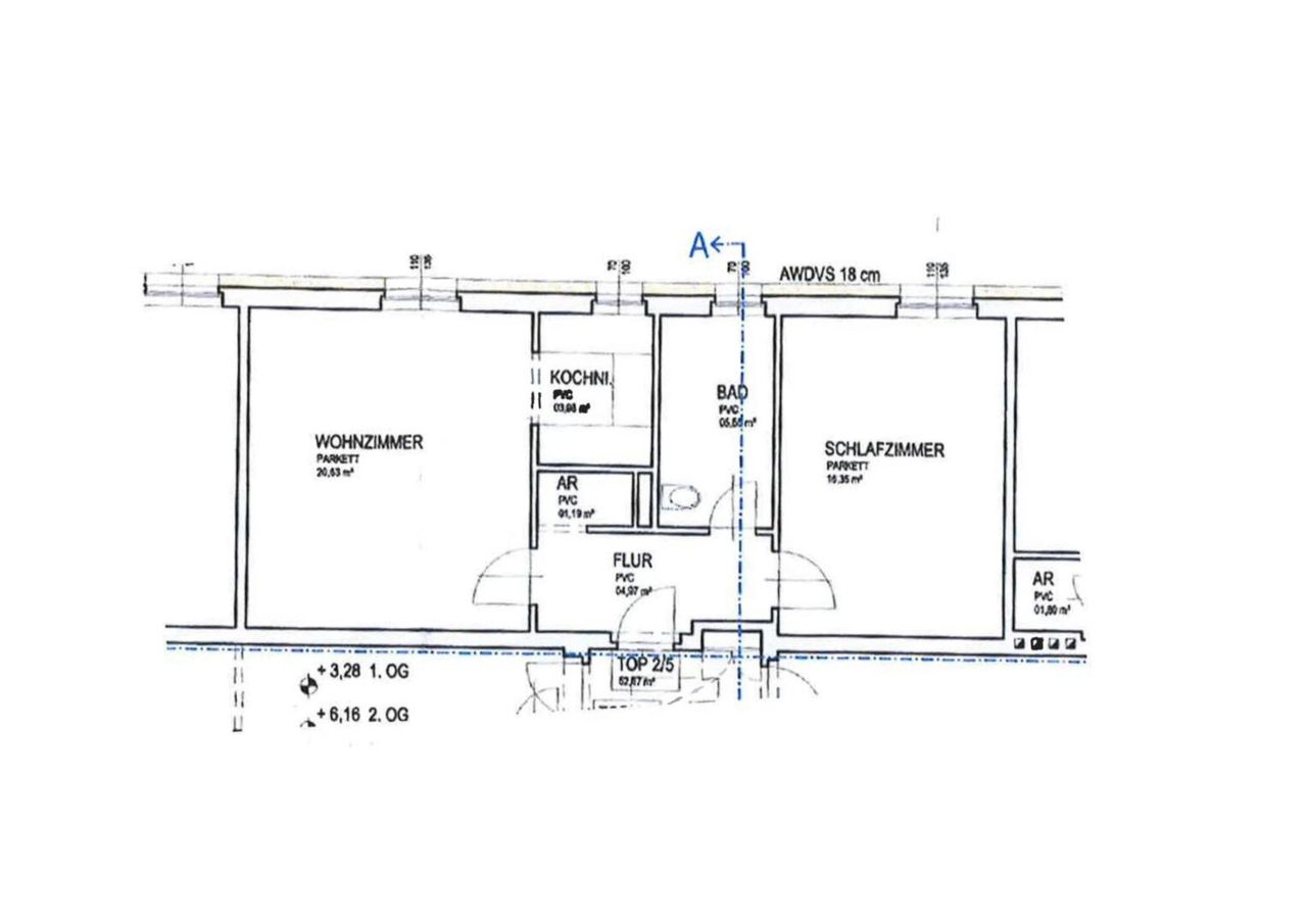
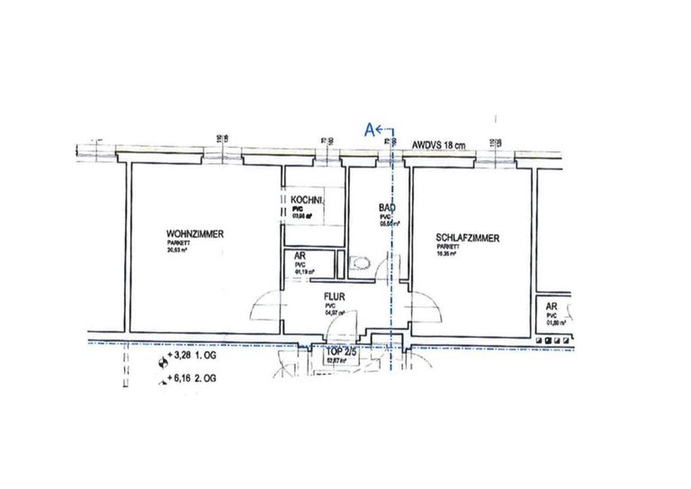
Mit einer Wohnfläche von 52,67 m² bietet sie Singles und Paaren ausreichend Platz, um sich wohlzufühlen.
Die Wohnung empfängt Sie mit einem hellen und freundlichen Ambiente. Hier können Sie Ihre Abende gemütlich verbringen und Ihre Gäste willkommen heißen. Das Wohnzimmer bietet genügend Platz für eine bequeme Couch und einen Essbereich, während das separate Schlafzimmer eine ruhige Rückzugsmöglichkeit darstellt.
Das Badezimmer ist mit einer Badewanne ausgestattet – perfekt, um nach einem langen Tag zu entspannen.
...Diese 2-Zimmer-Wohnung in der zweiten Etage überzeugt nicht nur durch ihre durchdachte Raumaufteilung, sondern auch durch ihre optimale Lage von Linz.
Mit einer Wohnfläche von 52,67 m² bietet sie Singles und Paaren ausreichend Platz, um sich wohlzufühlen.
Die Wohnung empfängt Sie mit einem hellen und freundlichen Ambiente. Hier können Sie Ihre Abende gemütlich verbringen und Ihre Gäste willkommen heißen. Das Wohnzimmer bietet genügend Platz für eine bequeme Couch und einen Essbereich, während das separate Schlafzimmer eine ruhige Rückzugsmöglichkeit darstellt.
Das Badezimmer ist mit einer Badewanne ausgestattet – perfekt, um nach einem langen Tag zu entspannen.
Lassen Sie sich diese Gelegenheit nicht entgehen! Vereinbaren Sie noch heute einen Besichtigungstermin und entdecken Sie Ihr zukünftiges Zuhause in Linz. Wir freuen uns, Sie bald bei uns begrüßen zu dürfen!
Wir weisen darauf hin, dass zwischen dem Vermittler und dem zu vermittelnden Dritten ein familiäres oder wirtschaftliches Naheverhältnis besteht.
Der Immobilienmakler erklärt, dass er – entgegen dem in der Immobilienwirtschaft üblichen Geschäftsgebrauch des Doppelmaklers – einseitig nur für den Vermieter tätig ist.
Infrastruktur / Entfernungen
Gesundheit
Arzt <75m
Apotheke <50m
Krankenhaus <4.550m
Klinik <2.850m
Kinder & Schulen
Schule <475m
Kindergarten <300m
Universität <5.350m
Höhere Schule <6.950m
Nahversorgung
Supermarkt <225m
Bäckerei <50m
Einkaufszentrum <3.350m
Sonstige
Bank <25m
Geldautomat <1.475m
Post <1.475m
Polizei <1.525m
Verkehr
Bus <50m
Straßenbahn <150m
Bahnhof <1.600m
Autobahnanschluss <2.300m
Flughafen <5.850m
Angaben Entfernung Luftlinie / Quelle: OpenStreetMap
Objektdaten
Ausstattung
- Bad mit Badewanne
Flächen
- Anzahl der Zimmer
- 2
- Anzahl der Badezimmer
- 1
- Anzahl der sep. WCs
- 1
- Wohnfläche
- 53m²
Kosten
- Gesamtmiete Brutto
- € 675,24
- Miete
- € 512,78
- Betriebskosten
- € 101,07
- Umsatzsteuer
- € 61,39
- Monatl. Gesamtbelastung Brutto
- € 675,24
Verwaltung
- Verfügbar ab
- 01.02.2026, ab 01. 02. 2026
- Mietdauer
- bis 5,0 Jahre
Wohnungen zum Mieten in Österreich
Wohnungen zum Mieten in Österreich
Wohnungen zum Mieten in Österreich
Andere Besucher suchen nach...
- Grundstücke kaufen in 3400 Weidlingbach
- Wohnungen kaufen in 4663 Laakirchen
- Häuser in 7471 Rechnitz
- Wohnungen in 2410 Hainburg an der Donau
- Häuser kaufen in 2432 Schwadorf
- Wohnungen kaufen in 3002 Purkersdorf
- Häuser in 3150 Wilhelmsburg
- Wohnungen kaufen in 3470 Engelmannsbrunn
- Grundstücke kaufen im Bezirk Mattersburg
- Grundstücke kaufen im Bezirk Gmunden