Außergewöhnliches, nahezu vollmöbliertes Einfamilienhaus mit Pool und Gartenidylle in Bestlage von Urfahr zu vermieten!
-
sofort
Beschreibung
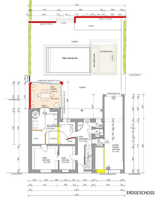
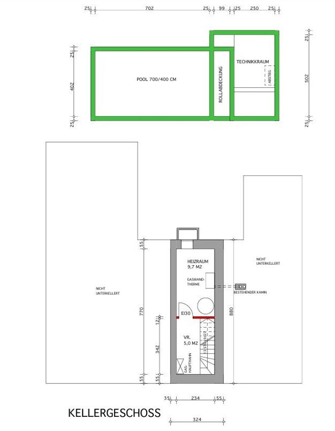
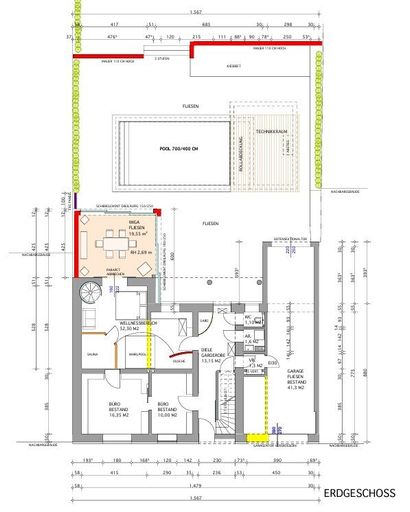
Großzügiges, exklusiv möbliertes Einfamilienhaus mit Pool, Wintergarten und hochwertiger Ausstattung unweit vom Shoppingcenter "LentiaCity" zu vermieten! Zur Vermietung gelangt ein äußerst großzügiges und hochwertig ausgestattetes Einfamilienhaus in urfahraner Bestlage. Das Haus erstreckt sich auf insgesamt 3 Geschosse (exkl. teilunterkellertem Bereich) und bietet eine Wohnfläche von ca. 351,90m² (inklusive Garage und Keller/Technikraum ca. 407,9m²) auf einem ca. 698m² großen Grundstück.
Die Liegenschaft wurde im Jahr 2000 generalsaniert und laufend modernisiert und befindet sich in einem guten, gepflegten Zustand. Das Haus ist sofort beziehbar und wurde zuletzt umfassend gewartet. Beheizt wird das Haus mittels Gasheizung (Radiatoren, teilweise Fußbodenheizung). Zusätzlich verfügt das Objekt...
Großzügiges, exklusiv möbliertes Einfamilienhaus mit Pool, Wintergarten und hochwertiger Ausstattung unweit vom Shoppingcenter "LentiaCity" zu vermieten!
Zur Vermietung gelangt ein äußerst großzügiges und hochwertig ausgestattetes Einfamilienhaus in urfahraner Bestlage. Das Haus erstreckt sich auf insgesamt 3 Geschosse (exkl. teilunterkellertem Bereich) und bietet eine Wohnfläche von ca. 351,90m² (inklusive Garage und Keller/Technikraum ca. 407,9m²) auf einem ca. 698m² großen Grundstück.
Die Liegenschaft wurde im Jahr 2000 generalsaniert und laufend modernisiert und befindet sich in einem guten, gepflegten Zustand. Das Haus ist sofort beziehbar und wurde zuletzt umfassend gewartet.
Beheizt wird das Haus mittels Gasheizung (Radiatoren, teilweise Fußbodenheizung). Zusätzlich verfügt das Objekt über eine teilweise Klimatisierung, eine moderne Alarm- und Überwachungsanlage sowie zahlreiche technische und komfortable Extras.
RAUMAUFTEILUNG
Erdgeschoß
- Vorraum
- Wellnessbereich mit Sauna, Dusche und Wasserbett
- Büro 1
- Büro 2
- WC
- Wirtschaftsraum
- Garage
1.Obergeschoß
- Vorraum
- Schlafzimmer
- begehbarer Kleiderschrank
- Badezimmer mit Dusche, Badewanne, Doppelwaschbecken und separatem WC + Fitnessbereich mit TV
- Wohnzimmer mit Essbereich und hochwertiger Einbauküche
Dachgeschoß
- Vorraum
- Schlafzimmer 1
- Schlafzimmer 2
- WC mit Waschbecken und Waschmaschine
- Bad mit Dusche
- Teeküche
- Wirtschaftsraum mit Waschmaschinenanschluss im Erdgeschoss
- Stüberl mit Essbereich, Couch und Bar
Zusätzlich stehen ein Wintergarten im Erdgeschoss (ca. 20m²) und eine Terrasse im 1. Obergeschoss (ca. 15m²) zur Verfügung.
HIGHLIGHTS
- beheizter Pool
- Outdoorküche
- Grünfläche mit hochwertiger Bepflanzung
- moderne und voll ausgestattete Einbauküche
- Klimageräte
- Alarmanlage & Überwachungskameras
- Gegensprechanlage mit Video
- Kamin
- Zentrale Staubsaugeranlage
- Integrierte Musikanlage im gesamten Haus
- Elektrische und mechanische Beschattung inkl. Markisen
- 2 Garagenplätze
- Kamin und Designerbrunnen im 1. Obergeschoss
- Großzügiger Wohnbereich, Wintergarten & Loggia mit Südwest-Ausrichtung
Die Liegenschaft befindet sich in ruhiger und äußerst gefragter Wohnlage im Linzer Stadtteil Urfahr, unweit des Lentia Einkaufszentrums. Diese Lage vereint urbanen Komfort mit hoher Wohnqualität. Sämtliche Einrichtungen des täglichen Bedarfs, Einkaufsmöglichkeiten, Restaurants, Cafés sowie Ärzte und Apotheken sind in wenigen Minuten erreichbar.
Die öffentliche Verkehrsanbindung ist hervorragend: Straßenbahn- und Buslinien befinden sich in fußläufiger Nähe und gewährleisten eine schnelle Verbindung in die Linzer Innenstadt sowie zu umliegenden Stadtteilen. Auch Schulen, Kindergärten, Freizeit- und Erholungsräume entlang der Donau sowie zahlreiche Spazier- und Radwege sind rasch erreichbar.
KONDITIONEN:
- Hauptmietzins monatl. brutto: € 2.355,80 inkl. USt
- Betriebskostenpauschale monatl. brutto: € 389,40 inkl. Ust, Wasser/Abwasser, Versicherung, Müll, Grundsteuer
- Heizkostenpauschale monatl. brutto: € 244,80 inkl. Ust
= GESAMTMIETE monatl.: € 2.990,00 (inkl. USt, Betriebskosten und Heizung; exkl. Strom)
Die monatlichen Stromkosten sind noch nicht in der angeführten Miete enthalten und werden je nach Verbrauch direkt mit dem Versorgungsunternehmen abgerechnet.
Kaution: 3 Bruttomonatsmieten
max. Mietdauer: 2 Jahre
Entdecken Sie dieses und weitere spannende Immobilienangebote auf unserer Homepage unter www.nextimmobilien.at!
Unverbindliches, freibleibendes Angebot. Informationen nach bestem Wissen und Gewissen von AbgeberIn erhalten - für die Richtigkeit wird keine Haftung übernommen. Mündliche Nebenabreden zum angebotenen Objekt bedürfen zu Ihrer Wirksamkeit der Schriftform. Irrtümer, Druckfehler und Änderungen vorbehalten. Besichtigungen und Beratungen erfolgen kostenlos. Es besteht zwischen der VermittlerIn und der AbgeberIn ein wirtschaftliches Naheverhältnis.
Information zum Datenschutz unter www.nextimmobilien.at/datenschutz
Der Immobilienmakler erklärt, dass er – entgegen dem in der Immobilienwirtschaft üblichen Geschäftsgebrauch des Doppelmaklers – einseitig nur für den Vermieter tätig ist.
Infrastruktur / Entfernungen
Gesundheit
Arzt <500m
Apotheke <500m
Klinik <1.500m
Krankenhaus <1.500m
Kinder & Schulen
Kindergarten <500m
Schule <500m
Universität <500m
Höhere Schule <2.000m
Nahversorgung
Supermarkt <500m
Bäckerei <500m
Einkaufszentrum <500m
Sonstige
Bank <500m
Geldautomat <500m
Post <500m
Polizei <1.000m
Verkehr
Bus <500m
Straßenbahn <500m
Bahnhof <500m
Autobahnanschluss <1.500m
Flughafen <4.500m
Angaben Entfernung Luftlinie / Quelle: OpenStreetMap
Objektdaten
Ausstattung
- Klimatisiert
- Gartennutzung
- Vollmöbliert
- Kabel/SAT-TV
- Sauna
- Wintergarten
- Wellnessbereich
- Bad mit Dusche
- Bad mit Badewanne
- Bad mit Fenster
- Einbauküche
- Zentralheizung
- Befeuerung mit Gas
- Ausrichtung Balkon/Terrasse - Südwest
- Alarmanlage
- Kamera
- Massiv Bauweise
Zustand
- Zustand
- GEPFLEGT
- HWB
- 87.1 kWh/m² pro Jahr
- Klasse HWB
- D
Flächen
- Anzahl der Zimmer
- 9
- Anzahl der Badezimmer
- 3
- Anzahl der sep. WCs
- 3
- Anzahl der Terrassen
- 1
- Wohnfläche
- 352m²
- Nutzfläche
- 408m²
- Grundstücksfläche
- 689m²
- Terrassenfläche
- 1m²
Kosten
- Gesamtmiete Brutto
- € 2.745,20
- Miete
- € 2.141,64
- Betriebskosten
- € 354,00
- Heizkosten
- € 204,00
- Umsatzsteuer
- € 290,36
- Monatl. Gesamtbelastung Brutto
- € 2.990,00
Verwaltung
- Verfügbar ab
- sofort
Wohnungen zum Mieten in Österreich
Wohnungen zum Mieten in Österreich
Wohnungen zum Mieten in Österreich
Andere Besucher suchen nach...
- Grundstücke kaufen in 3400 Weidlingbach
- Wohnungen kaufen in 4663 Laakirchen
- Häuser in 7471 Rechnitz
- Wohnungen in 2410 Hainburg an der Donau
- Häuser kaufen in 2432 Schwadorf
- Wohnungen kaufen in 3002 Purkersdorf
- Häuser in 3150 Wilhelmsburg
- Wohnungen kaufen in 3470 Engelmannsbrunn
- Grundstücke kaufen im Bezirk Mattersburg
- Grundstücke kaufen im Bezirk Gmunden