Ihr neues Zuhause in Mauthausen – Familienwohnglück im Grünen - 3-Raum-Wohnung mit sehr guter Raumaufteilung und Balkon - sicheres Wohnen in ruhiger Lage!
-
SOFORT
Beschreibung
Perg / Mauthausen / Riederbachstraße 50
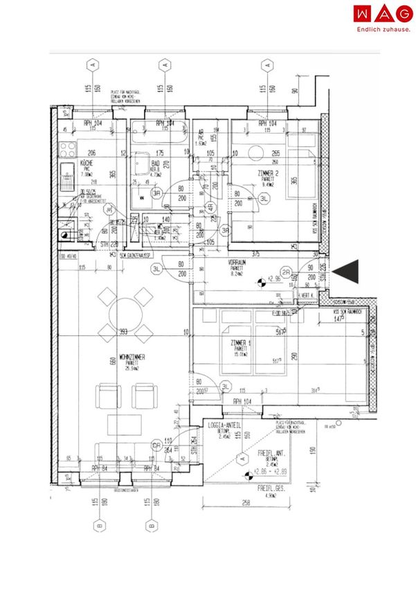
Diese großzügige 3-Zimmer-Wohnung überzeugt durch eine moderne Raumaufteilung, helle Wohnbereiche und einen gemütlichen Balkon. Die Einheit liegt in einer gepflegten Wohnanlage in Mauthausen und bietet sowohl ruhiges Wohnen als auch beste Erreichbarkeit. Ideal für Singles, Paare oder kleine Familien.
Raumaufteilung
- Wohnzimmer (25,94 m²) mit direktem Zugang zum Balkon/Loggia
- Schlafzimmer 1 (15,01 m²) – geräumig und gut möblierbar
- Schlafzimmer 2 (9,46 m²) – ideal als Kinderzimmer/Büro
- Küche (7,08 m²) separat angeordnet
- Badezimmer (4,73 m²) mit Badewanne
- WC (1,40 m²) separat
- Vorraum (8,24 m²)
- Abstellraum (1,63 m²)
- Loggia (4,90 m²)
Highlights
- Helle, optimal...
Perg / Mauthausen / Riederbachstraße 50
Diese großzügige 3-Zimmer-Wohnung überzeugt durch eine moderne Raumaufteilung, helle Wohnbereiche und einen gemütlichen Balkon. Die Einheit liegt in einer gepflegten Wohnanlage in Mauthausen und bietet sowohl ruhiges Wohnen als auch beste Erreichbarkeit. Ideal für Singles, Paare oder kleine Familien.
Raumaufteilung
- Wohnzimmer (25,94 m²) mit direktem Zugang zum Balkon/Loggia
- Schlafzimmer 1 (15,01 m²) – geräumig und gut möblierbar
- Schlafzimmer 2 (9,46 m²) – ideal als Kinderzimmer/Büro
- Küche (7,08 m²) separat angeordnet
- Badezimmer (4,73 m²) mit Badewanne
- WC (1,40 m²) separat
- Vorraum (8,24 m²)
- Abstellraum (1,63 m²)
- Loggia (4,90 m²)
Highlights
- Helle, optimal geschnittene 3-Zimmer-Wohnung
- Balkon/Loggia mit Blick ins Wohnumfeld
- Praktischer Abstellraum in der Wohnung
- Fixer Parkplatz inklusive
- Wohnen in einer ruhigen, familienfreundlichen Siedlungsanlage
- Sofort verfügbar
- Leistbare Mietkonditionen
Lage
Die Wohnung befindet sich in der beliebten Wohngegend von 4310 Mauthausen, nur wenige Minuten von Nahversorgern, Schulen, öffentlichem Verkehr und Freizeitmöglichkeiten entfernt. Die Riederbachstraße bietet eine angenehme Mischung aus Ruhe und guter Infrastruktur. Linz ist in rund 20–25 Minuten bequem erreichbar.
Mietkondition
Miete inkl. Betriebskosten, Parkplatz und MwSt.: € 757,08
(ohne Strom, Heizung und Warmwasser)
Kaution / Baukostenzuschuss: € 2.271,24
Verfügbarkeit
Ab SOFORT beziehbar.
Sie sind an weiteren Wohnungs- bzw. Gewerbeangeboten interessiert? Ein vielfältiges Angebot finden Sie auf unserer Website.
Zur WAG-Immobiliensuche: SUCHE
Zur WAG-Wohnungsanmeldung: Wohnungsanmeldung
Gerne beraten wir Sie persönlich über unser vielfältiges Angebot, rufen Sie uns einfach an! Und das natürlich ohne Vermittlungsgebühren und provisionsfrei!
Angaben sind ohne Gewähr auf Richtigkeit und Vollständigkeit. Druckfehler vorbehalten.
Infrastruktur / Entfernungen
Gesundheit
Arzt <1.125m
Apotheke <3.625m
Klinik <3.775m
Kinder & Schulen
Schule <1.200m
Kindergarten <2.175m
Nahversorgung
Supermarkt <1.075m
Bäckerei <3.075m
Einkaufszentrum <4.450m
Sonstige
Bank <3.075m
Geldautomat <3.075m
Post <3.075m
Polizei <2.200m
Verkehr
Bus <375m
Bahnhof <3.400m
Autobahnanschluss <5.700m
Straßenbahn <9.375m
Angaben Entfernung Luftlinie / Quelle: OpenStreetMap
Objektdaten
Ausstattung
- Kabel/SAT-TV
- Barrierefrei
- Wasch-/Trockenraum
- Bad mit Badewanne
- Bad mit Fenster
- Fliesenboden
- Parkettboden
- Zentralheizung
- Fern Befeuerung
- Massiv Bauweise
- Fahrradraum
Dokumente / Links
Zustand
- Zustand
- GEPFLEGT
- HWB
- 64.07 kWh/m² pro Jahr
- Klasse HWB
- C
- fGEE
- 1.09
- Klasse fGEE
- C
Flächen
- Anzahl der Zimmer
- 3
- Anzahl der Badezimmer
- 1
- Anzahl der sep. WCs
- 1
- Anzahl der Balkone
- 1
- Stellplätze
- 1
- Wohnfläche
- 76m²
Kosten
- Gesamtmiete Brutto
- € 757,07
- Kaution
- € 2.271,24
- Miete
- € 489,74
- Betriebskosten
- € 198,39
- Sonstige Kosten
- € 0,13
- Umsatzsteuer
- € 68,81
- Monatl. Gesamtbelastung Brutto
- € 757,07
Verwaltung
- Verfügbar ab
- SOFORT
Wohnungen zum Mieten im Umkreis von Mauthausen
Wohnungen zum Mieten im Umkreis von Mauthausen
Wohnungen zum Mieten in Österreich
Andere Besucher suchen nach...
- Grundstücke kaufen in 3400 Weidlingbach
- Wohnungen kaufen in 4663 Laakirchen
- Häuser in 7471 Rechnitz
- Wohnungen in 2410 Hainburg an der Donau
- Häuser kaufen in 2432 Schwadorf
- Wohnungen kaufen in 3002 Purkersdorf
- Häuser in 3150 Wilhelmsburg
- Wohnungen kaufen in 3470 Engelmannsbrunn
- Grundstücke kaufen im Bezirk Mattersburg
- Grundstücke kaufen im Bezirk Gmunden