2-Zimmer Dachgeschosswohnung mit Balkon in Perg zu vermieten!
Beschreibung
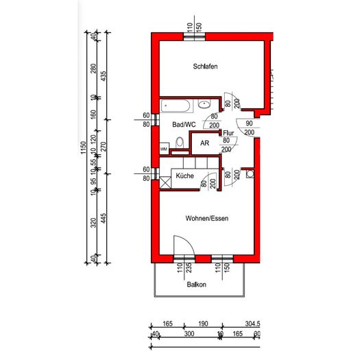
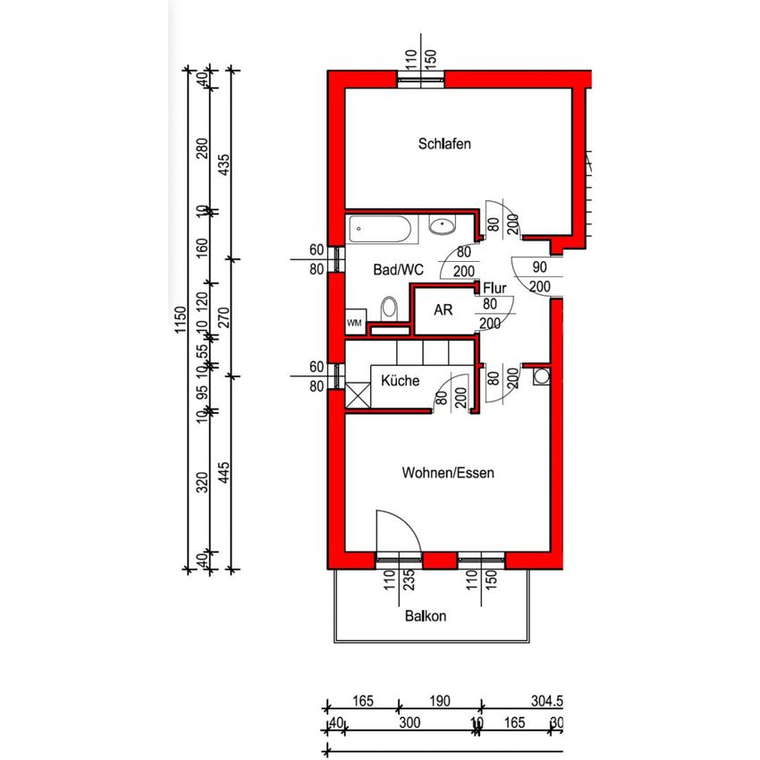
Diese helle 2-Zimmer-Dachgeschoßwohnung befindet sich in 4320 Perg. Die Wohnung befindet sich im 2. OG (ohne Lift) und hat ca. 50 m² Wohnfläche + ca. 7m² Balkon.
Neben dem Wohnraum mit angrenzender abgetrennter Küche befindet sich in der Wohnung ein helles Bad mit Badewanne, WC, Waschtisch und Waschmaschinenanschluss sowie das Schlafzimmer und ein Abstellraum. Die Küche ist mit vermietet und wird vor Vermietung teilweise mit neuen E-Geräten ausgestattet! Der Eingangsbereich ist großzügig und bietet genug Fläche für eine Garderobe. Zusätzlich zur Wohnung ist ein Kellerabteil sowie ein PKW-Freistellplatz vorhanden.
Wir weisen darauf hin, dass zwischen dem Vermittler und dem...
Diese helle 2-Zimmer-Dachgeschoßwohnung befindet sich in 4320 Perg.
Die Wohnung befindet sich im 2. OG (ohne Lift) und hat ca. 50 m² Wohnfläche + ca. 7m² Balkon.
Neben dem Wohnraum mit angrenzender abgetrennter Küche befindet sich in der Wohnung ein helles Bad mit Badewanne, WC, Waschtisch und Waschmaschinenanschluss sowie das Schlafzimmer und ein Abstellraum. Die Küche ist mit vermietet und wird vor Vermietung teilweise mit neuen E-Geräten ausgestattet! Der Eingangsbereich ist großzügig und bietet genug Fläche für eine Garderobe. Zusätzlich zur Wohnung ist ein Kellerabteil sowie ein PKW-Freistellplatz vorhanden.
Wir weisen darauf hin, dass zwischen dem Vermittler und dem zu vermittelnden Dritten ein wirtschaftliches Naheverhältnis mit gesellschaftlicher Verflechtung besteht.
Der Immobilienmakler erklärt, dass er – entgegen dem in der Immobilienwirtschaft üblichen Geschäftsgebrauch des Doppelmaklers – einseitig nur für den Vermieter tätig ist.
Infrastruktur / Entfernungen
Gesundheit
Arzt <850m
Apotheke <1.025m
Klinik <1.150m
Kinder & Schulen
Schule <675m
Kindergarten <775m
Nahversorgung
Supermarkt <700m
Bäckerei <825m
Einkaufszentrum <550m
Sonstige
Bank <750m
Geldautomat <750m
Post <975m
Polizei <75m
Verkehr
Bus <250m
Bahnhof <550m
Autobahnanschluss <9.600m
Angaben Entfernung Luftlinie / Quelle: OpenStreetMap
Objektdaten
Ausstattung
- Bad mit Badewanne
- Bad mit Fenster
- Einbauküche
- Offene Küche
- Fliesenboden
- Parkettboden
- Zentralheizung
- Befeuerung mit Gas
- Ausrichtung Balkon/Terrasse - Süd
- Satteldach
- Massiv Bauweise
Zustand
- Zustand
- GEPFLEGT
- Baujahr
- 1996
- Alter
- NEUBAU
- HWB
- 75.1 kWh/m² pro Jahr
- Klasse HWB
- C
- fGEE
- 1.14
- Klasse fGEE
- C
Flächen
- Anzahl der Zimmer
- 2
- Anzahl der Badezimmer
- 1
- Anzahl der Balkone
- 1
- Stellplätze
- 1
- Wohnfläche
- 50m²
Kosten
- Gesamtmiete Brutto
- € 565,00
- Kaution
- € 1.800,00
- Miete
- € 412,73
- Betriebskosten
- € 100,00
- Heizkosten
- € 50,00
- Umsatzsteuer
- € 62,27
- Monatl. Gesamtbelastung Brutto
- € 625,00
Verwaltung
- Verfügbar ab
- nach Vereinbarung
- Mietdauer
- bis 5,0 Jahre
Wohnungen zum Mieten im Umkreis von Perg
Wohnungen zum Mieten im Umkreis von Perg
Wohnungen zum Mieten in Österreich
Andere Besucher suchen nach...
- Grundstücke kaufen in 3400 Weidlingbach
- Wohnungen kaufen in 4663 Laakirchen
- Häuser in 7471 Rechnitz
- Wohnungen in 2410 Hainburg an der Donau
- Häuser kaufen in 2432 Schwadorf
- Wohnungen kaufen in 3002 Purkersdorf
- Häuser in 3150 Wilhelmsburg
- Wohnungen kaufen in 3470 Engelmannsbrunn
- Grundstücke kaufen im Bezirk Mattersburg
- Grundstücke kaufen im Bezirk Gmunden