„Sunshine“: 3-Zimmer-Apartment, Elsbethen - Nähe Red Bull HQ
-
ab 1. April 2026 möglich/ nach Vereinbarung
Beschreibung
Wir vermieten eine gepflegte 3-Zimmer-Wohnung mit Balkon im Süden Salzburgs – in Elsbethen, unweit der Stadt Salzburg in sehr ruhiger, sonniger Lage in der Nähe des Gemeindezentrums bzw. des Schloss Goldenstein in der Schloßstraße.
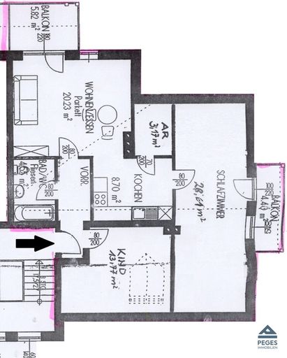
Die Wohnung mit einer Fläche von ca. 82,67 m² zuzüglich 2 Balkone mit ca. 5,82 m² bzw. 4,40 m² befindet sich im 2. Obergeschoss/ Dachgeschoss (ohne Lift). Die Wohnung befindet sich einem ordentlichen und gepflegten Zustand. Der Sanitärbereich besteht aus einem WC sowie einer Badewanne, ein Waschmaschinen-Anschluss ist vorhanden. Das offene Wohnzimmer ist mit einer Küchenzeile (inkl. Geschirrspüler, etc). Von hier aus...
Wir vermieten eine gepflegte 3-Zimmer-Wohnung mit Balkon im Süden Salzburgs – in Elsbethen, unweit der Stadt Salzburg in sehr ruhiger, sonniger Lage in der Nähe des Gemeindezentrums bzw. des Schloss Goldenstein in der Schloßstraße.
Die Wohnung mit einer Fläche von ca. 82,67 m² zuzüglich 2 Balkone mit ca. 5,82 m² bzw. 4,40 m² befindet sich im 2. Obergeschoss/ Dachgeschoss (ohne Lift). Die Wohnung befindet sich einem ordentlichen und gepflegten Zustand. Der Sanitärbereich besteht aus einem WC sowie einer Badewanne, ein Waschmaschinen-Anschluss ist vorhanden. Das offene Wohnzimmer ist mit einer Küchenzeile (inkl. Geschirrspüler, etc). Von hier aus ist auch einer der Balkone (westliche Ausrichtung) begehbar. Das Schlafzimmer (ebenfalls mit Balkon, nördliche Ausrichtung) bzw. Kinderzimmer/ Büro sind praktisch geschnitten. Die Wohnung ist in dem Wohnräumen mit einem Parkettboden ausgestattet bzw. der Badezimmer/WC-Bereich ist mit schönen, hellen Fliesen versehen. Für Stauraum sorgt ein praktischer Abstellraum in der Wohnung.
Raumaufteilung: Vorraum, Bad (mit Badewanne und WM-Anschluss)/ WC, Wohnzimmer mit Balkon, Küchenzeile eingerichtet, Abstellraum, Kinder/ Arbeitszimmer, Schlafzimmer mit Balkon; Kellerabteil, Tiefgaragenstellplatz
Zur Wohnung zugeordnet ist ein separates Kellerabteil im Kellergeschoß des Hauses; ebenso ein fixer Tiefgaragenstellplatz. Weitere PKW-Stellplätze sind direkt beim Wohnhaus vorhanden.
Die Beheizung der Wohnung erfolgt mittels Zentralheizung, die Warmwasserbereitung mittels Boiler.
Die Miete beträgt € 1480,00 inkl. der allgemeinen Betriebskosten zzgl. Wasser- und Kanalgebühren, wobei die Wasser- u. Kanalgebühren einmal jährlich auf Grund Zählererfassung abgerechnet werden.
Auch eine sehr gepflegte Waschküche ist im Untergeschoss des Hauses für die Bewohner vorhanden, die ohne zusätzliche Kosten benützt werden kann.
Die Wohnung wird Auftrags des Vermieters bevorzugt an max. 3 Personen (berufstätig oder studierend - entsprechender Nachweis erforderlich) vergeben, Nichtraucher (in der Wohnung), keine Haustierhaltung gestattet.
Die Kosten der vertraglichen Abwicklung sind vom Mieter zu übernehmen.
Vereinbaren Sie jetzt Ihren Besichtigungstermin und überzeugen Sie sich von den Vorzügen dieser Immobilie.
Wir freuen uns auf Ihre Kontaktaufnahme per Email, samt detaillierten Informationen/ Unterlagen zu Ihrer Person - bitte beachten Sie, dass nur Anfragen mit vollständigen Daten bzw. entsprechenden Unterlagen bearbeitet werden.
Wir weisen darauf hin, dass zwischen dem Vermittler und dem zu vermittelnden Dritten ein familiäres oder wirtschaftliches Naheverhältnis besteht.
Der Immobilienmakler erklärt, dass er – entgegen dem in der Immobilienwirtschaft üblichen Geschäftsgebrauch des Doppelmaklers – einseitig nur für den Vermieter tätig ist.
Infrastruktur / Entfernungen
Gesundheit
Arzt <1.500m
Apotheke <1.500m
Krankenhaus <3.500m
Klinik <4.000m
Kinder & Schulen
Schule <500m
Kindergarten <2.000m
Universität <2.500m
Höhere Schule <4.000m
Nahversorgung
Supermarkt <1.500m
Bäckerei <1.000m
Einkaufszentrum <3.500m
Sonstige
Bank <1.500m
Geldautomat <1.500m
Post <2.500m
Polizei <1.500m
Verkehr
Bus <500m
Autobahnanschluss <3.500m
Bahnhof <500m
Flughafen <7.500m
Angaben Entfernung Luftlinie / Quelle: OpenStreetMap
Objektdaten
Ausstattung
- Wasch-/Trockenraum
- Bad mit Badewanne
- Einbauküche
- Offene Küche
- Fliesenboden
- Parkettboden
- Zentralheizung
- Befeuerung mit Gas
- Wasserelektro Befeuerung
- Ausrichtung Balkon/Terrasse - Nord
- Ausrichtung Balkon/Terrasse - West
- Massiv Bauweise
Zustand
- Zustand
- GEPFLEGT
- Baujahr
- 1992
- HWB
- 86 kWh/m² pro Jahr
- Klasse HWB
- C
- fGEE
- 1.13
- Klasse fGEE
- C
Flächen
- Anzahl der Zimmer
- 3
- Anzahl der Badezimmer
- 1
- Anzahl der sep. WCs
- 1
- Anzahl der Balkone
- 2
- Stellplätze
- 1
- Wohnfläche
- 83m²
Kosten
- Gesamtmiete Brutto
- € 1.480,00
- Miete
- € 1.345,45
- Umsatzsteuer
- € 134,55
- Monatl. Gesamtbelastung Brutto
- € 1.480,00
Verwaltung
- Verfügbar ab
- ab 1. April 2026 möglich/ nach Vereinbarung
Wohnungen zum Mieten im Umkreis von Elsbethen
Wohnungen zum Mieten im Umkreis von Elsbethen
Wohnungen zum Mieten in Österreich
Andere Besucher suchen nach...
- Grundstücke kaufen in 3400 Weidlingbach
- Wohnungen kaufen in 4663 Laakirchen
- Häuser in 7471 Rechnitz
- Wohnungen in 2410 Hainburg an der Donau
- Häuser kaufen in 2432 Schwadorf
- Wohnungen kaufen in 3002 Purkersdorf
- Häuser in 3150 Wilhelmsburg
- Wohnungen kaufen in 3470 Engelmannsbrunn
- Grundstücke kaufen im Bezirk Mattersburg
- Grundstücke kaufen im Bezirk Gmunden