EBENAU: Garconniere mit Balkon und PKW-Stellplatz
-
ab sofort möglich/ nach Vereinbarung
Beschreibung
… direkt im Ortsgebiet von Ebenau vermieten wir ab sofort eine gepflegte Garconniere mit Balkon/ Terrasse und fixem PKW-Stellplatz im Auftrag der Eigentümerin.
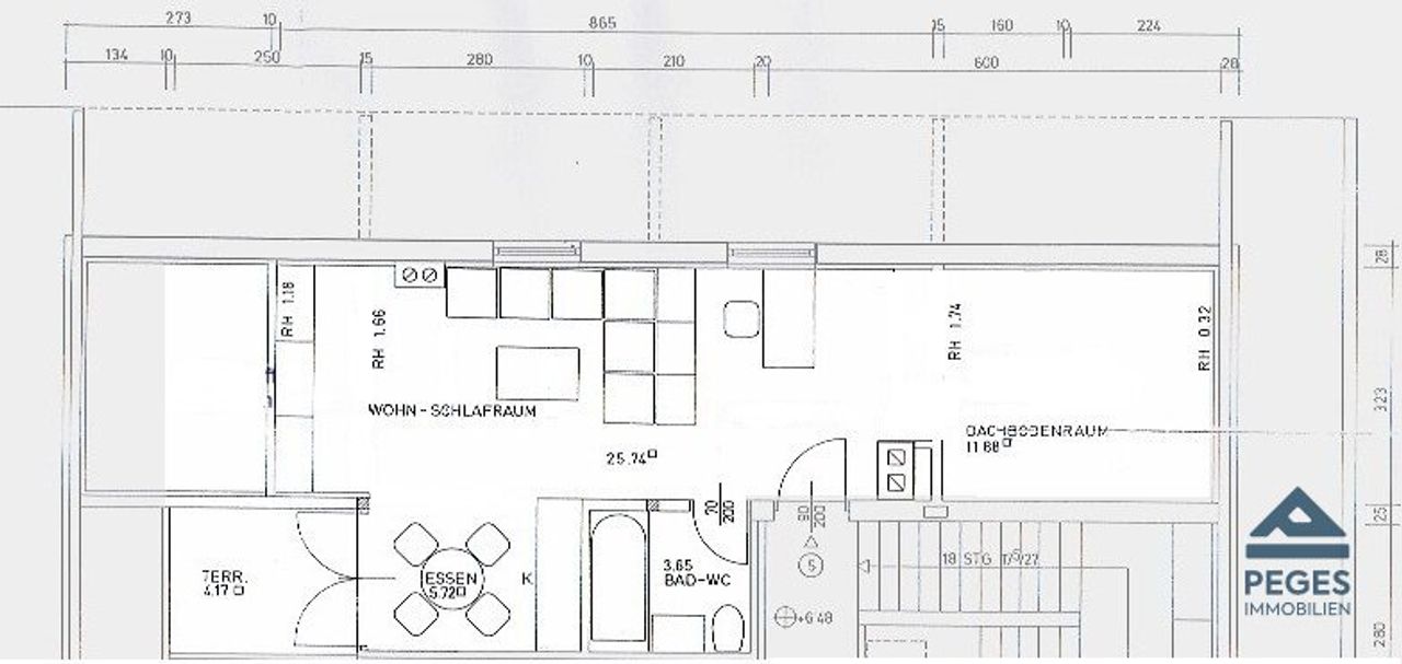
Die Wohnung liegt im 2. Obergeschoss des Hauses (Dachgeschoß mit Mansarden, ohne Lift) und verfügt über ein Flächenausmaß von ca. 35 m². Ein ordentlicher und gepflegter Zustand ist gegeben. Bei Betreten der Wohnung gelangt man bereits in den gemütlichen Wohnbereich, welcher auf beiden Seiten ein von der Mansarde begrenzt wird. Diese bittet Platz für die Einrichtung des Schlafbereiches bzw. wurde diese an einer Seite mit Regaleinbauten versehen. Eine Küchenzeile (samt Geräten) ist eingerichtet. Die...
… direkt im Ortsgebiet von Ebenau vermieten wir ab sofort eine gepflegte Garconniere mit Balkon/ Terrasse und fixem PKW-Stellplatz im Auftrag der Eigentümerin.
Die Wohnung liegt im 2. Obergeschoss des Hauses (Dachgeschoß mit Mansarden, ohne Lift) und verfügt über ein Flächenausmaß von ca. 35 m². Ein ordentlicher und gepflegter Zustand ist gegeben.
Bei Betreten der Wohnung gelangt man bereits in den gemütlichen Wohnbereich, welcher auf beiden Seiten ein von der Mansarde begrenzt wird. Diese bittet Platz für die Einrichtung des Schlafbereiches bzw. wurde diese an einer Seite mit Regaleinbauten versehen. Eine Küchenzeile (samt Geräten) ist eingerichtet. Die gemütliche Terrasse mit süd-östlicher Ausrichtung ist von hier aus begehbar und lädt zum verweilen ein. Der Sanitärbereich ist mit einer Badewanne und WC ausgestattet. Zudem befindet sich hier ein Waschmaschinenanschluss.
Raumaufteilung: Wohn-/ Schlafzimmer mit Küchenbereich eingerichtet und Essplatz, Balkon/ Terrasse, Bad (mit Badewanne und WM-Anschluss)/ WC; Kellerabteil, fixer PKW-Stellplatz im Freien
Der Wohnung sind ein Kellerabteil sowie ein fixer PKW-Stellplatz im Freien zugeordnet.
Die Miete beträgt € 550,- inklusive der allgemeinen Betriebskosten zuzüglich Heizkosten – Elektro-Nachtspeicherheizung (Strom). Die Warmwasserbereitung erfolgt mittels Boiler.
Kabel-TV über die Salzburg AG ist in der Wohnung vorhanden.
Die Vergabe der Wohnung erfolgt bevorzut an eine Einzeperson (sudierend/ berufstätig) - entsprechende Nachweise sind bereitzustellen.
Die Kosten der vertraglichen Abwicklung sind vom Mieter zu übernehmen.
Vereinbaren Sie jetzt Ihren Besichtigungstermin und überzeugen Sie sich von den Vorzügen dieser Immobilie.
Wir freuen uns auf Ihre Kontaktaufnahme per Email, samt detaillierten Informationen/ Unterlagen zu Ihrer Person - bitte beachten Sie, dass nur Anfragen mit vollständigen Daten bzw. entsprechenden Unterlagen bearbeitet werden.
Wir weisen darauf hin, dass zwischen dem Vermittler und dem zu vermittelnden Dritten ein familiäres oder wirtschaftliches Naheverhältnis besteht.
Der Immobilienmakler erklärt, dass er – entgegen dem in der Immobilienwirtschaft üblichen Geschäftsgebrauch des Doppelmaklers – einseitig nur für den Vermieter tätig ist.
Infrastruktur / Entfernungen
Gesundheit
Arzt <500m
Apotheke <4.500m
Klinik <4.500m
Krankenhaus <7.500m
Kinder & Schulen
Schule <500m
Kindergarten <500m
Universität <8.000m
Höhere Schule <9.000m
Nahversorgung
Supermarkt <4.000m
Bäckerei <500m
Einkaufszentrum <8.500m
Sonstige
Bank <500m
Geldautomat <500m
Post <4.000m
Polizei <4.500m
Verkehr
Bus <500m
Bahnhof <7.500m
Autobahnanschluss <7.000m
Angaben Entfernung Luftlinie / Quelle: OpenStreetMap
Objektdaten
Ausstattung
- Bad mit Badewanne
- Einbauküche
- Elektrische Befeuerung
- Wasserelektro Befeuerung
- Ausrichtung Balkon/Terrasse - Südost
Zustand
- Baujahr
- 1976
- HWB
- 50 kWh/m² pro Jahr
- Klasse HWB
- B
- fGEE
- 0.69
- Klasse fGEE
- A+
Flächen
- Anzahl der Zimmer
- 1
- Anzahl der Badezimmer
- 1
- Anzahl der Balkone
- 1
- Stellplätze
- 1
- Wohnfläche
- 35m²
Kosten
- Gesamtmiete Brutto
- € 550,00
- Miete
- € 464,89
- Betriebskosten
- € 85,11
- Monatl. Gesamtbelastung Brutto
- € 550,00
Verwaltung
- Verfügbar ab
- ab sofort möglich/ nach Vereinbarung
Wohnungen zum Mieten im Umkreis von Ebenau
Wohnungen zum Mieten im Umkreis von Ebenau
Wohnungen zum Mieten in Österreich
Andere Besucher suchen nach...
- Grundstücke kaufen in 3400 Weidlingbach
- Wohnungen kaufen in 4663 Laakirchen
- Häuser in 7471 Rechnitz
- Wohnungen in 2410 Hainburg an der Donau
- Häuser kaufen in 2432 Schwadorf
- Wohnungen kaufen in 3002 Purkersdorf
- Häuser in 3150 Wilhelmsburg
- Wohnungen kaufen in 3470 Engelmannsbrunn
- Grundstücke kaufen im Bezirk Mattersburg
- Grundstücke kaufen im Bezirk Gmunden