Renovierte Dachgeschosswohnung mit Altbauflair in Jenbach
-
01.09.2025
Beschreibung
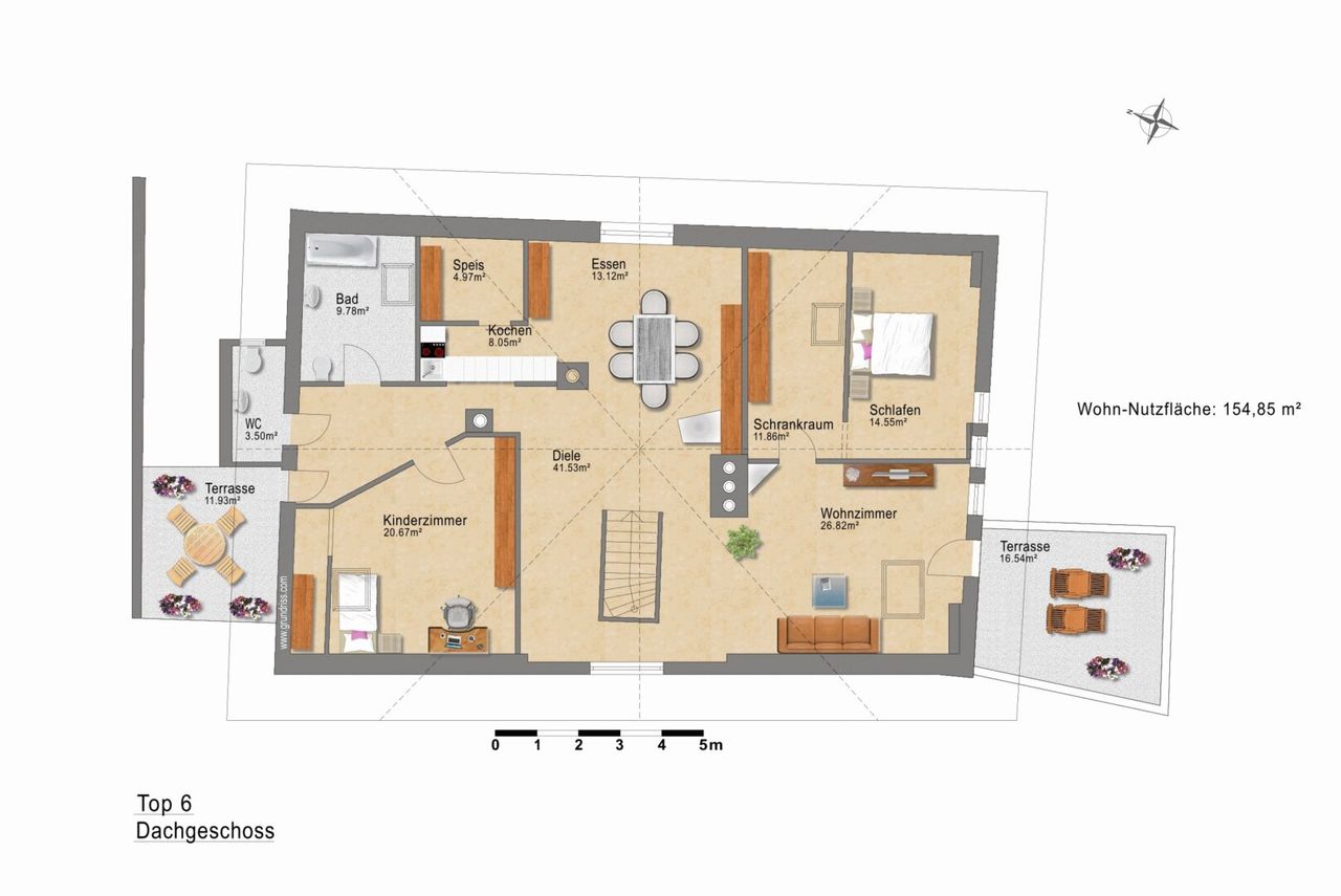
TOP W6: Dachgeschosswohnung mit modernem Altbauflair und zwei Außenbereichen Wohnfläche: ca. 155 m2
Ab November steht diese neu renovierte Dachgeschosswohnung in der Kirchgasse in Jenbach zur Vermietung. Ausgestattet ist die Wohnung mit einer modernen, neuen Einbauküche inklusive E-Geräte, Deckenleuchten und hochwertige Fixeinbauten im Badezimmer. ERSTBEZUG. Die Wohnung ist unterteilt in:
- Eingang/Aufgang über eine Holztreppe direkt in das Herzstück der Wohnung: Dem Wohn- und Essbereich
- Geräumige Einbauküche inkl. E-Geräte und angrenzender Speos
- 2 Schlafzimmer, 1 davon mit Ankleide
- 1 separates WC
- 1 Badezimmer mit Badewanne, Dusche, Fenster
- 16 m2 Terrasse (Süd/West/Ost-Ausrichtung)
- Wohnzimmer mit Kamin und Zugang zur 12 m2...
TOP W6: Dachgeschosswohnung mit modernem Altbauflair und zwei Außenbereichen
Wohnfläche: ca. 155 m2
Ab November steht diese neu renovierte Dachgeschosswohnung in der Kirchgasse in Jenbach zur Vermietung. Ausgestattet ist die Wohnung mit einer modernen, neuen Einbauküche inklusive E-Geräte, Deckenleuchten und hochwertige Fixeinbauten im Badezimmer. ERSTBEZUG.
Die Wohnung ist unterteilt in:
- Eingang/Aufgang über eine Holztreppe direkt in das Herzstück der Wohnung: Dem Wohn- und Essbereich
- Geräumige Einbauküche inkl. E-Geräte und angrenzender Speos
- 2 Schlafzimmer, 1 davon mit Ankleide
- 1 separates WC
- 1 Badezimmer mit Badewanne, Dusche, Fenster
- 16 m2 Terrasse (Süd/West/Ost-Ausrichtung)
- Wohnzimmer mit Kamin und Zugang zur 12 m2 großenTerrasse (Nord/West-Ausrichtung)
- Pelletsofen im Essbereich
- Möbel lt. Fotos können genutzt werden
Wenn Sie Interesse an dieser besonderen Wohnung haben, schreiben Sie bitte ein Mail an: rainer@tiroler-immobilien.at mit folgenden Informationen zu Ihrer Person:
- Vor- und Nachname aller Personen
- Arbeitgeber
- Einzugsdatum & Haustiere
Sie erhalten dann in Kürze eine Antwort auf Ihre E-Mail und ggfs. eine Einladung zum Besichtigungstermin.
Jasmin Rainer von Tiroler Immobilien
Der Immobilienmakler erklärt, dass er – entgegen dem in der Immobilienwirtschaft üblichen Geschäftsgebrauch des Doppelmaklers – einseitig nur für den Vermieter tätig ist.
Infrastruktur / Entfernungen
Gesundheit
Arzt <500m
Apotheke <500m
Klinik <7.500m
Krankenhaus <6.000m
Kinder & Schulen
Schule <500m
Kindergarten <500m
Nahversorgung
Supermarkt <500m
Bäckerei <500m
Einkaufszentrum <6.500m
Sonstige
Bank <500m
Geldautomat <500m
Post <500m
Polizei <500m
Verkehr
Bus <500m
Bahnhof <1.000m
Autobahnanschluss <1.000m
Angaben Entfernung Luftlinie / Quelle: OpenStreetMap
Objektdaten
Ausstattung
- Kamin
- Bad mit Dusche
- Bad mit Badewanne
- Bad mit Fenster
- Einbauküche
- Offene Küche
- Fliesenboden
- Parkettboden
- Ofen
- Zentralheizung
- Befeuerung mit Gas
- Wasserelektro Befeuerung
- Befeuerung mit Holz
- Ausrichtung Balkon/Terrasse - Nordwest
- Ausrichtung Balkon/Terrasse - Südost
- Ausrichtung Balkon/Terrasse - Südwest
Dokumente / Links
Zustand
- Alter
- ALTBAU
- HWB
- 354 kWh/m² pro Jahr
- Klasse HWB
- G
- fGEE
- 4.63
- Klasse fGEE
- G
Flächen
- Anzahl der Zimmer
- 3
- Anzahl der Badezimmer
- 1
- Anzahl der sep. WCs
- 2
- Anzahl der Terrassen
- 2
- Wohnfläche
- 155m²
- Nutzfläche
- 155m²
- Terrassenfläche
- 2m²
Kosten
- Gesamtmiete Brutto
- € 2.330,00
- Miete
- € 1.640,00
- Betriebskosten
- € 516,00
- Umsatzsteuer
- € 174,00
- Monatl. Gesamtbelastung Brutto
- € 2.330,00
Verwaltung
- Verfügbar ab
- 01.09.2025
Wohnungen zum Mieten im Umkreis von Stans
Wohnungen zum Mieten im Umkreis von Stans
Wohnungen zum Mieten in Österreich
Andere Besucher suchen nach...
- Grundstücke kaufen in 3400 Weidlingbach
- Wohnungen kaufen in 4663 Laakirchen
- Häuser in 7471 Rechnitz
- Wohnungen in 2410 Hainburg an der Donau
- Häuser kaufen in 2432 Schwadorf
- Wohnungen kaufen in 3002 Purkersdorf
- Häuser in 3150 Wilhelmsburg
- Wohnungen kaufen in 3470 Engelmannsbrunn
- Grundstücke kaufen im Bezirk Mattersburg
- Grundstücke kaufen im Bezirk Gmunden