Zentrale Praxis mit Umnutzungspotenzial
-
31.01.2026
Beschreibung
Kmenta & Partner Immobilienmakler GmbH in Kooperation mit Perfekt Immo GmbH
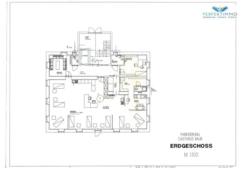
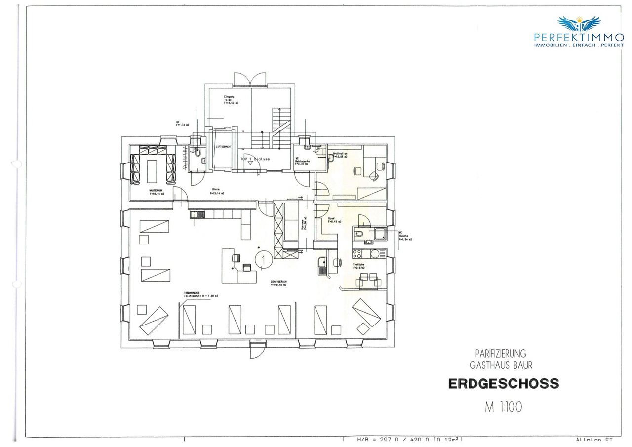
Diese vielseitig nutzbare Erdgeschossfläche im Herzen von Bregenz bietet die perfekte Basis für Ihre Praxis, Ihr Büro oder eine hochwertige Wohnung. Die Immobilie überzeugt durch ihre zentrale Lage, eine ausgezeichnete Anbindung sowie die Zustimmung der Miteigentümer zur künftigen Wohnnutzung – ein wichtiger Schritt für eine potenzielle Umwidmung.
Die Gewerbefläche ist bis zum 31.10.2026 vermietet.
Historisch war die Immobilie als Gasthaus genutzt, sodass auch eine gastronomische Nutzung grundsätzlich denkbar ist. Dank des großzügigen Grundrisses lässt sich das Objekt flexibel an Ihre individuellen Anforderungen anpassen – ob Ordination,...
Kmenta & Partner Immobilienmakler GmbH in Kooperation mit Perfekt Immo GmbH
Diese vielseitig nutzbare Erdgeschossfläche im Herzen von Bregenz bietet die perfekte Basis für Ihre Praxis, Ihr Büro oder eine hochwertige Wohnung. Die Immobilie überzeugt durch ihre zentrale Lage, eine ausgezeichnete Anbindung sowie die Zustimmung der Miteigentümer zur künftigen Wohnnutzung – ein wichtiger Schritt für eine potenzielle Umwidmung.
Die Gewerbefläche ist bis zum 31.10.2026 vermietet.
Historisch war die Immobilie als Gasthaus genutzt, sodass auch eine gastronomische Nutzung grundsätzlich denkbar ist. Dank des großzügigen Grundrisses lässt sich das Objekt flexibel an Ihre individuellen Anforderungen anpassen – ob Ordination, Kanzlei, Agentur oder ein stilvolles Wohnkonzept.
Ein privater Stellplatz direkt am Haus ist inkludiert – ein echter Vorteil in dieser zentralen Lage. Die Umgebung bietet alles, was Mitarbeiter, Patienten oder Kunden benötigen: Nahversorger, Apotheken, Schulen und öffentliche Verkehrsmittel befinden sich in direkter Nähe.
Nutzen Sie diese Gelegenheit, in eine Immobilie mit großem Entwicklungspotenzial zu investieren. Wir freuen uns auf Ihre Anfrage und zeigen Ihnen die vielfältigen Möglichkeiten gerne bei einer Besichtigung.
Der Vermittler ist als Doppelmakler tätig.
Infrastruktur / Entfernungen
Gesundheit
Arzt <1.000m
Apotheke <1.000m
Krankenhaus <1.500m
Klinik <1.500m
Kinder & Schulen
Schule <500m
Kindergarten <500m
Universität <2.000m
Höhere Schule <5.500m
Nahversorgung
Supermarkt <500m
Bäckerei <500m
Einkaufszentrum <2.000m
Sonstige
Bank <500m
Geldautomat <1.000m
Post <1.000m
Polizei <1.500m
Verkehr
Bus <500m
Autobahnanschluss <1.000m
Bahnhof <1.000m
Angaben Entfernung Luftlinie / Quelle: OpenStreetMap
Objektdaten
Zustand
- Baujahr
- 1950
- HWB
- 53 kWh/m² pro Jahr
- Klasse HWB
- C
- fGEE
- 0.94
- Klasse fGEE
- B
Flächen
- Stellplätze
- 1
- Nutzfläche
- 195m²
- Kellerfläche
- 66m²
Kosten
- Betriebskosten
- € 797,68
- Heizkosten
- € 75,50
- Sonstige Kosten
- € 324,60
Verwaltung
- Verfügbar ab
- 31.01.2026, ab 31. 01. 2026
Büros zum Kaufen im Umkreis von Bregenz
Büros zum Kaufen im Umkreis von Bregenz
Büros zum Kaufen in Österreich
Andere Besucher suchen nach...
- Grundstücke kaufen in 3400 Weidlingbach
- Wohnungen kaufen in 4663 Laakirchen
- Häuser in 7471 Rechnitz
- Wohnungen in 2410 Hainburg an der Donau
- Häuser kaufen in 2432 Schwadorf
- Wohnungen kaufen in 3002 Purkersdorf
- Häuser in 3150 Wilhelmsburg
- Wohnungen kaufen in 3470 Engelmannsbrunn
- Grundstücke kaufen im Bezirk Mattersburg
- Grundstücke kaufen im Bezirk Gmunden