Zwei Büroräumlichkeiten im Altstadtzentrum von Klagenfurt zu kaufen - EINZELVERKAUF möglich
Beschreibung
Investitionsmöglichkeit in barrierefreie, vermietete Büroflächen direkt Am Alten Platz in Klagenfurt - auch Einzelerwerb möglich
Zum Verkauf gelangt ein interessantes und lukratives Investitionspaket direkt am Alten Platz, im historischen Zentrum von Klagenfurt Stadt.
Es handelt sich hierbei um zwei Büroeinheiten im 1. Dachgeschoss eines wunderschönen und gepflegten Gründerzeit-Zinshauses aus dem Jahr 1900, das im Zuge eines Um- und Zubaus 1995 um die Dachgeschossobjekte erweitert wurde. Die erzielte Gesamtnutzfläche der beiden Verkaufsobjekte beträgt ca. 194m².
Die beiden Büroeinheiten sind seit 1996 an einen verlässlichen und sehr seriösen Mieter auf unbefristete Zeit vermietet und garantieren...
Investitionsmöglichkeit in barrierefreie, vermietete Büroflächen direkt Am Alten Platz in Klagenfurt - auch Einzelerwerb möglich
Zum Verkauf gelangt ein interessantes und lukratives Investitionspaket direkt am Alten Platz, im historischen Zentrum von Klagenfurt Stadt.
Es handelt sich hierbei um zwei Büroeinheiten im 1. Dachgeschoss eines wunderschönen und gepflegten Gründerzeit-Zinshauses aus dem Jahr 1900, das im Zuge eines Um- und Zubaus 1995 um die Dachgeschossobjekte erweitert wurde. Die erzielte Gesamtnutzfläche der beiden Verkaufsobjekte beträgt ca. 194m².
Die beiden Büroeinheiten sind seit 1996 an einen verlässlichen und sehr seriösen Mieter auf unbefristete Zeit vermietet und garantieren daher stabile und langfristige Mieteinnahmen.
Sollten Sie am Erwerb einer einzelnen Büroeinheit interessiert sein, so bitte ich um Ihre kurze Kontaktaufnahme - Sie bekommen umgehend die Verkaufsdaten der jeweiligen Einheit übermittelt!
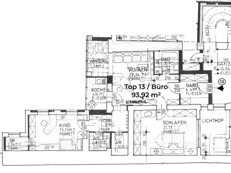
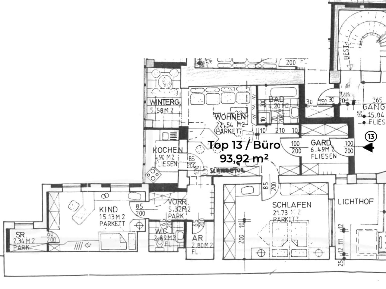
Büro TOP 13: GNF 94,33 m² - aktuelle monatliche Nettomiete € 1.152,54 - wird ab 31.12.2025 frei und kann somit selbst genutzt werden !
Büro TOP 14: GNF 99,67 m² - aktuelle monatliche Nettomiete € 1.186,04
Fakten & Daten
- Historisches Gründerzeithaus aus dem Jahre 1900
- Frequentierte Toplage in Fußgängerzone
- Personenaufzug
- Barrierefreiheit
- Stabile, langfristige Mieterträge
- Unbefristet vermietet
Lage und Infrastruktur
Klagenfurt bietet als charmante Landeshauptstadt, direkt am beliebten Wörthersee gelegen, eine Vielzahl von Möglichkeiten und Annehmlichkeiten für ein ausgeglichenes Stadtleben. Die Mikrolage der zum Verkauf stehenden Liegenschaft, inmitten der Fußgängerzone am Alten Platz, ist äußerst attraktiv und bietet eine gelungene Kombination aus urbanem Leben, ausgezeichneten Einkaufsmöglichkeiten sowie einem regen Geschäftsleben. Restaurants, Cafés sowie zahlreiche weitere infrastrukturelle Einrichtungen sind schnell und einfach erreichbar, ebenso das beliebte Naherholungsgebiet am wunderschönen Wörthersee.
Die Infrastruktur ist unbestritten hervorragend - sämtliche Geschäfte und Einrichtungen des täglichen Bedarfs befinden sich fußläufig in unmittelbarer Nähe.
Verkehrsanbindung
Hervorragende Verkehrsanbindung - in wenigen Fahrminuten erreicht man Hauptbahnhof sowie Flughafen.
Perfekte Anbindung an das österreichische Autobahnnetz mittels A2-Südautobahn.
Möchten Sie sich gerne ein persönliches Bild machen? Ich freue mich auf eine Besichtigung mit Ihnen!
Für weitere Informationen und Besichtigungstermine wenden Sie sich bitte an:
Mag. Ulrike Brunner
********************************************************************************************
ULLI Immo
T: +43 676 4680409
E: office@ulli-immo.at
Sonstiges:
Wir ersuchen um Verständnis, dass wir aufgrund unserer Nachweispflicht gegenüber dem Eigentümer / der Eigentümerin nur Anfragen mit vollständigen Kontaktdaten (Name, Adresse, Telefonnummer, E-Mail) bearbeiten können.
Sämtliche Angaben zum beschriebenen Mietobjekt sind ohne Gewähr und basieren auf Informationen und Unterlagen, die vom Eigentümer der Liegenschaft bzw. Dritten zur Verfügung gestellt wurden. Für Vollständigkeit, Richtigkeit und Aktualität aller Angaben und Abmessungen wird keine Gewähr übernommen. Allfällige Änderungen, Irrtümer, Satz- und Druckfehler vorbehalten.
Provision:
Im Falle eines Vertragsabschlusses beträgt unser Honorar lt. Maklerverordnung für Immobilienmakler (IMV), BGBl. 297/1996 idgF BGBl. II Nr. 268/2010, sowie Maklergesetz, BGB. Nr. 262/1996 idF BGBl. I Nr. 58/2010, 3 % des Kaufpreises zzgl. 20 % USt.
Wir weisen darauf hin, dass zwischen dem Vermittler und dem zu vermittelnden Dritten ein familiäres oder wirtschaftliches Naheverhältnis besteht.
Der Vermittler ist als Doppelmakler tätig.
Infrastruktur / Entfernungen
Gesundheit
Arzt <500m
Apotheke <500m
Krankenhaus <1.000m
Klinik <1.000m
Kinder & Schulen
Schule <500m
Kindergarten <500m
Universität <1.000m
Höhere Schule <1.000m
Nahversorgung
Supermarkt <500m
Bäckerei <500m
Einkaufszentrum <500m
Sonstige
Bank <500m
Geldautomat <500m
Post <500m
Polizei <500m
Verkehr
Bus <500m
Autobahnanschluss <3.500m
Bahnhof <1.500m
Flughafen <3.500m
Angaben Entfernung Luftlinie / Quelle: OpenStreetMap
Objektdaten
Ausstattung
- Teilmöbliert
- Rollstuhlgerecht
- Seniorengerecht
- Fernwärme Heizung
- Fern Befeuerung
- Personen Fahrstuhl
- Massiv Bauweise
Zustand
- Zustand
- TEIL_VOLLRENOVIERT
- Baujahr
- 1900
- Alter
- ALTBAU
- HWB
- 151 kWh/m² pro Jahr
- Klasse HWB
- E
- fGEE
- 2.54
- Klasse fGEE
- E
Flächen
- Wohnfläche
- 194m²
- Nutzfläche
- 188m²
- Bürofläche
- 188m²
Kosten
- Kaufpreis Brutto
- € 570.000,00
- Betriebskosten
- € 286,26
- Heizkosten
- € 34,06
- Sonstige Kosten
- € 291,91
Büros zum Kaufen in Österreich
Büros zum Kaufen in Österreich
Büros zum Kaufen in Österreich
Andere Besucher suchen nach...
- Grundstücke kaufen in 3400 Weidlingbach
- Wohnungen kaufen in 4663 Laakirchen
- Häuser in 7471 Rechnitz
- Wohnungen in 2410 Hainburg an der Donau
- Häuser kaufen in 2432 Schwadorf
- Wohnungen kaufen in 3002 Purkersdorf
- Häuser in 3150 Wilhelmsburg
- Wohnungen kaufen in 3470 Engelmannsbrunn
- Grundstücke kaufen im Bezirk Mattersburg
- Grundstücke kaufen im Bezirk Gmunden