Neubau-Geschäftslokal in Wörgl zu kaufen!
-
Erstbezug
-
2025
-
sofort
Beschreibung
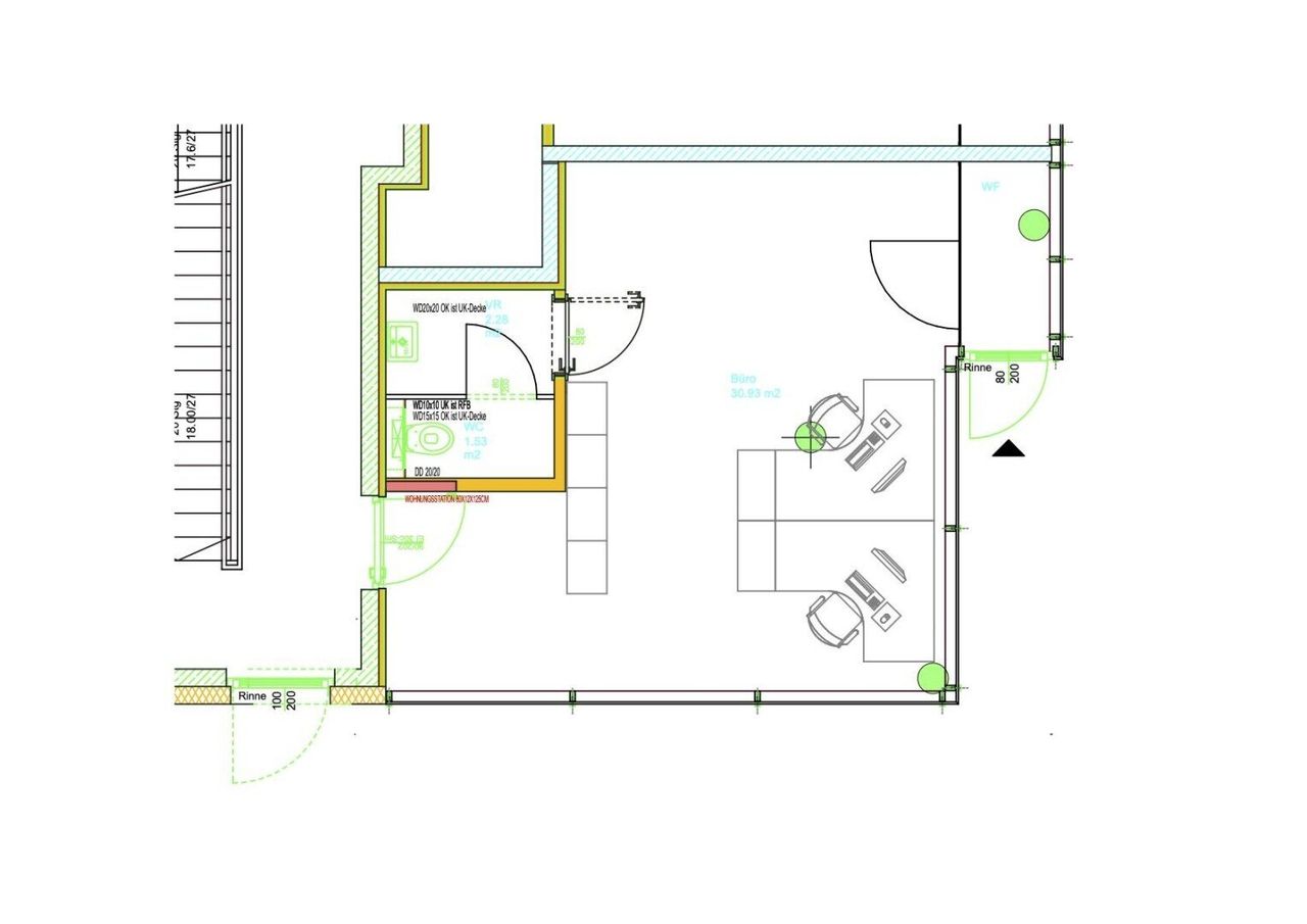
Bürofläche in Wörgl zu verkaufen – Neubau mit Lager & Stellplatz In einem modernen Wohn- und Gewerbegebäude in zentrumsnaher Lage von Wörgl steht eine attraktive Büroeinheit zum Verkauf. Die Immobilie überzeugt durch hochwertige Bauweise, durchdachte Raumaufteilung und vielseitige Nutzungsmöglichkeiten. Raumaufteilung (Erdgeschoss): • Windfang: 2,14 m² • Bürofläche: 30,85 m² • Vorraum: 2,28 m² • WC: 1,53 m² • Gesamtfläche EG: ca. 36,8 m² Im Kaufpreis enthalten: • Lagerraum im Untergeschoss – ideal für Archiv oder Materiallagerung • Stellplatz in Tiefgarage Ausstattung & Highlights: • Neubau mit moderner Architektur • Helle, freundliche Räume • Flexible Nutzung für Büro, Praxis oder Dienstleistung...
Bürofläche in Wörgl zu verkaufen – Neubau mit Lager & Stellplatz
In einem modernen Wohn- und Gewerbegebäude in zentrumsnaher Lage von Wörgl steht eine attraktive Büroeinheit zum Verkauf. Die Immobilie überzeugt durch hochwertige Bauweise, durchdachte Raumaufteilung und vielseitige Nutzungsmöglichkeiten.
Raumaufteilung (Erdgeschoss):
• Windfang: 2,14 m²
• Bürofläche: 30,85 m²
• Vorraum: 2,28 m²
• WC: 1,53 m²
• Gesamtfläche EG: ca. 36,8 m²
Im Kaufpreis enthalten:
• Lagerraum im Untergeschoss – ideal für Archiv oder Materiallagerung
• Stellplatz in Tiefgarage
Ausstattung & Highlights:
• Neubau mit moderner Architektur
• Helle, freundliche Räume
• Flexible Nutzung für Büro, Praxis oder Dienstleistung
• Energieeffiziente Bauweise
• Repräsentative Lage in Wörgl
Lage:
Die Immobilie befindet sich in verkehrsgünstiger Lage mit schneller Anbindung an das Stadtzentrum, die Autobahn sowie öffentliche Verkehrsmittel. Einkaufsmöglichkeiten und Gastronomie sind in unmittelbarer Nähe.
Wir weisen darauf hin, dass zwischen dem Vermittler und dem zu vermittelnden Dritten ein familiäres oder wirtschaftliches Naheverhältnis besteht.
Der Vermittler ist als Doppelmakler tätig.
Infrastruktur / Entfernungen
Gesundheit
Arzt <500m
Apotheke <500m
Klinik <1.000m
Kinder & Schulen
Schule <500m
Kindergarten <500m
Höhere Schule <9.500m
Nahversorgung
Supermarkt <500m
Bäckerei <500m
Einkaufszentrum <500m
Sonstige
Bank <500m
Geldautomat <500m
Post <500m
Polizei <500m
Verkehr
Bus <500m
Autobahnanschluss <1.000m
Bahnhof <1.500m
Flughafen <10.000m
Angaben Entfernung Luftlinie / Quelle: OpenStreetMap
Objektdaten
Ausstattung
- Zentralheizung
- Fern Befeuerung
- Personen Fahrstuhl
Zustand
- Zustand
- ERSTBEZUG
- Baujahr
- 2025
- Alter
- NEUBAU
- HWB
- 36.8 kWh/m² pro Jahr
- Klasse HWB
- B
- fGEE
- 0.73
- Klasse fGEE
- A
Flächen
- Anzahl der sep. WCs
- 1
- Nutzfläche
- 37m²
Kosten
- Kaufpreis Brutto
- € 190.000,00
- Betriebskosten
- € 88,23
- Heizkosten
- € 40,42
- Sonstige Kosten
- € 40,18
Verwaltung
- Verfügbar ab
- sofort
Büros zum Kaufen im Umkreis von Wörgl
Büros zum Kaufen im Umkreis von Wörgl
Büros zum Kaufen in Österreich
Andere Besucher suchen nach...
- Grundstücke kaufen in 3400 Weidlingbach
- Wohnungen kaufen in 4663 Laakirchen
- Häuser in 7471 Rechnitz
- Wohnungen in 2410 Hainburg an der Donau
- Häuser kaufen in 2432 Schwadorf
- Wohnungen kaufen in 3002 Purkersdorf
- Häuser in 3150 Wilhelmsburg
- Wohnungen kaufen in 3470 Engelmannsbrunn
- Grundstücke kaufen im Bezirk Mattersburg
- Grundstücke kaufen im Bezirk Gmunden