Bürogebäude - Top Lage im Zentrum!
€ 2.050.000
€ 2.726 / m²
2340 Mödling
Beschreibung
"Bürogebäude - Top Lage im Zentrum!" Mödling ist eine in jeder Hinsicht attraktive Stadt und bietet eine ideale Lage für Unternehmen und Dienstleistungsbetriebe jeder Art. Durch die Nähe zu Wien profitieren Unternehmen von der wirtschaftlichen Dynamik Wiens aber auch von seinem hochentwickelten Wirtschaftsraum im südlich angrenzenden Niederösterreich. Die Nähe zu Bildungseinrichtungen wie HTL Mödling, die Universitäten Wiens oder die Fachhochschulen Niederösterreichs sorgen für eine gute Auswahl an qualifizierten Mitarbeitern. Zudem verfügt die Stadt durch die Nähe zum Wienerwald und vieler anderer Faktoren, über eine sehr hohe Lebensqualität und attraktive Verkehrsanbindungen. Die Region Mödling gehört zu den einkommensstärksten Gebieten in Österreich,...
"Bürogebäude - Top Lage im Zentrum!"
Mödling ist eine in jeder Hinsicht attraktive Stadt und bietet eine ideale Lage für Unternehmen und Dienstleistungsbetriebe jeder Art. Durch die Nähe zu Wien profitieren Unternehmen von der wirtschaftlichen Dynamik Wiens aber auch von seinem hochentwickelten Wirtschaftsraum im südlich angrenzenden Niederösterreich. Die Nähe zu Bildungseinrichtungen wie HTL Mödling, die Universitäten Wiens oder die Fachhochschulen Niederösterreichs sorgen für eine gute Auswahl an qualifizierten Mitarbeitern. Zudem verfügt die Stadt durch die Nähe zum Wienerwald und vieler anderer Faktoren, über eine sehr hohe Lebensqualität und attraktive Verkehrsanbindungen. Die Region Mödling gehört zu den einkommensstärksten Gebieten in Österreich, was sie für Dienstleistungsbetriebe und den Einzelhandel besonders attraktiv macht.
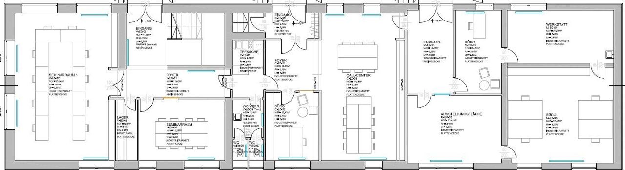
Das Bürogebäude das wir Ihnen hier anbieten befindet sich auf einem 885 m² großen Grundstück. Es verfügt auf zwei Etagen über eine Nutzfläche von ca. 592 m² und inklusive Keller über 752 m². Das Objekt ist in einem sehr guten Zustand da es erst vor einigen Jahren grundlegend renoviert wurde. Auch die technische Ausstattung des Gebäudes befindet sich auf einem hohen Niveau. Die Zwischenwände sind weitgehend in Leichtbauweise ausgeführt, sodass eine Adaptierung auf Ihre Anforderungen leicht zu bewerkstelligen ist. Das Haus verfügt über ca. 20 Büroräumlichkeiten oder Seminarräumen samt allen Nebenflächen Foyer, Teeküchen oder WC Anlagen. Die detaillierte Raumaufteilung können Sie dem Plan entnehmen den wir Ihnen bei Interesse gerne zusenden.
Durch die exponierte Lage in der Enzersdorferstraße ist das Objekt für viele Unternehmen von höchster Attraktivität. Das Haus verfügt über insgesamt 3 Eingangsbereiche, sodass eine Abtrennung relativ leicht möglich ist, wenn sie nicht alle Räumlichkeiten benötigen sollten. Durch die perfekte Lage ist eine Vermietung an andere Unternehmen sehr gut möglich.
Weitere Highlights:
Öffentlicher Parkplatz direkt neben dem Objekt, Tiefgarage in ca. 100 Metern Entfernung. Zufahrt von zwei Seiten möglich, Photovoltaik Anlage auf dem Flachdach möglich, Aufstockungsmöglichkeit in Absprache mit den Baubehörden. Lagermöglichkeiten im Keller. Hochwertige Ausstattung, etc.
Sehr gerne präsentieren wir Ihnen die Vorzüge dieses Objektes bei einem Besichtigungstermin.
Kaufpreis: € 2.050.000, -
Der Vermittler ist als Doppelmakler tätig!
Wir weisen auf ein wirtschaftliches Naheverhältnis hin!
Mödling ist eine in jeder Hinsicht attraktive Stadt und bietet eine ideale Lage für Unternehmen und Dienstleistungsbetriebe jeder Art. Durch die Nähe zu Wien profitieren Unternehmen von der wirtschaftlichen Dynamik Wiens aber auch von seinem hochentwickelten Wirtschaftsraum im südlich angrenzenden Niederösterreich. Die Nähe zu Bildungseinrichtungen wie HTL Mödling, die Universitäten Wiens oder die Fachhochschulen Niederösterreichs sorgen für eine gute Auswahl an qualifizierten Mitarbeitern. Zudem verfügt die Stadt durch die Nähe zum Wienerwald und vieler anderer Faktoren, über eine sehr hohe Lebensqualität und attraktive Verkehrsanbindungen. Die Region Mödling gehört zu den einkommensstärksten Gebieten in Österreich, was sie für Dienstleistungsbetriebe und den Einzelhandel besonders attraktiv macht.
Das Bürogebäude das wir Ihnen hier anbieten befindet sich auf einem 885 m² großen Grundstück. Es verfügt auf zwei Etagen über eine Nutzfläche von ca. 592 m² und inklusive Keller über 752 m². Das Objekt ist in einem sehr guten Zustand da es erst vor einigen Jahren grundlegend renoviert wurde. Auch die technische Ausstattung des Gebäudes befindet sich auf einem hohen Niveau. Die Zwischenwände sind weitgehend in Leichtbauweise ausgeführt, sodass eine Adaptierung auf Ihre Anforderungen leicht zu bewerkstelligen ist. Das Haus verfügt über ca. 20 Büroräumlichkeiten oder Seminarräumen samt allen Nebenflächen Foyer, Teeküchen oder WC Anlagen. Die detaillierte Raumaufteilung können Sie dem Plan entnehmen den wir Ihnen bei Interesse gerne zusenden.
Durch die exponierte Lage in der Enzersdorferstraße ist das Objekt für viele Unternehmen von höchster Attraktivität. Das Haus verfügt über insgesamt 3 Eingangsbereiche, sodass eine Abtrennung relativ leicht möglich ist, wenn sie nicht alle Räumlichkeiten benötigen sollten. Durch die perfekte Lage ist eine Vermietung an andere Unternehmen sehr gut möglich.
Weitere Highlights:
Öffentlicher Parkplatz direkt neben dem Objekt, Tiefgarage in ca. 100 Metern Entfernung. Zufahrt von zwei Seiten möglich, Photovoltaik Anlage auf dem Flachdach möglich, Aufstockungsmöglichkeit in Absprache mit den Baubehörden. Lagermöglichkeiten im Keller. Hochwertige Ausstattung, etc.
Sehr gerne präsentieren wir Ihnen die Vorzüge dieses Objektes bei einem Besichtigungstermin.
Kaufpreis: € 2.050.000, -
Der Vermittler ist als Doppelmakler tätig!
Wir weisen auf ein wirtschaftliches Naheverhältnis hin!
| Angaben gemäß gesetzlichem Erfordernis: | |||
| Heizwärmebedarf: | 121.0 kWh/(m²a) | ||
| Klasse Heizwärmebedarf: | D | ||
Objektdaten
Ausstattung
- Zentralheizung
- Befeuerung mit Gas
- Stadtzentrum
- Zentralheizung mit Gas
Dokumente / Links
Zustand
- Baujahr
- ca. 1955
Flächen
- Anzahl der Zimmer
- 20
- Anzahl der sep. WCs
- 5
- Stellplätze
- 16
- Bürofläche
- 752m²
- Grundstücksfläche
- 885m²
- Kellerfläche
- 160m²
- Nutzfläche
- 752m²
Kosten
- Kaufpreis
- € 2.050.000,00
Büros zum Kaufen im Umkreis von Mödling
Büros zum Kaufen im Umkreis von Mödling
Büros zum Kaufen in Österreich
Andere Besucher suchen nach...
- Grundstücke kaufen in 3400 Weidlingbach
- Wohnungen kaufen in 4663 Laakirchen
- Häuser in 7471 Rechnitz
- Wohnungen in 2410 Hainburg an der Donau
- Häuser kaufen in 2432 Schwadorf
- Wohnungen kaufen in 3002 Purkersdorf
- Häuser in 3150 Wilhelmsburg
- Wohnungen kaufen in 3470 Engelmannsbrunn
- Grundstücke kaufen im Bezirk Mattersburg
- Grundstücke kaufen im Bezirk Gmunden