Büro in begehrter Lage des 4. Wiener Gemeindebezirks
€ 220.000
€ 6.061 / m²
1040 Wien
Beschreibung
Lage In hervorragender Lage des 4. Bezirks, in der charmanten Lambrechtgasse, präsentiert sich dieses repräsentative Gebäude als ideale Kombination aus historischer Substanz und zeitgemäßem Komfort. Die zentrale Lage bietet eine ausgezeichnete Infrastruktur sowie eine optimale Anbindung an den öffentlichen Verkehr und die Wiener Innenstadt. Gebäude & Architektur Das Objekt wurde im Jahr 1871 in massiver Bauweise errichtet und befindet sich in geschlossener Bauweise. Das Gebäude umfasst insgesamt fünf Geschosse (Erdgeschoß, 1.–3. Obergeschoß sowie ein bereits ausgebautes Dachgeschoß) und ist voll unterkellert. Ein Lift ist vorhanden und sorgt für komfortable Erschließung aller Einheiten. Der historische Charakter des Hauses verleiht dem Objekt...
Lage
In hervorragender Lage des 4. Bezirks, in der charmanten Lambrechtgasse, präsentiert sich dieses repräsentative Gebäude als ideale Kombination aus historischer Substanz und zeitgemäßem Komfort. Die zentrale Lage bietet eine ausgezeichnete Infrastruktur sowie eine optimale Anbindung an den öffentlichen Verkehr und die Wiener Innenstadt.
Gebäude & Architektur
Das Objekt wurde im Jahr 1871 in massiver Bauweise errichtet und befindet sich in geschlossener Bauweise. Das Gebäude umfasst insgesamt fünf Geschosse (Erdgeschoß, 1.–3. Obergeschoß sowie ein bereits ausgebautes Dachgeschoß) und ist voll unterkellert.
Ein Lift ist vorhanden und sorgt für komfortable Erschließung aller Einheiten. Der historische Charakter des Hauses verleiht dem Objekt eine besondere Ausstrahlung und repräsentative Wirkung.
Die Einheiten wurden vor einigen Jahren renoviert und befinden sich in einem gepflegten, zeitgemäßen Zustand. Die Grundrisse sind funktional gestaltet.
Aufteilung im Überblick:
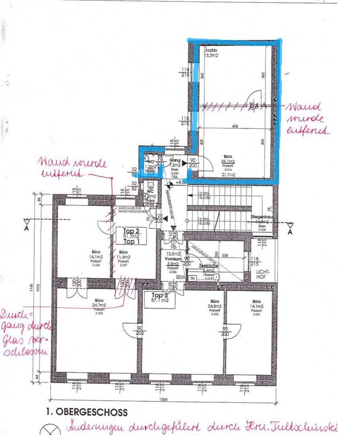
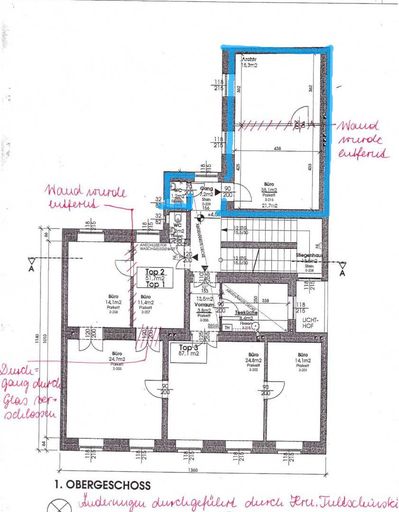
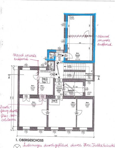
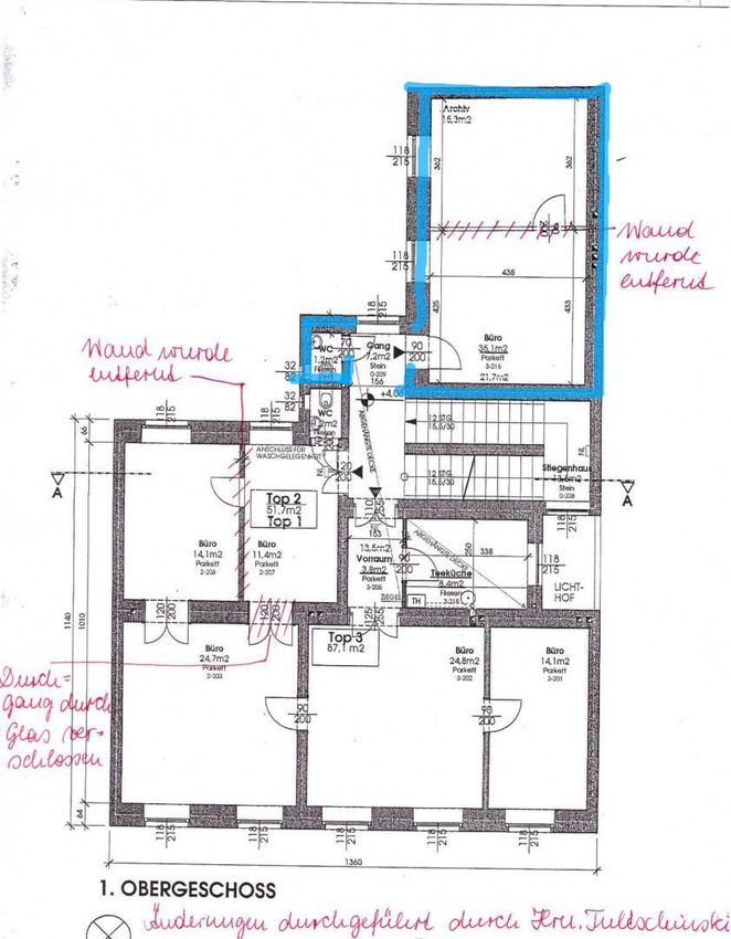
1. Obergeschoß
Büro 2a - 35,1 m²
WC - ca. 1,2 m²
Kaufbedingungen
Kaufpreis gesamt: 220 000 Euro
Maklerprovision: 3% vom Kaufpreis, zzgl. 20% Ust.
Die Umwidmung von Büro- zu Wohnnutzung ist möglich.
Dieses stilvolle Wiener Zinshaus bietet repräsentative, renovierte Büroflächen in einer der gefragtesten innerstädtischen Lagen. Die gelungene Verbindung aus historischem Flair, moderner Ausstattung und flexibler Nutzbarkeit macht das Objekt sowohl für Eigennutzer als auch für Anleger besonders attraktiv.
In hervorragender Lage des 4. Bezirks, in der charmanten Lambrechtgasse, präsentiert sich dieses repräsentative Gebäude als ideale Kombination aus historischer Substanz und zeitgemäßem Komfort. Die zentrale Lage bietet eine ausgezeichnete Infrastruktur sowie eine optimale Anbindung an den öffentlichen Verkehr und die Wiener Innenstadt.
Gebäude & Architektur
Das Objekt wurde im Jahr 1871 in massiver Bauweise errichtet und befindet sich in geschlossener Bauweise. Das Gebäude umfasst insgesamt fünf Geschosse (Erdgeschoß, 1.–3. Obergeschoß sowie ein bereits ausgebautes Dachgeschoß) und ist voll unterkellert.
Ein Lift ist vorhanden und sorgt für komfortable Erschließung aller Einheiten. Der historische Charakter des Hauses verleiht dem Objekt eine besondere Ausstrahlung und repräsentative Wirkung.
Die Einheiten wurden vor einigen Jahren renoviert und befinden sich in einem gepflegten, zeitgemäßen Zustand. Die Grundrisse sind funktional gestaltet.
Aufteilung im Überblick:
1. Obergeschoß
Büro 2a - 35,1 m²
WC - ca. 1,2 m²
Kaufbedingungen
Kaufpreis gesamt: 220 000 Euro
Maklerprovision: 3% vom Kaufpreis, zzgl. 20% Ust.
Die Umwidmung von Büro- zu Wohnnutzung ist möglich.
Dieses stilvolle Wiener Zinshaus bietet repräsentative, renovierte Büroflächen in einer der gefragtesten innerstädtischen Lagen. Die gelungene Verbindung aus historischem Flair, moderner Ausstattung und flexibler Nutzbarkeit macht das Objekt sowohl für Eigennutzer als auch für Anleger besonders attraktiv.
| Angaben gemäß gesetzlichem Erfordernis: | |||
| Heizwärmebedarf: | 115.9 kWh/(m²a) | ||
| Klasse Heizwärmebedarf: | D | ||
| Faktor Gesamtenergieeffizienz: | 1.85 | ||
| Klasse Faktor Gesamtenergieeffizienz: | D | ||
Objektdaten
Ausstattung
- Teilmöbliert
- Etage Heizung
- Befeuerung mit Gas
- Personen Fahrstuhl
- Bus
- Gasetagenheizung
- Straßenbahn
- Teilmöbliert
- U-Bahn
Zustand
- Zustand
- GEPFLEGT
- Baujahr
- 1871
- Alter
- ALTBAU
Flächen
- Nutzfläche
- 36m²
- Bürofläche
- 36m²
Kosten
- Kaufpreis
- € 220.000,00
Verwaltung
- Verfügbar ab
- nach Vereinbarung
Büros zum Kaufen in Österreich
Büros zum Kaufen in Österreich
Andere Besucher suchen nach...
- Immobilien kaufen in 2601 Sollenau
- Immobilien in 4951 Polling im Innkreis, Oberösterreich
- Immobilien in 4742 Pram, Oberösterreich kaufen oder mieten
- Häuser kaufen in 2340 Mödling, Niederösterreich
- Häuser kaufen in 9421 Gemmersdorf, Kärnten
- Wohnungen / Eigentumswohnungen kaufen in 9431 St. Stefan, Kärnten
- Häuser kaufen in Bruck an der Leitha, Niederösterreich
- Immobilien mieten in Krems an der Donau, Niederösterreich
- Häuser zum Kaufen im Bezirk St. Pölten Land, Niederösterreich
- Büro / Praxen mieten in Rohrbach, Oberösterreich