| UNBEFRISTET VERMIETET | GASTRONOMIELOKAL | BESTLAGE |
Beschreibung
Objektbeschreibung
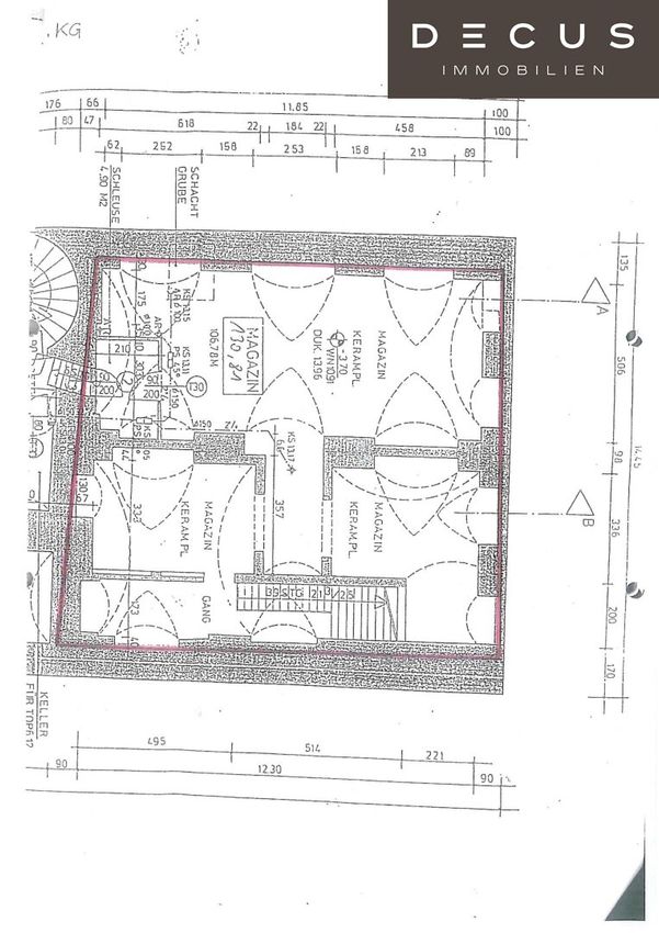
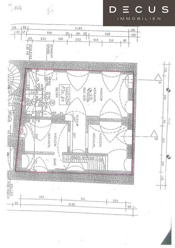
Zum Verkauf gelangt ein unbefristet vermietetes Geschäftslokal, das derzeit an einen gastronomischen Betrieb vermietet ist. Die Immobilie gliedert sich in zwei vermietete Einheiten:
Top 1/2
-
Nutzfläche: 293,29 m²
-
Hauptmietzins: 3.069,27 € / Monat
-
Mietvertragsbeginn: 01.10.2023
Top 5
-
Nutzfläche: 375,64 m²
-
Hauptmietzins: 7.348,92 € / Monat
-
Mietvertragsbeginn: 24.11.2016
Beide Einheiten sind unbefristet vermietet.
Lage
Die Liegenschaft befindet sich in der Bäckerstraße 1010 Wien im 1. Bezirk – Innere Stadt. Die Bäckerstraße liegt im historischen Zentrum Wiens und zeichnet sich durch ein urbanes...
Objektbeschreibung
Zum Verkauf gelangt ein unbefristet vermietetes Geschäftslokal, das derzeit an einen gastronomischen Betrieb vermietet ist. Die Immobilie gliedert sich in zwei vermietete Einheiten:
Top 1/2
Nutzfläche: 293,29 m²
Hauptmietzins: 3.069,27 € / Monat
Mietvertragsbeginn: 01.10.2023
Top 5
Nutzfläche: 375,64 m²
Hauptmietzins: 7.348,92 € / Monat
Mietvertragsbeginn: 24.11.2016
Beide Einheiten sind unbefristet vermietet.
Lage
Die Liegenschaft befindet sich in der Bäckerstraße 1010 Wien im 1. Bezirk – Innere Stadt. Die Bäckerstraße liegt im historischen Zentrum Wiens und zeichnet sich durch ein urbanes Umfeld mit hoher Aufenthaltsqualität aus. In der unmittelbaren Umgebung finden sich zahlreiche Gastronomie-, Einzelhandels- und Dienstleistungsbetriebe sowie kulturelle und historische Sehenswürdigkeiten. Die Lage ist geprägt von einer innerstädtischen Infrastruktur mit guter Erreichbarkeit zu Fuß und mit öffentlichen Verkehrsmitteln. Bedeutende Anziehungspunkte wie der Stephansplatz, Fußgängerzonen und bekannte Einkaufsstraßen sind fußläufig erreichbar.
Wir weisen darauf hin, dass zwischen dem Vermittler und dem zu vermittelnden Dritten ein familiäres oder wirtschaftliches Naheverhältnis besteht.
DECUS Immobilien GmbH – Wir beleben Räume
Für weitere Informationen und Besichtigungen steht Ihnen gerne Herr Ing. Nicolas Putzlager unter der Mobilnummer +43 660 302 61 70 und per E-Mail unter putzlager@decus.at persönlich zur Verfügung.
www.decus.at | office@decus.at
Wichtige Informationen
Bitte beachten Sie, dass per 13.06.2014 eine neue Richtlinie für Fernabsatz- und Auswärtsgeschäfte in Kraft getreten ist.
Ab 1.4.2024 entfallen die Grundbuchs- und Pfandrechtseintragungsgebühren vorübergehend für Eigenheime bis zu einer Bemessungsgrundlage von EUR 500.000,-. Voraussetzung ist das dringende Wohnbedürfnis, ausgenommen davon sind vererbte oder geschenkte Immobilien. Die Befreiung ist jedoch für den Einzelfall zu prüfen, DECUS Immobilien übernimmt hierzu keine Haftung.
Ab 01.07.2023 gilt das Erstauftraggeber-Prinzip bei Wohnungsmietverträgen, ausgenommen davon sind Dienst-/Natural-/Werkswohnungen. Wir dürfen gem. § 17 Maklergesetz darauf hinweisen, dass wir auf die Doppelmaklertätigkeit gem. § 5 Maklergesetz bei Wohnungsmietverträgen verzichten und nur noch einseitig tätig sind (bei den restlichen Vermittlungsarten nicht) und ein wirtschaftliches Naheverhältnis zu unseren Auftraggebern besteht.
Im Falle eines Abschlusses mit Ihnen oder einem von Ihnen namhaft gemachten Dritten bzw. bei beidseitiger Willensübereinstimmung beträgt unser Honorar (lt. Honorarverordnung für Immobilienmakler) 2 Bruttomonatsmieten (BMM) bei Dienst-/Natural-/Werkwohnungen sowie Suchaufträgen, 3 BMM bei Gewerbe-, PKW-, Keller- und Lagermietverträgen sowie bei Kaufobjekten 3 % des Kaufpreises, zuzüglich der gesetzlichen Umsatzsteuer.
Dieses Objekt wird Ihnen unverbindlich und freibleibend angeboten. Oben angeführte Angaben basieren auf Informationen und Unterlagen des Eigentümers und sind unsererseits ohne Gewähr.
Nähere Informationen sowie unsere AGBs und die Nebenkostenübersichtsblatt finden Sie auf unserer Homepage www.decus.at unter "Service" - "Rechtliches zum FAGG" sowie im Anhang der zugesendeten Objekt-Exposés!
Infrastruktur / Entfernungen
Gesundheit
Arzt <250m
Apotheke <250m
Klinik <250m
Krankenhaus <750m
Kinder & Schulen
Schule <250m
Kindergarten <500m
Universität <250m
Höhere Schule <750m
Nahversorgung
Supermarkt <250m
Bäckerei <250m
Einkaufszentrum <1.000m
Sonstige
Geldautomat <250m
Bank <250m
Post <250m
Polizei <250m
Verkehr
Bus <250m
U-Bahn <250m
Straßenbahn <500m
Bahnhof <500m
Autobahnanschluss <3.250m
Angaben Entfernung Luftlinie / Quelle: OpenStreetMap
Objektdaten
Zustand
- HWB
- 196.2 kWh/m² pro Jahr
- Klasse HWB
- E
- fGEE
- 2.24
- Klasse fGEE
- D
Flächen
- Wohnfläche
- 669m²
- Nutzfläche
- 669m²
Kosten
- Kaufpreis Brutto
- € 4.167.276,00
Andere Besucher suchen nach...
- Grundstücke kaufen in 3400 Weidlingbach
- Wohnungen kaufen in 4663 Laakirchen
- Häuser in 7471 Rechnitz
- Wohnungen in 2410 Hainburg an der Donau
- Häuser kaufen in 2432 Schwadorf
- Wohnungen kaufen in 3002 Purkersdorf
- Häuser in 3150 Wilhelmsburg
- Wohnungen kaufen in 3470 Engelmannsbrunn
- Grundstücke kaufen im Bezirk Mattersburg
- Grundstücke kaufen im Bezirk Gmunden