Genehmigtes Neubauprojekt mit 14 Wohnungen auf Baurecht, Share Deal
€ 169.000
€ 200 / m²
4482 Ennsdorf
Beschreibung
Beschreibung des schönen baugenehmigten Pojektes mit guter Verkehrsanbing auf Baurecht für 99 Jahre + Verlängerung. Der Verkauf erfolgt mittels Share Deal. Das baugenehmigte Projekt Ennsdorf - Fasanweg besteht aus zwei Baukörpern mit insgesamt 14 Wohneinheiten sowie 28 Kfz-Freistellplätzen und besticht mit seiner modernen und besonders ästhetischen Architektur. Die optimale Nutzung der Wohnfläche wird mittels praxisorientierten Grundrissen und einer optimalen Aufteilung der Wohnräume erreicht, somit ist ein maximaler Wohnkomfort garantiert. Erdgeschosswohnungen verfügen über direkt begehbare Gärten, Obergeschosse über großzügige Balkone.Bei jeder Wohnung ist ein Kellerabteil inkludiert. Alle Wohnungen sind barrierefrei zugänglich. Der monatliche Baurechtzins beträgt derzeit Euro 0,64 pro m² Grundstücksfläeche,...
Beschreibung des schönen baugenehmigten Pojektes mit guter Verkehrsanbing auf Baurecht für 99 Jahre + Verlängerung.
Der Verkauf erfolgt mittels Share Deal.
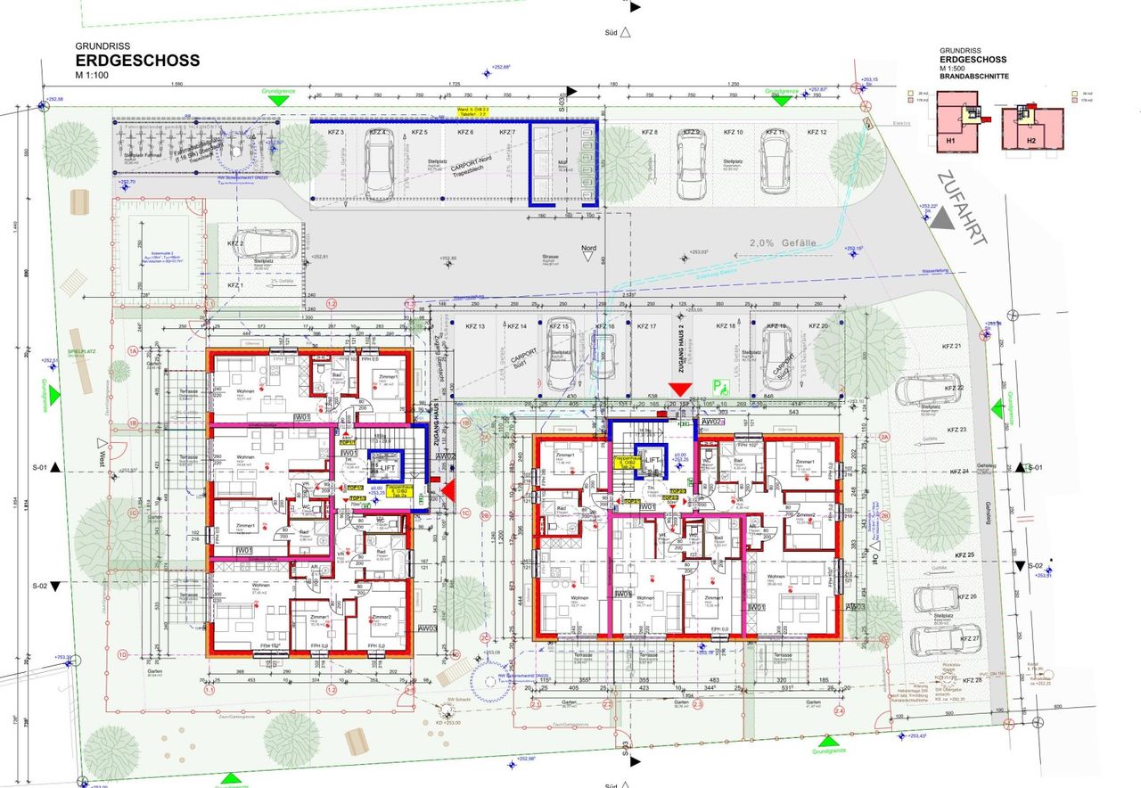
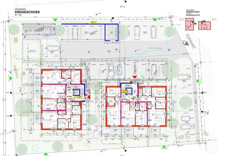
Das baugenehmigte Projekt Ennsdorf - Fasanweg besteht aus zwei Baukörpern mit insgesamt 14 Wohneinheiten sowie 28 Kfz-Freistellplätzen und
besticht mit seiner modernen und besonders ästhetischen Architektur.
Die optimale Nutzung der Wohnfläche wird mittels praxisorientierten Grundrissen und einer optimalen Aufteilung der Wohnräume erreicht,
somit ist ein maximaler Wohnkomfort garantiert.
Erdgeschosswohnungen verfügen über direkt begehbare Gärten, Obergeschosse über großzügige Balkone.Bei jeder Wohnung ist ein Kellerabteil inkludiert. Alle Wohnungen sind barrierefrei zugänglich.
Der monatliche Baurechtzins beträgt derzeit Euro 0,64 pro m² Grundstücksfläeche, das ergibt derzeit einen monatlichen Baurechtzins von Euro 1.333,32.
Verwirklichen Sie hier dieses tolle Projekt und lassen Sie Ihre Fantasie spielen - vereinbaren Sie einen unverbindlichen Besichtigungstermin mit uns.
Bitte beachten Sie, dass wir aufgrund der Nachweispflicht gegenüber dem Eigentümer nur Anfragen mit vollständiger Angabe der Anschrift und Telefonnummer bearbeiten können.
Wir weisen darauf hin, dass alle Angaben nach bestem Wissen und Gewissen erstellt wurden.
Irrtümer, Druckfehler und Änderungen vorbehalten.
Für Auskünfte und Angaben die uns von Seiten der Eigentümer und Dritten zur Verfügung gestellt wurden, übernehmen wir keine Haftung.
Für Fragen steht Ihnen Herr Gattringer gerne unter der Nummer 0664 / 41 29 950 zur Verfügung! Gerne können Sie auch unverbindlich einen Besichtigungstermin vereinbaren.
Der Verkauf erfolgt mittels Share Deal.
Das baugenehmigte Projekt Ennsdorf - Fasanweg besteht aus zwei Baukörpern mit insgesamt 14 Wohneinheiten sowie 28 Kfz-Freistellplätzen und
besticht mit seiner modernen und besonders ästhetischen Architektur.
Die optimale Nutzung der Wohnfläche wird mittels praxisorientierten Grundrissen und einer optimalen Aufteilung der Wohnräume erreicht,
somit ist ein maximaler Wohnkomfort garantiert.
Erdgeschosswohnungen verfügen über direkt begehbare Gärten, Obergeschosse über großzügige Balkone.Bei jeder Wohnung ist ein Kellerabteil inkludiert. Alle Wohnungen sind barrierefrei zugänglich.
Der monatliche Baurechtzins beträgt derzeit Euro 0,64 pro m² Grundstücksfläeche, das ergibt derzeit einen monatlichen Baurechtzins von Euro 1.333,32.
Verwirklichen Sie hier dieses tolle Projekt und lassen Sie Ihre Fantasie spielen - vereinbaren Sie einen unverbindlichen Besichtigungstermin mit uns.
Bitte beachten Sie, dass wir aufgrund der Nachweispflicht gegenüber dem Eigentümer nur Anfragen mit vollständiger Angabe der Anschrift und Telefonnummer bearbeiten können.
Wir weisen darauf hin, dass alle Angaben nach bestem Wissen und Gewissen erstellt wurden.
Irrtümer, Druckfehler und Änderungen vorbehalten.
Für Auskünfte und Angaben die uns von Seiten der Eigentümer und Dritten zur Verfügung gestellt wurden, übernehmen wir keine Haftung.
Für Fragen steht Ihnen Herr Gattringer gerne unter der Nummer 0664 / 41 29 950 zur Verfügung! Gerne können Sie auch unverbindlich einen Besichtigungstermin vereinbaren.
Objektdaten
Ausstattung
- Kabel/SAT-TV
- Grüne Lage
- Kabel/SAT-TV
- Ländliche Lage
- Sonnige Lage
- Stadtrand
- Villengegend
- Kabel/SAT-TV
Dokumente / Links
- TOP 7 Unmöbliert
- Top 7 Möbliert
- Objektbroschüre D-RMC-00946608_00001 (2)
- Bau-und Ausführungs beschreibung
Zustand
- Altlasten
- Baurecht
Flächen
- Nutzfläche
- 844m²
- Grundstücksfläche
- 2.077m²
Kosten
- Kaufpreis
- € 169.000,00
Grundstücke zum Kaufen im Umkreis von Ennsdorf
Grundstücke zum Kaufen im Umkreis von Ennsdorf
Grundstücke zum Kaufen in Österreich
Andere Besucher suchen nach...
- Grundstücke kaufen in 3400 Weidlingbach
- Wohnungen kaufen in 4663 Laakirchen
- Häuser in 7471 Rechnitz
- Wohnungen in 2410 Hainburg an der Donau
- Häuser kaufen in 2432 Schwadorf
- Wohnungen kaufen in 3002 Purkersdorf
- Häuser in 3150 Wilhelmsburg
- Wohnungen kaufen in 3470 Engelmannsbrunn
- Grundstücke kaufen im Bezirk Mattersburg
- Grundstücke kaufen im Bezirk Gmunden