Sonniger & ebener Baugrund in Altheim ohne Bauzwang
Beschreibung
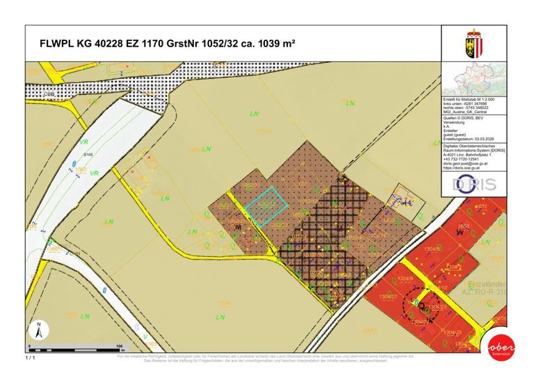
Dieses ebene und gut geschnittene Baugrundstück (ohne Bauzwang) befindet sich in sonniger und ruhiger Lage in Altheim, Ortsteil Moosham. Obwohl nur wenige Minuten vom Stadtzentrum Altheim entfernt, bietet das Grundstück eine angenehme und naturbelassene Umgebung. Das Grundstück hat eine Größe von 1.039 m² und ist durch die Ausrichtung und den Schnitt ideal zur Bebauung geeignet. Sollten Sie ein Bauvorhaben erst in einigen Jahren umsetzen wollen, so ist das Grundstück auch als Wertanlage geeignet. Die bis jetzt von der Gemeinde vorgeschriebenen Kosten (Kanal) von ca Euro 5.500,- wurden bereits entrichtet. Für die Wasserversorgung muss ein eigener Brunnen errichtet werden.
Infrastruktur &...
Dieses ebene und gut geschnittene Baugrundstück (ohne Bauzwang) befindet sich in sonniger und ruhiger Lage in Altheim, Ortsteil Moosham.
Obwohl nur wenige Minuten vom Stadtzentrum Altheim entfernt, bietet das Grundstück eine angenehme und naturbelassene Umgebung.
Das Grundstück hat eine Größe von 1.039 m² und ist durch die Ausrichtung und den Schnitt ideal zur Bebauung geeignet.
Sollten Sie ein Bauvorhaben erst in einigen Jahren umsetzen wollen, so ist das Grundstück auch als Wertanlage geeignet.
Die bis jetzt von der Gemeinde vorgeschriebenen Kosten (Kanal) von ca Euro 5.500,- wurden bereits entrichtet.
Für die Wasserversorgung muss ein eigener Brunnen errichtet werden.
Infrastruktur & Lebensqualität in Altheim
Die Stadt Altheim im Bezirk Braunau im Innviertel präsentiert sich als lebenswerte Gemeinde mit einem ausgewogenen Angebot an Infrastruktur und Nahversorgung. In der Stadt finden sich sämtliche grundlegenden Einrichtungen des täglichen Bedarfs wie Lebensmittelgeschäfte, Bäcker, Metzger, Post, Banken, Friseure und Fachgeschäfte direkt am Stadtplatz oder im Ortszentrum. Zudem bietet die Stadt eine vielfältige Gastronomie mit traditioneller Küche und regionalen Spezialitäten.
Für Familien und Kinder stehen in Altheim verschiedene Bildungs- und Kinderbetreuungseinrichtungen zur Verfügung, ebenso wie Freizeit- und Sportangebote: es gibt unter anderem ein Schwimmbad, Rad- und Wanderwege (z. B. Innradweg und Römerradweg) sowie Sportanlagen und Vereinsleben, die zur aktiven Freizeitgestaltung einladen.
Wir weisen auf Ihre 14-tägige Rücktrittsfrist (nach § 11 FAGG ) hin. Damit Ihre Rechte gewahrt werden, beantworten wir nur Anfragen mit vollständigen Kontaktdaten (Name, Adresse, Handy, E-Mail). Wir werden gerne vor Ablauf der 14-tägigen Rücktrittsfrist für Sie tätig, wenn Sie uns gesetzeskonform (FAGG) und ausdrücklich (am besten per E-Mail) auffordern. Wenn Kaufvertrag/ Mietvertrag nicht zustande kommen, ist unsere Tätigkeit für Sie völlig kostenfrei. Wir möchten an dieser Stelle auf unsere Doppelmaklertätigkeit hinweisen.
Nur auf www.remax.at finden Sie neue REMAX Immobilien früher und vollständig.
Neuer Job, neue Perspektiven: Jetzt als Immobilienmakler/in durchstarten!
Werden Sie Teil unseres Teams – jetzt bewerben unter karriere@remax-innova.at.
Weitere Infos in unseren News: https://www.remax.at/de/ib/remax-innova-braunau-inn/news/wir-suchen-sie-16641
Infrastruktur / Entfernungen
Gesundheit
Arzt <3.000m
Apotheke <3.000m
Klinik <10.000m
Kinder & Schulen
Schule <2.500m
Kindergarten <2.500m
Nahversorgung
Supermarkt <2.500m
Bäckerei <3.500m
Sonstige
Bank <2.500m
Geldautomat <2.500m
Post <3.500m
Polizei <3.500m
Verkehr
Bus <1.000m
Bahnhof <1.000m
Flughafen <9.000m
Angaben Entfernung Luftlinie / Quelle: OpenStreetMap
Objektdaten
Flächen
- Grundstücksfläche
- 1.039m²
Kosten
- Kaufpreis Brutto
- € 135.000,00
Grundstücke zum Kaufen im Umkreis von Altheim
Grundstücke zum Kaufen in Österreich
Andere Besucher suchen nach...
- Immobilien kaufen in 2601 Sollenau
- Immobilien in 4951 Polling im Innkreis, Oberösterreich
- Immobilien in 4742 Pram, Oberösterreich kaufen oder mieten
- Häuser kaufen in 2340 Mödling, Niederösterreich
- Häuser kaufen in 9421 Gemmersdorf, Kärnten
- Wohnungen / Eigentumswohnungen kaufen in 9431 St. Stefan, Kärnten
- Häuser kaufen in Bruck an der Leitha, Niederösterreich
- Immobilien mieten in Krems an der Donau, Niederösterreich
- Häuser zum Kaufen im Bezirk St. Pölten Land, Niederösterreich
- Büro / Praxen mieten in Rohrbach, Oberösterreich