Aufgeschlossenes Betriebsgrundstück BI
Beschreibung
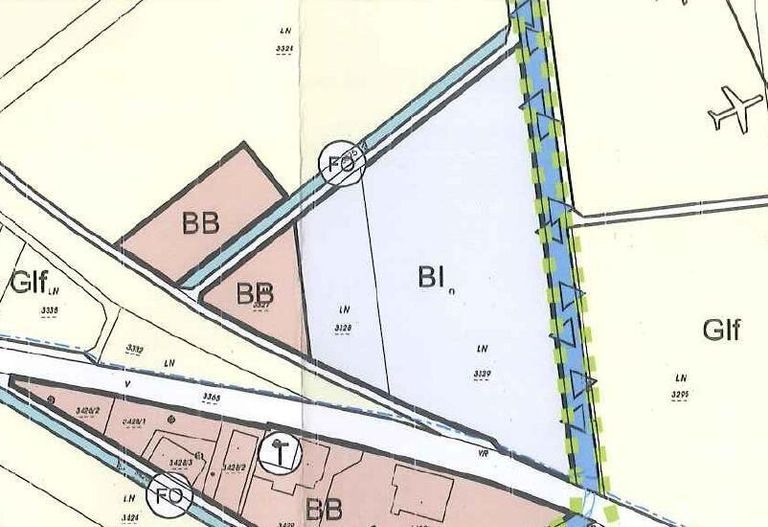
Lage und Verkehrsanbindung Das Grundstück befindet sich Nahe des Flughafen Wien Schwechats in Enzersdorf an der Fischa. Durch die angrenzende B10 ist man in nur wenigen Autominuten bei der Anschlussstelle ”S1 Schwechat-Ost” bzw. Autobahn A4 Nahe Flughafen Wien-Schwechat Direkt an der B10, sehr werbewirksam Anbindung via S1 Schwechat-Ost / Autobahn A4 Das Grundstück ist in unmittelbarer Näher des Industrial Campus Vienna East. Kontakt: Für einen Besichtigungstermin oder nähere Informationen steht Ihnen Herr Augenhammer gerne jederzeit unter 0660 4678417 zur Verfügung. Nebenkosten: 3% Provision zzgl. 20% USt, damit Sie von dieser Gelegenheit erfahren 1,1% Eintragung Grundbuch 3,5% Grunderwerbssteuer Bis zu 3%...
Lage und Verkehrsanbindung
Das Grundstück befindet sich Nahe des Flughafen Wien Schwechats in Enzersdorf an der Fischa. Durch die
angrenzende B10 ist man in nur wenigen Autominuten bei der Anschlussstelle ”S1 Schwechat-Ost” bzw. Autobahn A4
Nahe Flughafen Wien-Schwechat
Direkt an der B10, sehr werbewirksam
Anbindung via S1 Schwechat-Ost / Autobahn A4
Das Grundstück ist in unmittelbarer Näher des Industrial Campus Vienna East.
Kontakt:
Für einen Besichtigungstermin oder nähere Informationen steht Ihnen Herr Augenhammer gerne jederzeit unter 0660 4678417 zur Verfügung.
Nebenkosten:
3% Provision zzgl. 20% USt, damit Sie von dieser Gelegenheit erfahren
1,1% Eintragung Grundbuch
3,5% Grunderwerbssteuer
Bis zu 3% für die Kaufvertragserrichtung
Nebenkosten für die Finanzierung
Es wird darauf hingewiesen, dass die Boubeva Makler GmbH als Doppelmakler tätig ist, und dass zwischen dem Vermieter und der Boubeva Makler GmbH ein wirtschaftliches und familiäres Naheverhältnis besteht. Es kann, aufgrund von zeitlichen Änderungen, zu Abweichungen der Angaben kommen.
Wir weisen darauf hin, dass zwischen dem Vermittler und dem zu vermittelnden Dritten ein familiäres oder wirtschaftliches Naheverhältnis besteht.
Der Vermittler ist als Doppelmakler tätig.
Infrastruktur / Entfernungen
Gesundheit
Arzt <4.500m
Apotheke <4.500m
Klinik <5.500m
Kinder & Schulen
Schule <4.000m
Kindergarten <2.500m
Nahversorgung
Supermarkt <2.500m
Bäckerei <5.000m
Einkaufszentrum <7.500m
Sonstige
Bank <5.000m
Geldautomat <5.000m
Post <5.500m
Polizei <5.000m
Verkehr
Bus <1.000m
Autobahnanschluss <3.000m
Bahnhof <1.500m
Angaben Entfernung Luftlinie / Quelle: OpenStreetMap
Objektdaten
Dokumente / Links
Flächen
- Grundstücksfläche
- 9.046m²
Kosten
- Kaufpreis Brutto
- € 2.300.000,00
Grundstücke zum Kaufen im Umkreis von Enzersdorf an der Fischa
- Bezirk Bruck an der Leitha
- Bezirk Bruck an der Leitha
- Bezirk Gemeindebezirk Donaustadt
- Bezirk Gemeindebezirk Donaustadt
- Bezirk Gemeindebezirk Donaustadt
- Bezirk Gemeindebezirk Favoriten
- Bezirk Gemeindebezirk Favoriten
- Bezirk Gemeindebezirk Favoriten
- Bezirk Gemeindebezirk Liesing
- Bezirk Gemeindebezirk Liesing
Grundstücke zum Kaufen im Umkreis von Enzersdorf an der Fischa
Grundstücke zum Kaufen in Österreich
Andere Besucher suchen nach...
- Grundstücke kaufen in 3400 Weidlingbach
- Wohnungen kaufen in 4663 Laakirchen
- Häuser in 7471 Rechnitz
- Wohnungen in 2410 Hainburg an der Donau
- Häuser kaufen in 2432 Schwadorf
- Wohnungen kaufen in 3002 Purkersdorf
- Häuser in 3150 Wilhelmsburg
- Wohnungen kaufen in 3470 Engelmannsbrunn
- Grundstücke kaufen im Bezirk Mattersburg
- Grundstücke kaufen im Bezirk Gmunden