Grundstück für Bauträger Projektentwickler - keine Infrastrukturkosten !
€ 1.202.960
4070 Eferding
Beschreibung
Grundstück für Bauträger und Projektentwickler KEINE INFRASTRUKTURKOSTEN FÜR KÄUFER!! Die gesamten von der Gemeinde geschätzten Infrastrukturkosten in der Höhe von Euro 230.000,- trägt der Verkäufer! Zum Verkauf kommt ein sehr attraktives ebenes Grundstück mit einer Bruttobaulandfläche von 6.189 m². Es befindet sich in einer absoluten TOP Lage der Bezirkshauptstadt Eferding. Wohnen auf diesem Grundstück bietet daher höchste Lebens- und Wohnqualität. Fußläufig erreicht man binnen weniger Minuten das historische Stadtzentrum. In unmittelbarer Nähe fliest der von Bäumen und Sträuchern begleitete idyllisch gelegene Sandbach vorbei. Das Grundstück weist derzeit noch eine Grünlandwidmung auf. Es liegt aber bereits ein Grundsatzbeschluss des Gemeinderates für...
Grundstück für Bauträger und Projektentwickler
KEINE INFRASTRUKTURKOSTEN FÜR KÄUFER!!
Die gesamten von der Gemeinde geschätzten Infrastrukturkosten in der Höhe von Euro 230.000,- trägt der Verkäufer!
Zum Verkauf kommt ein sehr attraktives ebenes Grundstück mit einer Bruttobaulandfläche von 6.189 m². Es befindet sich in einer absoluten TOP Lage der Bezirkshauptstadt Eferding. Wohnen auf diesem Grundstück bietet daher höchste Lebens- und Wohnqualität. Fußläufig erreicht man binnen weniger Minuten das historische Stadtzentrum. In unmittelbarer Nähe fliest der von Bäumen und Sträuchern begleitete idyllisch gelegene Sandbach vorbei.
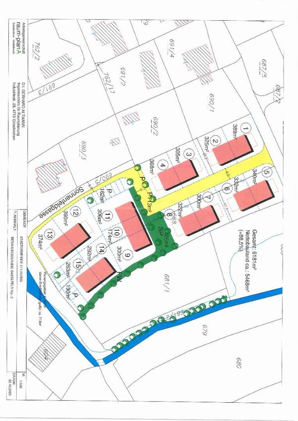
Das Grundstück weist derzeit noch eine Grünlandwidmung auf. Es liegt aber bereits ein Grundsatzbeschluss des Gemeinderates für eine Umwidmung in Bauland-Wohngebiet vor. Auch gibt es bereits eine mögliche Bebauungsstudie für eine enggruppierte Bebauung mit 6 Doppelhäusern
und einem Reihenhaus mit 3 Einheiten, sodass sich insgesamt 15 Einheiten ergeben.
Eine Zufahrt ist von drei Seiten möglich - beide Zufahrtsstraßen sind bereits asphaltiert und führen die Kanal-und Wasser-Infrastruktur bereits mit.
Die Planung der konkreten Bebauung des Grundstücks ist ausschließlich nach Rücksprache mit dem Bauamt Eferding zu treffen.
Sehr gerne bieten wir hier dem Käufer unserer Unterstützung in der Verhandlung mit dem Bauamt Eferding an.
Ein persönlicher Besichtigungstermin vor Ort kann nur nach Terminvereinbarung stattfinden.
Das selbstständige Betreten des Grundstücks ist untersagt und verboten.
Nur auf www.remax.at finden Sie neue RE/MAX Immobilien früher und vollständig, und mit der RE/MAX-APP sofort am Handy!
BITTE BEACHTEN SIE, dass wir aufgrund der Nachweispflicht gegenüber dem Eigentümer nur Anfragen mit vollständiger Angabe des Namens,
der Wohnadresse sowie der Telefonnummer bearbeiten können. Gerne senden wir Ihnen ein kostenloses Detailangebot mit weiteren Informationen zu.
Unverbindliche Unterlagen:
Die angegebenen Informationen sind nach bestem Wissen erstellt, Druck- bzw. Redaktionsfehler oder Irrtümer vorbehalten. Für Angaben,
Auskünfte und Flächen, die uns von Eigentümerseite bzw. Dritten zur Verfügung gestellt wurden, können wir keine Haftung übernehmen.
KEINE INFRASTRUKTURKOSTEN FÜR KÄUFER!!
Die gesamten von der Gemeinde geschätzten Infrastrukturkosten in der Höhe von Euro 230.000,- trägt der Verkäufer!
Zum Verkauf kommt ein sehr attraktives ebenes Grundstück mit einer Bruttobaulandfläche von 6.189 m². Es befindet sich in einer absoluten TOP Lage der Bezirkshauptstadt Eferding. Wohnen auf diesem Grundstück bietet daher höchste Lebens- und Wohnqualität. Fußläufig erreicht man binnen weniger Minuten das historische Stadtzentrum. In unmittelbarer Nähe fliest der von Bäumen und Sträuchern begleitete idyllisch gelegene Sandbach vorbei.
Das Grundstück weist derzeit noch eine Grünlandwidmung auf. Es liegt aber bereits ein Grundsatzbeschluss des Gemeinderates für eine Umwidmung in Bauland-Wohngebiet vor. Auch gibt es bereits eine mögliche Bebauungsstudie für eine enggruppierte Bebauung mit 6 Doppelhäusern
und einem Reihenhaus mit 3 Einheiten, sodass sich insgesamt 15 Einheiten ergeben.
Eine Zufahrt ist von drei Seiten möglich - beide Zufahrtsstraßen sind bereits asphaltiert und führen die Kanal-und Wasser-Infrastruktur bereits mit.
Die Planung der konkreten Bebauung des Grundstücks ist ausschließlich nach Rücksprache mit dem Bauamt Eferding zu treffen.
Sehr gerne bieten wir hier dem Käufer unserer Unterstützung in der Verhandlung mit dem Bauamt Eferding an.
Ein persönlicher Besichtigungstermin vor Ort kann nur nach Terminvereinbarung stattfinden.
Das selbstständige Betreten des Grundstücks ist untersagt und verboten.
Nur auf www.remax.at finden Sie neue RE/MAX Immobilien früher und vollständig, und mit der RE/MAX-APP sofort am Handy!
BITTE BEACHTEN SIE, dass wir aufgrund der Nachweispflicht gegenüber dem Eigentümer nur Anfragen mit vollständiger Angabe des Namens,
der Wohnadresse sowie der Telefonnummer bearbeiten können. Gerne senden wir Ihnen ein kostenloses Detailangebot mit weiteren Informationen zu.
Unverbindliche Unterlagen:
Die angegebenen Informationen sind nach bestem Wissen erstellt, Druck- bzw. Redaktionsfehler oder Irrtümer vorbehalten. Für Angaben,
Auskünfte und Flächen, die uns von Eigentümerseite bzw. Dritten zur Verfügung gestellt wurden, können wir keine Haftung übernehmen.
Objektdaten
Ausstattung
- Bus
- Eisenbahn
- Grüne Lage
- Sonnige Lage
- Stadtrand
Zustand
- Altlasten
- keine
Flächen
- Grundstücksfläche
- 6.181m²
Kosten
- Kaufpreis
- € 1.202.960,00
Grundstücke zum Kaufen in Österreich
Grundstücke zum Kaufen in Österreich
Andere Besucher suchen nach...
- Immobilien kaufen in 2601 Sollenau
- Immobilien in 4951 Polling im Innkreis, Oberösterreich
- Immobilien in 4742 Pram, Oberösterreich kaufen oder mieten
- Häuser kaufen in 2340 Mödling, Niederösterreich
- Häuser kaufen in 9421 Gemmersdorf, Kärnten
- Wohnungen / Eigentumswohnungen kaufen in 9431 St. Stefan, Kärnten
- Häuser kaufen in Bruck an der Leitha, Niederösterreich
- Immobilien mieten in Krems an der Donau, Niederösterreich
- Häuser zum Kaufen im Bezirk St. Pölten Land, Niederösterreich
- Büro / Praxen mieten in Rohrbach, Oberösterreich