Baugrundstück zwischen Fraham und Scharten - OHNE BAUVERPFLICHTUNG
€ 170.000
4070 Fraham
Beschreibung
Baugrundstück zwischen Fraham und Scharten - OHNE BAUVERPFLICHTUNG Dieses ca. 925 m² große Baugrundstück ist in leichter Hanglage gelegen. Es existiert keine Bauverpflichtung. Für das Grundstück existiert darüber hinaus kein Bebauungsplan. Es gelten somit die Vorschriften der OÖ Bauordnung 1994. Objektart: Bauland Wohngebiet Standort: 4070 Fraham, neben Steinberg 4 Grundstücksgröße: ca. 925 m² Flächenwidmung: Wohngebiet Lage: Siedlungsrandlage Topographie: Leichte Hanglage, Süd/West Erschließung: Über Gemeindestraße Aufschließungsbeiträge in der Höhe von € 1.890,10 wurden bereits bezahlt KAUFPREIS: 170.000 € Haben wir Ihr Interesse geweckt? Gerne senden wir Ihnen auf Anfrage ein ausführliches Exposé zu. BITTE BEACHTEN SIE, dass wir aufgrund der Nachweispflicht...
Baugrundstück zwischen Fraham und Scharten - OHNE BAUVERPFLICHTUNG
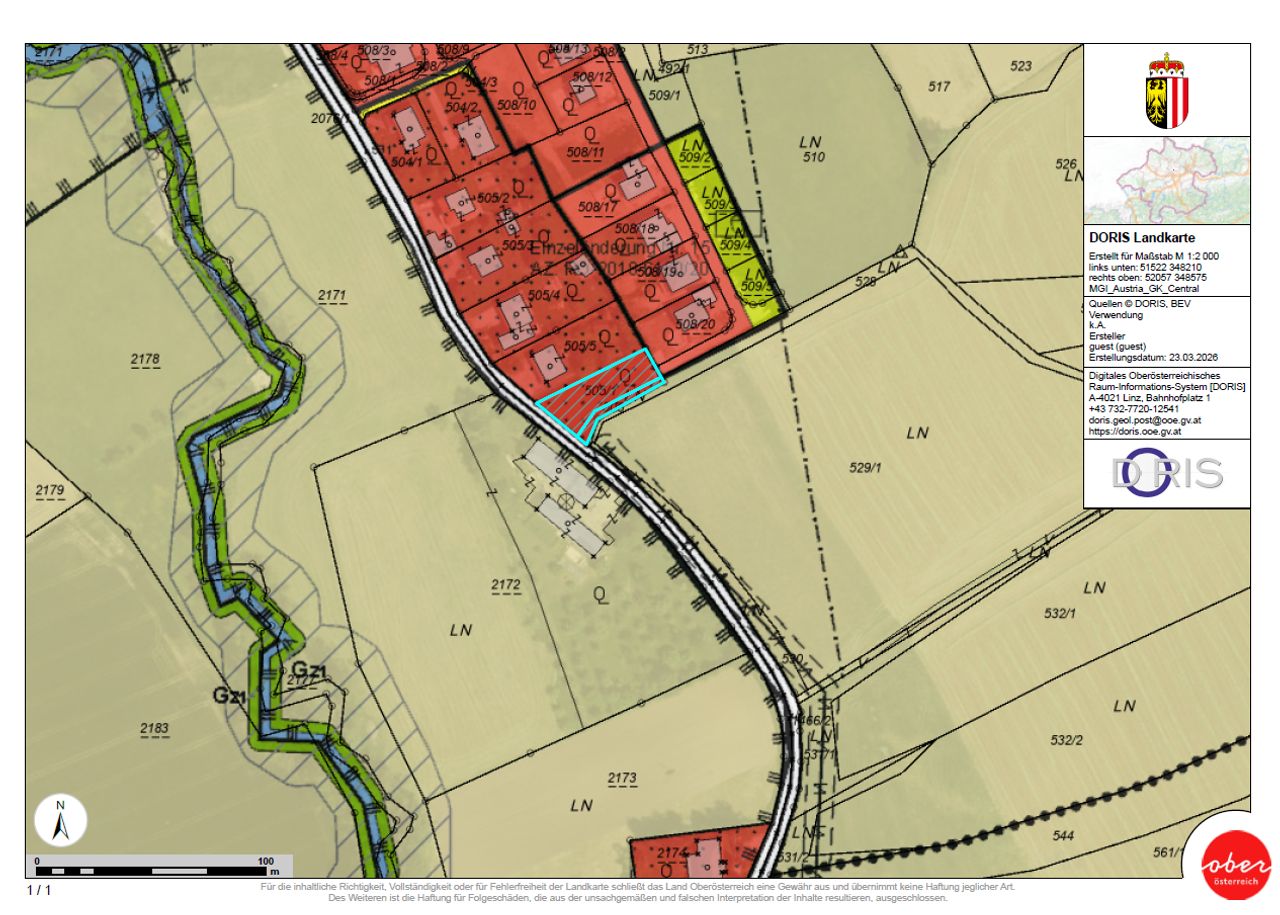
Dieses ca. 925 m² große Baugrundstück ist in leichter Hanglage gelegen. Es existiert keine Bauverpflichtung. Für das Grundstück existiert darüber hinaus kein Bebauungsplan. Es gelten somit die Vorschriften der OÖ Bauordnung 1994.
Objektart: Bauland Wohngebiet
Standort: 4070 Fraham, neben Steinberg 4
Grundstücksgröße: ca. 925 m²
Flächenwidmung: Wohngebiet
Lage: Siedlungsrandlage
Topographie: Leichte Hanglage, Süd/West
Erschließung: Über Gemeindestraße
Aufschließungsbeiträge in der Höhe von € 1.890,10 wurden bereits bezahlt
KAUFPREIS: 170.000 €
Haben wir Ihr Interesse geweckt? Gerne senden wir Ihnen auf Anfrage ein ausführliches Exposé zu.
BITTE BEACHTEN SIE, dass wir aufgrund der Nachweispflicht gegenüber dem Eigentümer nur Anfragen mit vollständiger Angabe des Namens und
der Anschrift bearbeiten können. Gerne senden wir Ihnen ein kostenloses Detailangebot mit weiteren Informationen zu
Unverbindliche Unterlagen:
Die angegebenen Informationen sind nach bestem Wissen erstellt, Druck- bzw. Redaktionsfehler oder Irrtümer vorbehalten. Für Angaben, Auskünfte und Flächen, die uns von Eigentümerseite bzw. Dritten zur Verfügung gestellt wurden, können wir keine Haftung übernehmen. Gem. § 5, Abs. 3 Maklergesetz weisen wir darauf hin, dass wir als Doppelmakler tätig sind.
Dieses ca. 925 m² große Baugrundstück ist in leichter Hanglage gelegen. Es existiert keine Bauverpflichtung. Für das Grundstück existiert darüber hinaus kein Bebauungsplan. Es gelten somit die Vorschriften der OÖ Bauordnung 1994.
Objektart: Bauland Wohngebiet
Standort: 4070 Fraham, neben Steinberg 4
Grundstücksgröße: ca. 925 m²
Flächenwidmung: Wohngebiet
Lage: Siedlungsrandlage
Topographie: Leichte Hanglage, Süd/West
Erschließung: Über Gemeindestraße
Aufschließungsbeiträge in der Höhe von € 1.890,10 wurden bereits bezahlt
KAUFPREIS: 170.000 €
Haben wir Ihr Interesse geweckt? Gerne senden wir Ihnen auf Anfrage ein ausführliches Exposé zu.
BITTE BEACHTEN SIE, dass wir aufgrund der Nachweispflicht gegenüber dem Eigentümer nur Anfragen mit vollständiger Angabe des Namens und
der Anschrift bearbeiten können. Gerne senden wir Ihnen ein kostenloses Detailangebot mit weiteren Informationen zu
Unverbindliche Unterlagen:
Die angegebenen Informationen sind nach bestem Wissen erstellt, Druck- bzw. Redaktionsfehler oder Irrtümer vorbehalten. Für Angaben, Auskünfte und Flächen, die uns von Eigentümerseite bzw. Dritten zur Verfügung gestellt wurden, können wir keine Haftung übernehmen. Gem. § 5, Abs. 3 Maklergesetz weisen wir darauf hin, dass wir als Doppelmakler tätig sind.
Objektdaten
Ausstattung
- Dorfrand
- Grüne Lage
- Sonnige Lage
Flächen
- Grundstücksfläche
- 925m²
Kosten
- Kaufpreis
- € 170.000,00
Grundstücke zum Kaufen in Österreich
Grundstücke zum Kaufen in Österreich
Grundstücke zum Kaufen in Österreich
Andere Besucher suchen nach...
- Grundstücke kaufen in 3400 Weidlingbach
- Wohnungen kaufen in 4663 Laakirchen
- Häuser in 7471 Rechnitz
- Wohnungen in 2410 Hainburg an der Donau
- Häuser kaufen in 2432 Schwadorf
- Wohnungen kaufen in 3002 Purkersdorf
- Häuser in 3150 Wilhelmsburg
- Wohnungen kaufen in 3470 Engelmannsbrunn
- Grundstücke kaufen im Bezirk Mattersburg
- Grundstücke kaufen im Bezirk Gmunden