Großes Baugrundstück (ca. 1 ha) in Güssinger Ortsrandlage!
€ 570.000
7540 Güssing
Beschreibung
Am Ortsrand der charmanten Stadtgemeinde Güssing, im sonnigen Südburgenland, befindet sich dieses großzügige Baugrundstück mit Burgblick. Die Umgebung bietet eine sehr gute Infrastruktur: Einkaufsmöglichkeiten, Schulen, Kindergarten, Ärzte sowie zahlreiche Freizeitangebote. Die weithin sichtbare Burg Güssing prägt die Region und sorgt für ein herrliches Panorama. Gesamtgrundstücksgröße laut Grundbuch 9.966 m² Widmung: Bauland – Wohngebiet Lage: sonnige, ebene Ortsrandlage Besonderheit: herrlicher Blick auf die Burg Güssing Bitte überzeugen Sie sich nun selbst von diesem tollen Angebot und vereinbaren Sie Ihren Besichtigungstermin! Wir bitten um Verständnis, dass wir aufgrund der Nachweispflicht gegenüber dem Eigentümer, nur Anfragen mit vollständigen Kontaktdaten beantworten können. Die Angaben...
Am Ortsrand der charmanten Stadtgemeinde Güssing, im sonnigen Südburgenland, befindet sich dieses großzügige Baugrundstück mit Burgblick.
Die Umgebung bietet eine sehr gute Infrastruktur: Einkaufsmöglichkeiten, Schulen, Kindergarten, Ärzte sowie zahlreiche Freizeitangebote. Die weithin sichtbare Burg Güssing prägt die Region und sorgt für ein herrliches Panorama.
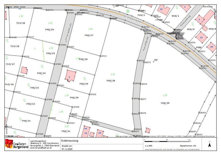
Gesamtgrundstücksgröße laut Grundbuch 9.966 m²
Widmung: Bauland – Wohngebiet
Lage: sonnige, ebene Ortsrandlage
Besonderheit: herrlicher Blick auf die Burg Güssing
Bitte überzeugen Sie sich nun selbst von diesem tollen Angebot und vereinbaren Sie Ihren Besichtigungstermin!
Wir bitten um Verständnis, dass wir aufgrund der Nachweispflicht gegenüber dem Eigentümer, nur Anfragen mit vollständigen Kontaktdaten beantworten können.
Die Angaben zum Objekt basieren aus uns zur Verfügung stehenden Informationen und sind ohne Gewähr.
Eine Haftung unsererseits ist hierfür ausgeschlossen. Die hier veröffentlichten Daten gelten als Richtlinie, um die Entscheidungsfindung der Interessenten zu unterstützen.
Detailfragen werden im Zuge von Besichtigungen besprochen, geklärt oder Antworten selbstverständlich nachgereicht!
Sie überlegen Ihre Immobilie zu verkaufen oder zu vermieten?
Sie fragen sich, ob ein Makler Sinn macht? Am Besten gleich zur NR. 1 !
Jetzt kostenlos Beratungstermin vereinbaren unter 03326 / 54 332
Die Umgebung bietet eine sehr gute Infrastruktur: Einkaufsmöglichkeiten, Schulen, Kindergarten, Ärzte sowie zahlreiche Freizeitangebote. Die weithin sichtbare Burg Güssing prägt die Region und sorgt für ein herrliches Panorama.
Gesamtgrundstücksgröße laut Grundbuch 9.966 m²
Widmung: Bauland – Wohngebiet
Lage: sonnige, ebene Ortsrandlage
Besonderheit: herrlicher Blick auf die Burg Güssing
Bitte überzeugen Sie sich nun selbst von diesem tollen Angebot und vereinbaren Sie Ihren Besichtigungstermin!
Wir bitten um Verständnis, dass wir aufgrund der Nachweispflicht gegenüber dem Eigentümer, nur Anfragen mit vollständigen Kontaktdaten beantworten können.
Die Angaben zum Objekt basieren aus uns zur Verfügung stehenden Informationen und sind ohne Gewähr.
Eine Haftung unsererseits ist hierfür ausgeschlossen. Die hier veröffentlichten Daten gelten als Richtlinie, um die Entscheidungsfindung der Interessenten zu unterstützen.
Detailfragen werden im Zuge von Besichtigungen besprochen, geklärt oder Antworten selbstverständlich nachgereicht!
Sie überlegen Ihre Immobilie zu verkaufen oder zu vermieten?
Sie fragen sich, ob ein Makler Sinn macht? Am Besten gleich zur NR. 1 !
Jetzt kostenlos Beratungstermin vereinbaren unter 03326 / 54 332
Objektdaten
Ausstattung
- Bus
- Dorfrand
- Grüne Lage
- Ländliche Lage
- Sonnige Lage
Flächen
- Grundstücksfläche
- 9.966m²
Kosten
- Kaufpreis
- € 570.000,00
Grundstücke zum Kaufen in Österreich
Grundstücke zum Kaufen in Österreich
Grundstücke zum Kaufen in Österreich
Andere Besucher suchen nach...
- Grundstücke kaufen in 3400 Weidlingbach
- Wohnungen kaufen in 4663 Laakirchen
- Häuser in 7471 Rechnitz
- Wohnungen in 2410 Hainburg an der Donau
- Häuser kaufen in 2432 Schwadorf
- Wohnungen kaufen in 3002 Purkersdorf
- Häuser in 3150 Wilhelmsburg
- Wohnungen kaufen in 3470 Engelmannsbrunn
- Grundstücke kaufen im Bezirk Mattersburg
- Grundstücke kaufen im Bezirk Gmunden