GERASDORF Bauträgergrundstück 14 Wohnungen
€ 1.200.000
2201 Gerasdorf
Beschreibung
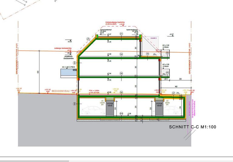
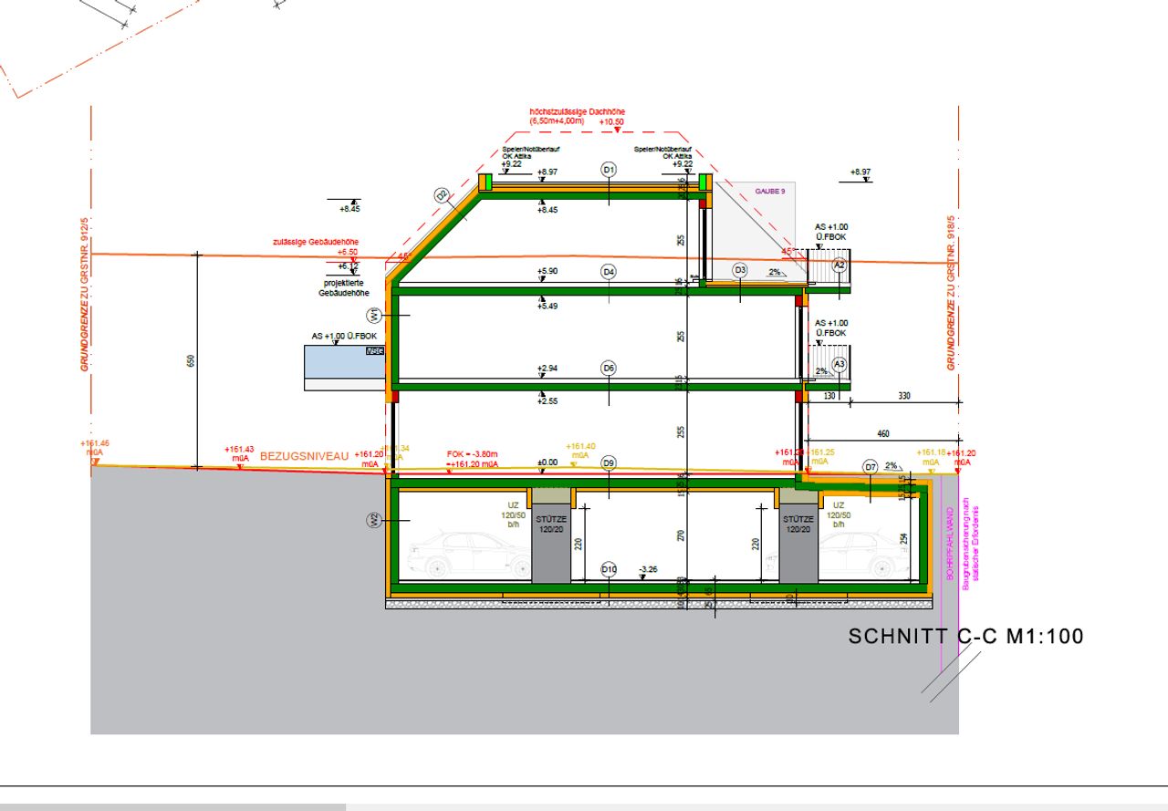
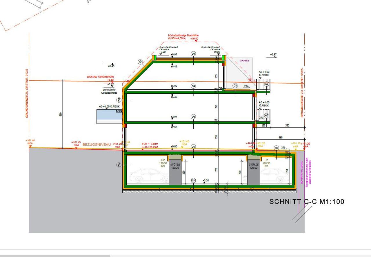
Dieses Bauträgerobjekt in 2201 Gerasdorf bietet eine schlüsselfertige Projektgrundlage direkt an der Wiener Stadtgrenze. Projektdaten im Überblick * Adresse: Dr. Theodor Körner Gasse 3-5, 2201 Gerasdorf * Grundstücksfläche: 1.304 m² * Projektumfang: Geplanter Wohnbau mit 14 Wohneinheiten * Parken: Großzügige hauseigene Tiefgarage Highlights & Inklusivleistungen Das Paket ist für Investoren und Bauträger sofort startklar, da wesentliche Vorleistungen bereits im Kaufpreis enthalten sind: * Vollständige Planung: Bauplan, Baubeschreibung und Architektenkosten inklusive. * Behörden-Check: Aufschließungsabgabe, Bewilligungskosten sowie Stellplatzprüfungskosten sind bereits abgedeckt. Lage & Infrastruktur Die Dr. Theodor Körner Gasse kombiniert ruhiges Wohnen mit einer Top-Anbindung an die Bundeshauptstadt: * Öffentlicher Verkehr: Die...
Dieses Bauträgerobjekt in 2201 Gerasdorf bietet eine schlüsselfertige Projektgrundlage direkt an der Wiener Stadtgrenze.
Projektdaten im Überblick
* Adresse: Dr. Theodor Körner Gasse 3-5, 2201 Gerasdorf
* Grundstücksfläche: 1.304 m²
* Projektumfang: Geplanter Wohnbau mit 14 Wohneinheiten
* Parken: Großzügige hauseigene Tiefgarage
Highlights & Inklusivleistungen
Das Paket ist für Investoren und Bauträger sofort startklar, da wesentliche Vorleistungen bereits im Kaufpreis enthalten sind:
* Vollständige Planung: Bauplan, Baubeschreibung und Architektenkosten inklusive.
* Behörden-Check: Aufschließungsabgabe, Bewilligungskosten sowie Stellplatzprüfungskosten sind bereits abgedeckt.
Lage & Infrastruktur
Die Dr. Theodor Körner Gasse kombiniert ruhiges Wohnen mit einer Top-Anbindung an die Bundeshauptstadt:
* Öffentlicher Verkehr: Die unmittelbare Nähe zur U1-Endstation (Leopoldau) ermöglicht eine direkte und schnelle Verbindung quer durch Wien. Zudem ist die Schnellbahn (S-Bahn) fußläufig erreichbar.
* Umgebung: Perfekte Randlage zu Wien mit hoher Lebensqualität und exzellenter Nahversorgung.
Der Vermittler ist als Doppelmakler tätig.
Interesse am Maklerberuf?
Informationen beim MAKLERFRÜHSTÜCK
am Samstag, Termin nach Vereinbarung um 10.00 Uhr im RE/MAX Büro Schwechat.
Info: office@remax-vital.at oder 01/70 70 900.
Projektdaten im Überblick
* Adresse: Dr. Theodor Körner Gasse 3-5, 2201 Gerasdorf
* Grundstücksfläche: 1.304 m²
* Projektumfang: Geplanter Wohnbau mit 14 Wohneinheiten
* Parken: Großzügige hauseigene Tiefgarage
Highlights & Inklusivleistungen
Das Paket ist für Investoren und Bauträger sofort startklar, da wesentliche Vorleistungen bereits im Kaufpreis enthalten sind:
* Vollständige Planung: Bauplan, Baubeschreibung und Architektenkosten inklusive.
* Behörden-Check: Aufschließungsabgabe, Bewilligungskosten sowie Stellplatzprüfungskosten sind bereits abgedeckt.
Lage & Infrastruktur
Die Dr. Theodor Körner Gasse kombiniert ruhiges Wohnen mit einer Top-Anbindung an die Bundeshauptstadt:
* Öffentlicher Verkehr: Die unmittelbare Nähe zur U1-Endstation (Leopoldau) ermöglicht eine direkte und schnelle Verbindung quer durch Wien. Zudem ist die Schnellbahn (S-Bahn) fußläufig erreichbar.
* Umgebung: Perfekte Randlage zu Wien mit hoher Lebensqualität und exzellenter Nahversorgung.
Der Vermittler ist als Doppelmakler tätig.
Interesse am Maklerberuf?
Informationen beim MAKLERFRÜHSTÜCK
am Samstag, Termin nach Vereinbarung um 10.00 Uhr im RE/MAX Büro Schwechat.
Info: office@remax-vital.at oder 01/70 70 900.
Objektdaten
Flächen
- Grundstücksfläche
- 1.304m²
Kosten
- Kaufpreis
- € 1.200.000,00
Grundstücke zum Kaufen im Umkreis von Gerasdorf bei Wien
- Bezirk Gemeindebezirk Floridsdorf
- Bezirk Gemeindebezirk Floridsdorf
- Bezirk Gemeindebezirk Floridsdorf
- Bezirk Gemeindebezirk Donaustadt
- Bezirk Gemeindebezirk Donaustadt
- Bezirk Gemeindebezirk Donaustadt
- Bezirk Gemeindebezirk Döbling
- Bezirk Gemeindebezirk Döbling
- Bezirk Gemeindebezirk Döbling
- Bezirk Gemeindebezirk Währing
Grundstücke zum Kaufen im Umkreis von Gerasdorf bei Wien
Grundstücke zum Kaufen in Österreich
Andere Besucher suchen nach...
- Grundstücke kaufen in 3400 Weidlingbach
- Wohnungen kaufen in 4663 Laakirchen
- Häuser in 7471 Rechnitz
- Wohnungen in 2410 Hainburg an der Donau
- Häuser kaufen in 2432 Schwadorf
- Wohnungen kaufen in 3002 Purkersdorf
- Häuser in 3150 Wilhelmsburg
- Wohnungen kaufen in 3470 Engelmannsbrunn
- Grundstücke kaufen im Bezirk Mattersburg
- Grundstücke kaufen im Bezirk Gmunden