WOHNEN im WIENERWALD – Baugrund für Premium Holz Massivhaus im Chalet Stil
Beschreibung
Das Projekt überzeugt durch Flexibilität (unterschiedliche Kauf- und Ausbauoptionen), Exklusivität, und eine persönliche, vollumfängliche Projekt- und Kundenbetreuung
Flexibilität:
Je nach Kundenwunsch stehen unterschiedliche Kaufoptionen zur Verfügung: Kaufoption „BASIC“: Die Kaufoption „Basic“ sieht vor, dass Sie das Grundstück, die einreichfähige Planungsunterlagen und die Herstellung der Allgemeinflächen samt Infrastruktur erwerben, die anschließende Bebauung organisieren Sie sich – entsprechend der Planungs- und Ausführungsvorgaben - selbst.
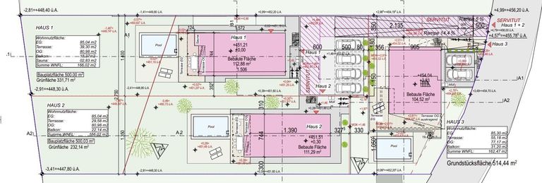
Kaufpreise für Kaufoption „BASIC“: für Grundstück + Leistungen des Pakets „Basic“ Grundstück 1: 515m² Grundfläche: € 270.000.- Grundstück 2: 831m² Grundfläche: € 410.000.- Grundstück 3: 732 m² Grundfläche: € 425.000.-
Der im Inserat angegebene Kaufpreis bezieht...
Das Projekt überzeugt durch Flexibilität (unterschiedliche Kauf- und Ausbauoptionen), Exklusivität, und eine persönliche, vollumfängliche Projekt- und Kundenbetreuung
Flexibilität:
Je nach Kundenwunsch stehen unterschiedliche Kaufoptionen zur Verfügung:
Kaufoption „BASIC“: Die Kaufoption „Basic“ sieht vor, dass Sie das Grundstück, die einreichfähige Planungsunterlagen und die Herstellung der Allgemeinflächen samt Infrastruktur erwerben, die anschließende Bebauung organisieren Sie sich – entsprechend der Planungs- und Ausführungsvorgaben - selbst.
Kaufpreise für Kaufoption „BASIC“: für Grundstück + Leistungen des Pakets „Basic“
Grundstück 1: 515m² Grundfläche: € 270.000.-
Grundstück 2: 831m² Grundfläche: € 410.000.-
Grundstück 3: 732 m² Grundfläche: € 425.000.-
Der im Inserat angegebene Kaufpreis bezieht sich auf die Kaufoption "BASIC" für das Grundstück 1 (515 m² Grundstücksfläche) inkl. einreichfähigen Plan zur Bebauung des Grundstücks (Einreichpläne) sowie die Herstellung der umfangreichen Allgemeinflächen (Geländeherstellung lt. Planung, Zufahrtsbereiche, Einfriedungen, Stützmauern, u.v.m.) samt Infrastruktur (Kanal, Strom,..) bis zur Grundstücksgrenze (Kanal, Strom,..).
Kaufoption „ALL INCLUSIVE“: Entscheiden Sie sich für die Kaufoption „All Inclusive“ erwerben Sie zusätzlich zum Grundstück auch das Haus in der gewünschten Ausbaustufe (belagsfertig oder schlüsselfertig).
Kaufpreise für Kaufoption „ALL INCLUSIVE“: ab 1.030.000.- Euro (für 162m² Wohnnutzfläche)
Die derzeitige Planung für die Wohnhäuser sieht Wohnnutzflächen zwischen 162 und 166m² pro Wohnhaus vor. Kundenspezifische Anpassungen (Reduktion Wohnfläche, Ausführungsdetails,..) sind derzeit noch möglich, sofern diese das Erscheinungsbild des Gesamtprojektes nicht negativ beeinflussen. Dadurch können sich die angegebenen Verkaufspreise in beide Richtungen verändern.
Kaufoption „Individual“: Je nach Kundenvorstellung kann auch ein individuelles Leistungspaket definiert werden
Exklusivität:
Durch eine Teilung des Gesamtgrundstückes in 3 Einzelparzellen entstehen 3 Grundstücke mit 515, 732 und 831m². Die derzeitige Planung sieht die Errichtung von hochwertigen Wohnhäusern (Wohnfläche ca. 150m²) in Holz-Massivbauweise durch einen Premium-Hersteller in einem modernen Chalet-Baustil vor. Um der Exklusivität der Gesamtanlage zu entsprechen wird eine repräsentative Einfriedung und Einfahrtssituation mit Tor/Sprechanlage vorgesehen. Die Allgemeinflächen werden mit Granit-Kopfsteinpflaster ausgeführt, eine großzügige gärtnerische Gestaltung im Bereich der KFZ-Stellplätze unterstreicht die Wertigkeit und Exklusivität der Gesamtanlage.
Persönliche, vollumfängliche Betreuung
Der Verkäufer ist ein mittelständisches familiengeführtes Unternehmen. Das Unternehmen steht und garantiert eine persönliche Betreuung, ein hohes Maß an Individualität und einen hohen Qualitätsanspruch.
Eine faire und transparente Kalkulation der individuell vereinbarten Leistungen ermöglicht eine Betreuung entsprechend Ihrer Vorstellungen und Ansprüchen. Je nach Kundenwunsch können Sie eine vollumfängliche Betreuung (z.B. Bauherrenvertreterfunktion) bis hin zur Interieur - Planung & Ausführung, der Gartengestaltung, etc. nach dem Motto – flexibel, persönlich und mit dem Mehrwert für Sie - vereinbaren.
Wir suchen Sie, wenn Sie bei der Realisierung Ihres Wohntraums folgende Kriterien ganz besonders schätzen:
- Fokus auf ein angenehmes und gesundes Wohnatmosphäre (Holzmassivbauweise)
- Exklusivität (Ausführung & Design) und hohe Privatsphäre (Grundstücksgrößen)
- Ruhesuchende Menschen – raus aus der Stadt (aber trotzdem im Nahbereich von Wien)
Wenn wir das Interesse geweckt haben, stehen wir Ihnen für eine Vorstellung des Projektes (Termine, Kosten, Ausbau- und Kaufoptionen) und natürlich auch für eine Vorort Besichtigung der Liegenschaft sehr gerne zur Verfügung. Wir freuen uns auf Ihre Kontaktaufnahme.
Wir weisen darauf hin, dass zwischen dem Vermittler und dem zu vermittelnden Dritten ein familiäres oder wirtschaftliches Naheverhältnis besteht.
Der Vermittler ist als Doppelmakler tätig.
Infrastruktur / Entfernungen
Gesundheit
Arzt <2.000m
Apotheke <6.000m
Klinik <5.750m
Krankenhaus <9.500m
Kinder & Schulen
Schule <5.500m
Kindergarten <3.000m
Höhere Schule <6.750m
Universität <6.750m
Nahversorgung
Supermarkt <2.000m
Bäckerei <5.500m
Sonstige
Bank <1.750m
Geldautomat <1.750m
Post <5.750m
Polizei <5.750m
Verkehr
Bus <500m
Autobahnanschluss <5.750m
Bahnhof <8.250m
Angaben Entfernung Luftlinie / Quelle: OpenStreetMap
Objektdaten
Flächen
- Anzahl der Zimmer
- 4.5
- Anzahl der Badezimmer
- 2
- Anzahl der sep. WCs
- 2
- Anzahl der Balkone
- 1
- Anzahl der Terrassen
- 1
- Stellplätze
- 2
- Grundstücksfläche
- 515m²
- Terrassenfläche
- 1m²
Kosten
- Kaufpreis Brutto
- € 270.000,00
Verwaltung
- Verfügbar ab
- nach Vereinbarung
Grundstücke zum Kaufen im Umkreis von Wienerwald
Grundstücke zum Kaufen in Österreich
Andere Besucher suchen nach...
- Immobilien kaufen in 2601 Sollenau
- Immobilien in 4951 Polling im Innkreis, Oberösterreich
- Immobilien in 4742 Pram, Oberösterreich kaufen oder mieten
- Häuser kaufen in 2340 Mödling, Niederösterreich
- Häuser kaufen in 9421 Gemmersdorf, Kärnten
- Wohnungen / Eigentumswohnungen kaufen in 9431 St. Stefan, Kärnten
- Häuser kaufen in Bruck an der Leitha, Niederösterreich
- Immobilien mieten in Krems an der Donau, Niederösterreich
- Häuser zum Kaufen im Bezirk St. Pölten Land, Niederösterreich
- Büro / Praxen mieten in Rohrbach, Oberösterreich